Chronicle of One Platinum

One Platinum rera registered project is located at Navi-mumbai-m-corp, Thane. Offices, Shops at Navi-mumbai-m-corp, Thane. One Platinum project is being developed by Platinum Lifespaces. Rera number of One Platinum project is P51700012154. As per rera registration One Platinum project is started on date null and planned to complete on or before date 2021-12-31.
Unit types available are Offices, Shops. One Platinum project is providing amenities like Fire Safety, Lift, Landscape Garden, Rain Water Harvesting. Brochure of One Platinum project is available for download.

Project Summery of One Platinum

Social Media
Contact

02241276677

Rera No

P51700012154

Unit Details of One Platinum

Type Carpet Area (sqft)
ONE PLATINUM 138 - 1449

3D Elevation

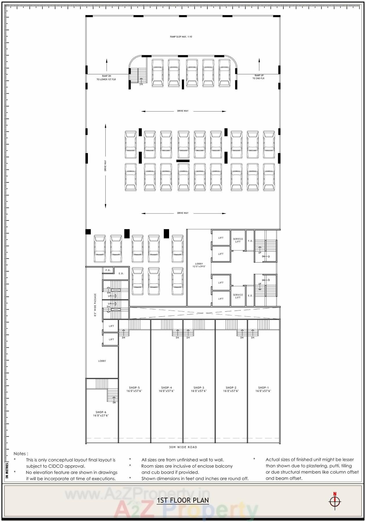
Layout Plan

Amenities of One Platinum

* Actual amenities may vary with displayed information.

Fire Safety

Lift

Rain Water Harvesting

Landscape Garden

Common Valuable Amenities of One Platinum

Water Conservation, Rain water Harvesting
Fire Protection And Fire Safety Requirements
Electrical Meter Room, Sub-Station, Receiving Station
Open Parking
Water Supply
Sewerage (Chamber, Lines, Septic Tank , STP)
Landscaping & Tree Planting

E-Brochure

Map Location of One Platinum

Keyplan

Keyplan

Project Details

Address

One Platinum

Plot No 8 Sector 15, Cbd Belapur, Thane, Maharastra - 400614

Contact

02241276677

Share on
Promoters

Platinum Lifespaces

Rera No

P51700012154

End Date

2021-12-31

District

Thane

State

Maharashtra

Project Type

Commercial

Disclaimer

The details displayed here are for informational purposes only. Information of real estate projects like details, floor area, location are taken from multiple sources on best effort basis. Nothing shall be deemed to constitute legal advice, marketing, offer, invitation, acquire by any entity. We advice you to visit the RERA website before taking any decision based on the contents displayed on this website.

Projects in navi-mumbai-m-corp

Projects in Thane