Chronicle of Courtyard

Courtyard 15 is your invitation to 'live smart. To discover and enjoy the advantages of smart planning, smart location and smart designing in a 'smart creation' that combines residential offerings with commercial opportunities. Courtyard 15 is a sprawling project of 6 residential towers and select commercial spaces. In the first phase of the project, we present a single elevation of 1, 2 & 3 BHK penthouses, planned to perfection in a well-designed architectural structure.

Project Summery of Courtyard

Social Media
Contact

02066306521

Rera No

P52100001345

Unit Type Details of Courtyard

Bedrooms Description
1 BHK 1 BHK
2 BHK 2 BHK
3 BHK 3 BHK

3D Elevation

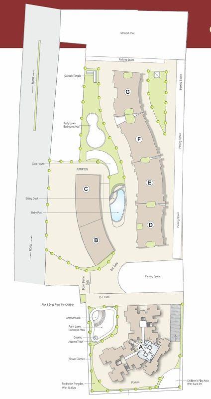
Project Layout

Project Layout

Layout Plan

Amenities of Courtyard

* Actual amenities may vary with displayed information.

Gymnasium

Fire Safety

Children Play Area

Lift

Rain Water Harvesting

RCC Road

Multi Purpose Hall

Street Light

CCTV Surveillance

Landscape Garden

Lift Power Backup

Senior Citizen Sitting

Common Valuable Amenities of Courtyard

Internal Roads & Footpaths
Water Conservation, Rain water Harvesting
Energy management
Fire Protection And Fire Safety Requirements
Electrical Meter Room, Sub-Station, Receiving Station
Aggregate area of recreational Open Space
Open Parking
Water Supply
Sewerage (Chamber, Lines, Septic Tank , STP)
Storm Water Drains
Landscaping & Tree Planting
Street Lighting
Community Buildings
Treatment And Disposal Of Sewage And Sullage Water
Solid Waste Management And Disposal
80 X 80 cm double-charged premium vitrified tiles
Granite/Agglomerated marble window frame
Video door phone
Laminated wooden flooring for master bedroom
Lustre (washable) paint for walls
Inbuilt safety door (Entasafe)
Veneered door shutters for bedrooms

E-Brochure

Project Highlights of Sun Antilia

Designer modular kitchen with hob and chimney L-shaped granite kitchen platform with SS sink Exhaust fan Designer dado tiles up to lintel level Granite platform with stainless steel sink in dry balcony

Jaquar or equivalent make fixtures in all bathrooms Designer EWC and washbasins in all bathrooms Hot water connectivity from solar water heater in master bathroom Concealed plumbing Bathroom locks accessible from both side to enhance safety for kids KITCHEN AND DRY BALCONY Granite platform with stainless steel sink and dado up to 2 ft Electrical and plumbing provision for washing machine

Wi-Fi enabled homes Decorative railings Water purifier Dish TV connection in living room and master bedroom Intercom facility Gas leak detector Decorative entrance lobby with name board and letterbox

Concealed copper wiring with MCB Telephone point in living room A.C.point in all bedrooms

2' X 2' vitrified tiles in entire flat with skirting Anti-skid flooring in toilets and terraces Designer ceramic tiles in bathrooms

Decorative entrance door with safety lock and nameplate Both side laminated flush doors Marble/granite door frames for bathrooms

Anodised aluminium windows with mosquito net MS safety grills for windows

OBD paint for internal walls and ceilings Superior quality acrylic paint for external walls

Map Location of Courtyard

Keyplan

Keyplan

Locations near to Courtyard

Place Reachable in Minute
D Mart 13.8
School 8.6
Pune International Airport 26.1
Collage Bhavan 9.2
icon Hospital 4.2

Project Details

Address

Courtyard

Chikhali, Pune, Pune, Maharastra - 412114

Contact

02066306521

Email

sales.abcgroup@gmail.com

Share on
Promoters

Unicon Developments

Rera No

P52100001345

End Date

2019-12-20

District

Pune

State

Maharashtra

Project Type

Residential

Disclaimer

The details displayed here are for informational purposes only. Information of real estate projects like details, floor area, location are taken from multiple sources on best effort basis. Nothing shall be deemed to constitute legal advice, marketing, offer, invitation, acquire by any entity. We advice you to visit the RERA website before taking any decision based on the contents displayed on this website.

Projects in pimpri-chinchawad-m-corp

Projects in Pune