Chronicle of Bhimashankar Heights

Bhimashankar Heights rera registered project is located at Borivali, MumbaiSuburban. 2 BHK Flats, 3 BHK Flats at Borivali, MumbaiSuburban. Bhimashankar Heights project is being developed by Mallhar Realtors Pvt Ltd. Rera number of Bhimashankar Heights project is P51800000274. As per rera registration Bhimashankar Heights project is started on date null and planned to complete on or before date 2021-12-31.
Unit types available are 2 BHK Flats, 3 BHK Flats. Bhimashankar Heights project is providing amenities like Video Door, Gymnasium, CCTV Surveillance, Fire Safety, Children Play Area, Lift, Landscape Garden, Lift Power Backup, Rain Water Harvesting, 24x7 Security. Brochure of Bhimashankar Heights project is available for download.

Project Summery of Bhimashankar Heights

Social Media
Contact

02265067770

Rera No

P51800000274

Unit Type Details of Bhimashankar Heights

Bedrooms Description
2 BHK 2 BHK Apartment
3 BHK 3 BHK Apartment

3D Elevation

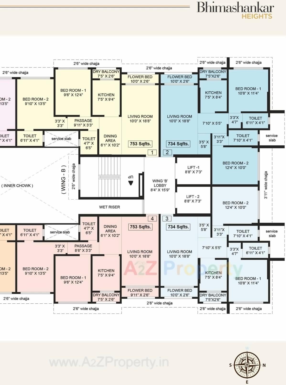
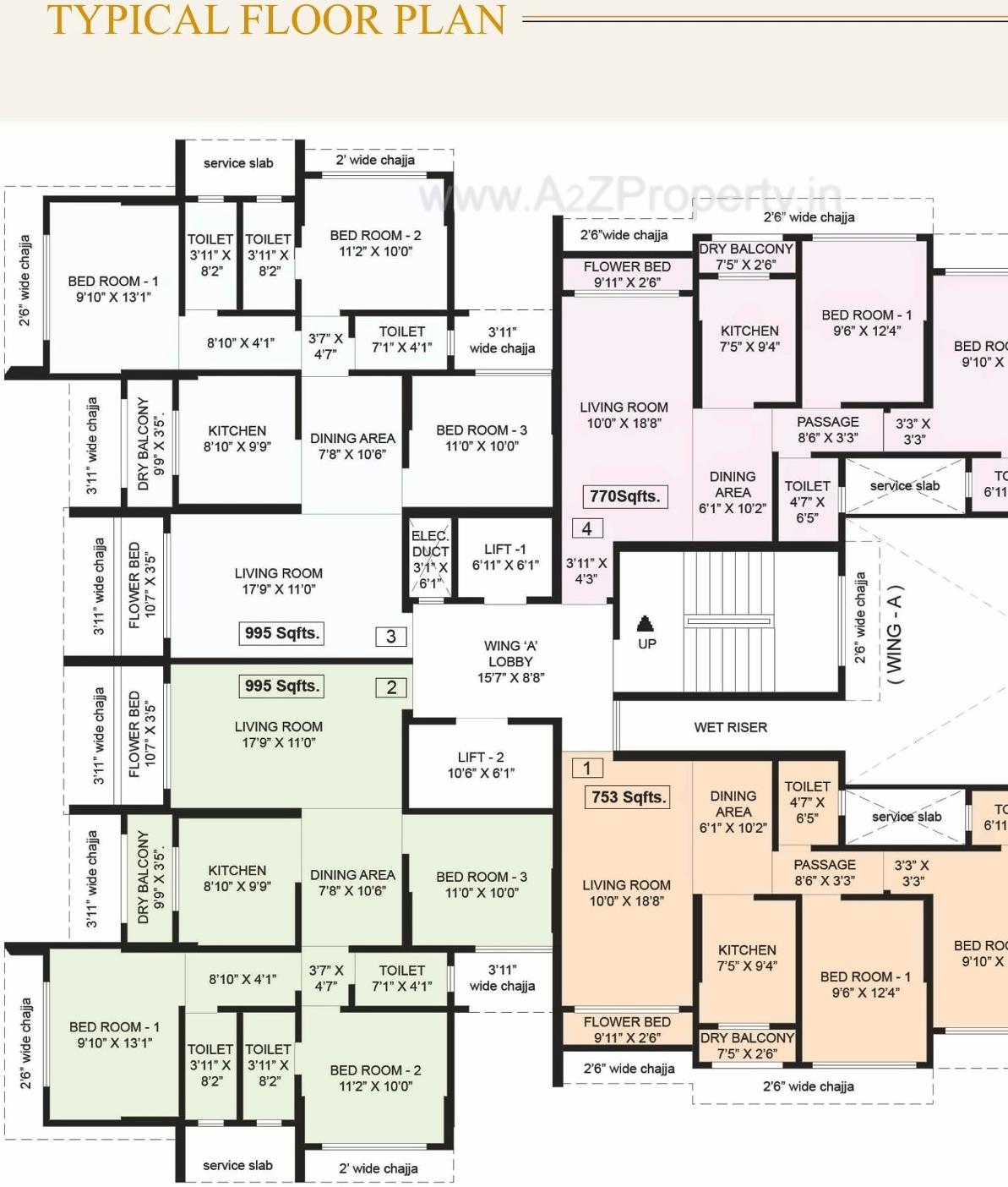
Layout Plan

Amenities of Bhimashankar Heights

* Actual amenities may vary with displayed information.

Gymnasium

Fire Safety

Children Play Area

Lift

Rain Water Harvesting

Video Door

CCTV Surveillance

Landscape Garden

Lift Power Backup

24x7 Security

Common Valuable Amenities of Bhimashankar Heights

Water Conservation, Rain water Harvesting
Fire Protection And Fire Safety Requirements
Electrical Meter Room, Sub-Station, Receiving Station
Aggregate area of recreational Open Space
Water Supply
Sewerage (Chamber, Lines, Septic Tank , STP)
Storm Water Drains
Landscaping & Tree Planting

E-Brochure

Project Highlights of Sun Antilia

Concealed conduit with PVC insulated Copper wiring. Sufficient Power Outlets / Light points provided. TV, Telephone and Internet Broadband Point. Provision of Cable TV and Telephone Point in Living room and Bedroom.

Ceramic tiles on the wall Water Purifier Stainless Steel Sink

Pop on Walls Emulsion Painting in entire Apartment

Combination of designer tiles Premium Sanitary Ware Elegant fitting and Diverter for hot and cold water mixing unit Gezer Exhaust Fan

Wooden Flush Doors with premium Hardware Fitting

Heavy Section Aluminum windows with Mosquito Net

Landscaped Garden Garden Walkway

Rain Water Harvesting Vermiculture Pit

Intercom Connectivity Guard House Closed circuit TV 24 hours Security Car Parking Multiple levels of car parks Elevator s4 Branded Elevators

Maintenance and Community Office Fitness Center

Map Location of Bhimashankar Heights

Keyplan

Keyplan

Project Details

Address

Bhimashankar Heights

1st Flr Omkareshwar Bldg Link Rd Opp Mc Donalds Kandarpada Dahisar West, Kandarpada, Mumbai Suburban, Maharastra - 400068

Contact

02265067770

Share on
Promoters

Mallhar Realtors Pvt Ltd

Rera No

P51800000274

End Date

2021-12-31

District

MumbaiSuburban

State

Maharashtra

Project Type

Residential

Disclaimer

The details displayed here are for informational purposes only. Information of real estate projects like details, floor area, location are taken from multiple sources on best effort basis. Nothing shall be deemed to constitute legal advice, marketing, offer, invitation, acquire by any entity. We advice you to visit the RERA website before taking any decision based on the contents displayed on this website.

Projects in borivali

Projects in MumbaiSuburban