Chronicle of Shahi Prime

Shahi Prime rera registered project is located at Vapi, Valsad. at Vapi, Valsad. Shahi Prime project is being developed by Sky Infra. Rera number of Shahi Prime project is PR/GJ/VALSAD/PARDI/Others/RAA11352/030323. As per rera registration Shahi Prime project is started on date 2022-12-25 and planned to complete on or before date 2030-12-31.
Brochure of Shahi Prime project is available for download.

Project Summery of Shahi Prime

Social Media
Contact

+91 9924829028

Rera No

PR/GJ/VALSAD/PARDI/Others/RAA11352/030323

Unit Details of Shahi Prime

Type Carpet Area (sqft)
A (BUILDING) 568 - 850
B (BUILDING) 479 - 697
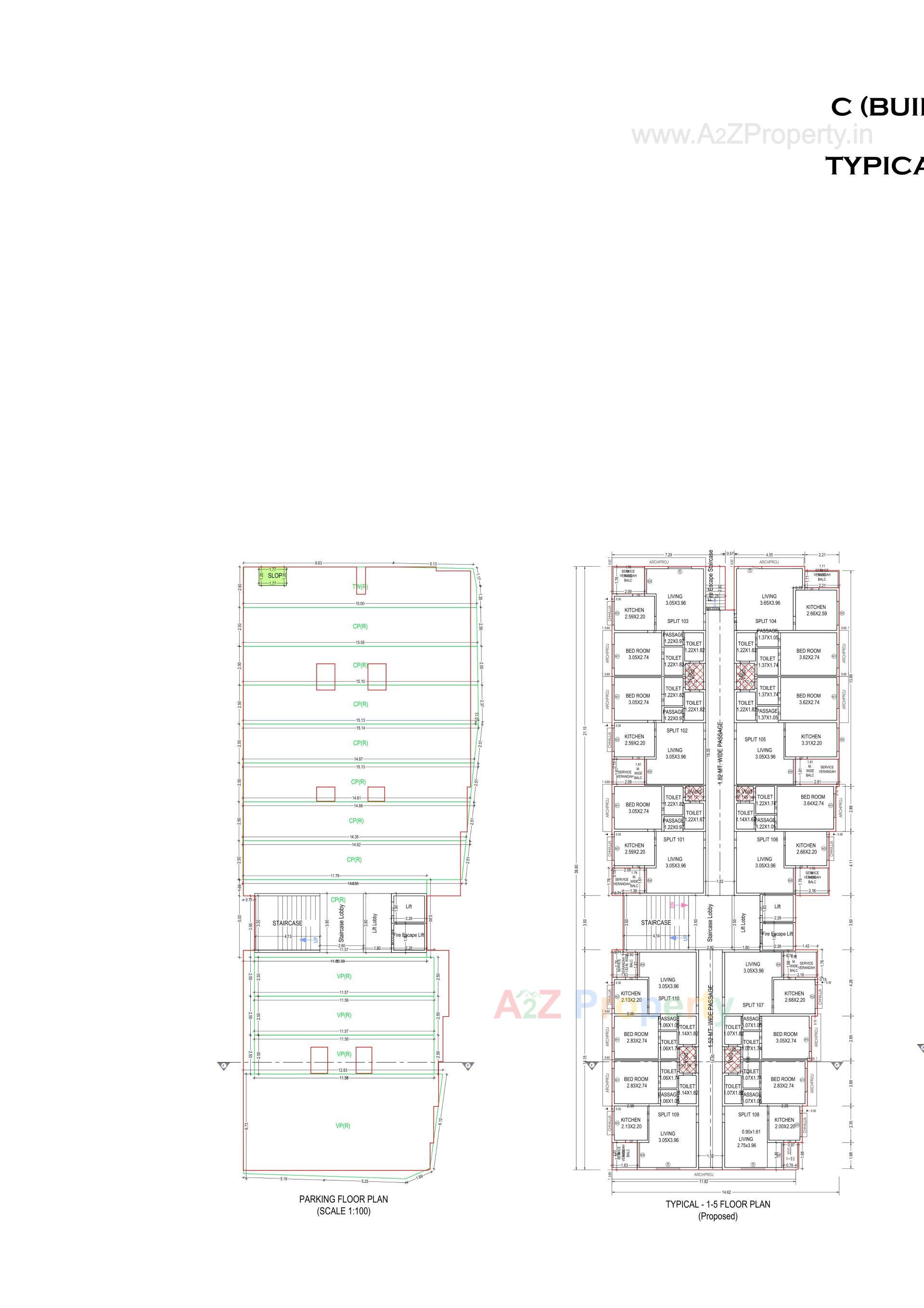
C (BUILDING) 351 - 456

3D Elevation

Layout Plan

E-Brochure

Keyplan

Keyplan

Project Details

Address

Shahi Prime

Survey No. 3428, Sarvaiya Nagar, Vapi

Contact

+91 9924829028

Email

bhaveshkataria6@gmail.com

Share on
Promoters

Sky Infra

Rera No

PR/GJ/VALSAD/PARDI/Others/RAA11352/030323

Start Date

2022-12-25

End Date

2030-12-31

Area of Project

2,934

District

Valsad

State

Gujarat

Project Type

Residential/Group Housing

Architect

Vijay J. Mistry

Structure

Pramod T. Bhandari

Disclaimer

The details displayed here are for informational purposes only. Information of real estate projects like details, floor area, location are taken from multiple sources on best effort basis. Nothing shall be deemed to constitute legal advice, marketing, offer, invitation, acquire by any entity. We advice you to visit the RERA website before taking any decision based on the contents displayed on this website.

Projects in vapi

Projects in Valsad