Chronicle of Vraj Villa

Vraj Villa rera registered project is located at Sayajipura, Vadodara. at Sayajipura, Vadodara. Vraj Villa project is being developed by Thakar Realty. Rera number of Vraj Villa project is PR/GJ/VADODARA/VADODARA/Others/RAA04146/281118. As per rera registration Vraj Villa project is started on date 2016-09-06 and planned to complete on or before date 2021-06-30.
Brochure of Vraj Villa project is available for download.

Project Summery of Vraj Villa

Social Media
Rera No

PR/GJ/VADODARA/VADODARA/Others/RAA04146/281118

Unit Details of Vraj Villa

Type Carpet Area (sqft)
1 to 36 duplex 968 - 968

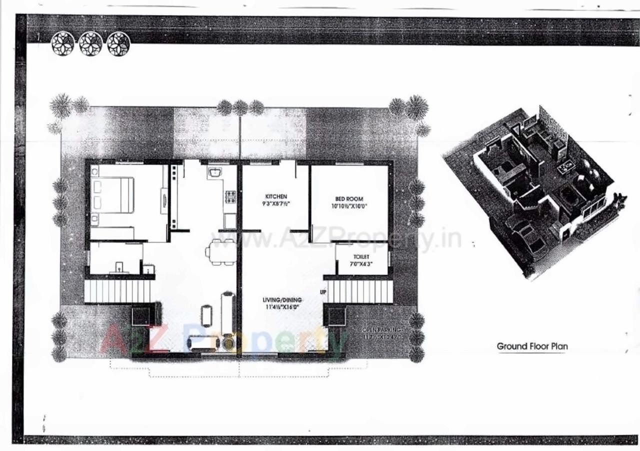
Layout Plan

E-Brochure

Current Construction Photos

Map Location of Vraj Villa

Keyplan

Keyplan

Project Details

Address

Vraj Villa

Near Shree Hari Bunaglows Opp Sayaji Town Hall, New Karelibaug, Ajwa Main Road

Email

pranavshah31@gmail.com

Share on
Promoters

Thakar Realty

Rera No

PR/GJ/VADODARA/VADODARA/Others/RAA04146/281118

Start Date

2016-09-06

End Date

2021-06-30

Area of Project

6,587

District

Vadodara

State

Gujarat

Project Type

Residential/Group Housing

Architect

HITESH ENGINEERS

Structure

ZARNA ASSOCIATES

Disclaimer

The details displayed here are for informational purposes only. Information of real estate projects like details, floor area, location are taken from multiple sources on best effort basis. Nothing shall be deemed to constitute legal advice, marketing, offer, invitation, acquire by any entity. We advice you to visit the RERA website before taking any decision based on the contents displayed on this website.

Projects in sayajipura

Premium projects in Vadodara

Projects in Vadodara