Chronicle of Vedant Elegance

Vedant Elegance rera registered project is located at Kalali, Vadodara. 3 BHK Bungalows, 4 BHK Bungalows at Kalali, Vadodara. Vedant Elegance project is being developed by Vyom Associates. Rera number of Vedant Elegance project is PR/GJ/VADODARA/VADODARA/Others/RAA00936/061217. As per rera registration Vedant Elegance project is started on date 2016-07-05 and planned to complete on or before date 2021-06-30.
Unit types available are 3 BHK Bungalows, 4 BHK Bungalows. Vedant Elegance project is providing amenities like Anti-Termite Treatment, Multi Purpose Hall, Gymnasium, Street Light, Children Play Area, Landscape Garden, Name Plates, Clubhouse. Brochure of Vedant Elegance project is available for download.

Project Summery of Vedant Elegance

Social Media
Contact

+91 9712975334, +91 9825039810

Rera No

PR/GJ/VADODARA/VADODARA/Others/RAA00936/061217

Unit Type Details of Vedant Elegance

Bedrooms Description
3 BHK 3 BHK Villa
4 BHK 4 BHK Villa

3D Elevation

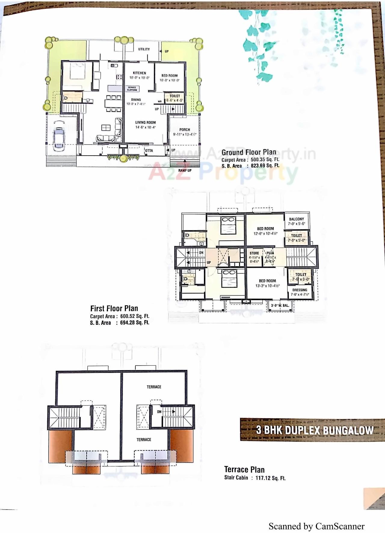
Project Layout

Project Layout

Layout Plan

Amenities of Vedant Elegance

* Actual amenities may vary with displayed information.

Gymnasium

Children Play Area

Name Plates

Anti-Termite Treatment

Multi Purpose Hall

Street Light

Landscape Garden

Clubhouse

E-Brochure

Current Construction Photos

Project Highlights of Sun Antilia

All RCC and Brick Masonry work as per Structural Engineer's Design

Vitrified Tiles Flooring

Granite kitchen platform with SS sink, glazed tiles dado upto lintel level

Decorative Main Door with standard fittings and all other internal Doors of good quality Flush Doors

UPVC windows with safety grills

Open terrace finished with water proofing

Inside Walls Smooth Plaster with emulsion paint and outside surface to be painted with weather resistant paint

Modular switches with concealed copper wiring of approved quality, sufficient electrical points as per architects plan and electrical consultant

Designer bathrooms with premium fittings and vessels. Glazed tiles dado upto lintel level

Map Location of Vedant Elegance

Project Details

Address

Vedant Elegance

Block No. 281, Kalali, Opp.: Vedant, Lifestyle, Opp. C.m.patel Farm, Kalali

Contact

+91 9712975334, +91 9825039810

Email

vyom.associates1010@gmail.com

Share on
Promoters

Vyom Associates

Rera No

PR/GJ/VADODARA/VADODARA/Others/RAA00936/061217

Start Date

2016-07-05

End Date

2021-06-30

Area of Project

9,643.726

District

Vadodara

State

Gujarat

Project Type

Residential/Group Housing

Architect

PATEL ASSOCIATES & ARCHITECT

Structure

B.A. DESAI & ASSOCIATES

Disclaimer

The details displayed here are for informational purposes only. Information of real estate projects like details, floor area, location are taken from multiple sources on best effort basis. Nothing shall be deemed to constitute legal advice, marketing, offer, invitation, acquire by any entity. We advice you to visit the RERA website before taking any decision based on the contents displayed on this website.

Projects in kalali

Premium projects in Vadodara

Projects in Vadodara