Chronicle of Shivalik Bunglows

Shivalik Bunglows rera registered project is located at Khatamba, Vadodara. Bungalows & Flats at Khatamba, Vadodara. Shivalik Bunglows project is being developed by Shivalik Realty. Rera number of Shivalik Bunglows project is PR/GJ/VADODARA/VADODARA/Others/RAA03863/291018. As per rera registration Shivalik Bunglows project is started on date 2018-02-12 and planned to complete on or before date 2022-12-30.
Shivalik Bunglows project is providing amenities like RCC Road, Street Light, Water/Heat Proofing, Children Play Area, Landscape Garden, 24x7 Water Supply, R.O., Compound Wall, Entrance Gate, Clubhouse. Brochure of Shivalik Bunglows project is available for download.

Project Summery of Shivalik Bunglows

Social Media
Contact

+91 9979897578

Rera No

PR/GJ/VADODARA/VADODARA/Others/RAA03863/291018

Unit Details of Shivalik Bunglows

Type Carpet Area (sqft)
DUPLEX 1098 - 1098

3D Elevation

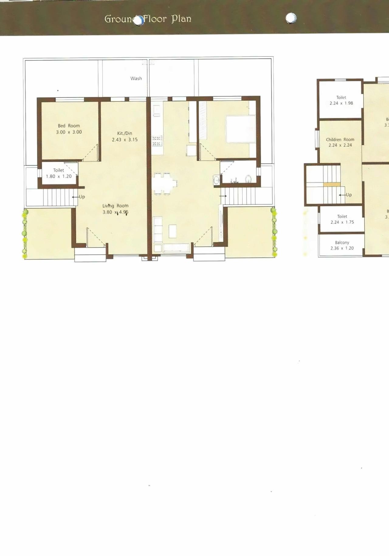
Layout Plan

Amenities of Shivalik Bunglows

* Actual amenities may vary with displayed information.

Children Play Area

R.O.

Compound Wall

Entrance Gate

RCC Road

Street Light

Water/Heat Proofing

Landscape Garden

24x7 Water Supply

Clubhouse

E-Brochure

Current Construction Photos

Map Location of Shivalik Bunglows

Keyplan

Keyplan

Project Details

Address

Shivalik Bunglows

Khatamba, Dist Vadodara

Contact

+91 9979897578

Email

nisu.ns1330@gmail.com

Share on
Promoters

Shivalik Realty

Rera No

PR/GJ/VADODARA/VADODARA/Others/RAA03863/291018

Start Date

2018-02-12

End Date

2022-12-30

Area of Project

19,424.369

District

Vadodara

State

Gujarat

Project Type

Residential/Group Housing

Architect

MAHESH RATHOD

Structure

ASHOK SHAH & ASSOCAITES

Disclaimer

The details displayed here are for informational purposes only. Information of real estate projects like details, floor area, location are taken from multiple sources on best effort basis. Nothing shall be deemed to constitute legal advice, marketing, offer, invitation, acquire by any entity. We advice you to visit the RERA website before taking any decision based on the contents displayed on this website.

Projects in khatamba

Premium projects in Vadodara

Projects in Vadodara