Chronicle of Sarva Signature

Sarva Signature rera registered project is located at Vasna, Vadodara. Shops, Offices & Offices at Vasna, Vadodara. Sarva Signature project is being developed by Sarva Realty. Rera number of Sarva Signature project is PR/GJ/VADODARA/VADODARA/Others/MAA02944/190618. As per rera registration Sarva Signature project is started on date 2017-06-23 and planned to complete on or before date 2024-04-10.
Sarva Signature project is providing amenities like Parking Space, CCTV Surveillance, Fire Safety, Water/Heat Proofing, Lift, Rain Water Harvesting, Restaurant, Temple. Brochure of Sarva Signature project is available for download.

Project Summery of Sarva Signature

Social Media
Contact

+91 9427492192, +91 6042362554

Rera No

PR/GJ/VADODARA/VADODARA/Others/MAA02944/190618

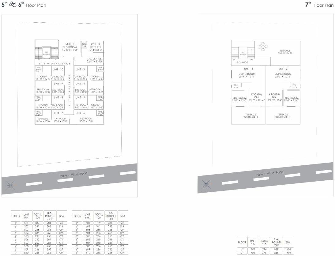
Unit Details of Sarva Signature

Type Carpet Area (sqft)
A 189 - 1044

3D Elevation

Layout Plan

Amenities of Sarva Signature

* Actual amenities may vary with displayed information.

Fire Safety

Lift

Rain Water Harvesting

Restaurant

Parking Space

CCTV Surveillance

Water/Heat Proofing

Temple

E-Brochure

Current Construction Photos

Project Highlights of Sun Antilia

Good Quality Ivory Based Double Charged Vitrified Tiles In Floor With 75 mm Skirting. Good Quality Designer Based Tiles In W.C. Italian Marble Flooring In Main Entrance Foyer and Ground Floor Lift Lobby. Heat & Water Proofing Treatment On Terrace.

Hi-Tech Glazing System With Low Heat Emission Glass for Adequate Daylight Designated Space For Showroom signage. Main Door And Internal Doors Flush doors In Granite Frame With Decorative Veneer Finish.

All Internal Walls Finished With 2 Coals of Putty Followed By Primer Over Mala Plaster. All Exterior Walls Finished With Texture Paint/Elastomeric Paint.

Fire Protection And Fire Fighting System As Per National Building Code Requirement approved From Local Authority.

Internal- Main Lobby Equipped With Tenant Directory & Directional Sign External - Docketed External Signage As Per Standard Design & Conditions.

Rain Water Harvesting System. Water Supply System.

Sufficient Paint With Concealed Copper Wiring Along with Modular Switches Of Standard Make( ISI Certified). E.L.C.B. And M.C.B. For Total Safely and Protection (ISI Certified) Individual meters. Adequate Domestic Points For A.C With Copper Piping. Generator For Elevator. Water Pump & General Lighting In The Building Area and the Comdex Outdoor Area C.C.T.V. Camera In Common Area. Earthing Point In Each Unit

CCTV Surveillance Main Entry/Ext ,Basement Entry/ Exit,Basement & Ground Floor lift & lobbies, secluded areas or Boundary wall. Manned Security Main Entry/Exit and Ground Floor Lift Lobby.

Bath Fillings / Faucets of Standard Make of Jaguar/Equalant And Quarter Turn Series.

External Combination ACP / Paint And Gas Facade. Lobbies And Corridors Combination Of Marble /Granite /Tile Floor Finish And Painted Surface As Per Design. Windows Aluminium/ UPVC Windows.

Two Level Basement Parking For You To Enjoy Hassle Free Parking.

Branded Lift With Capacity Of Adequate Number of Passengers.

Ample Height Of Showrooms

Each Unit With Individual Washrooms

Map Location of Sarva Signature

Project Specifications

Project Specifications

Keyplan

Keyplan

Project Details

Address

Sarva Signature

Nr. Dream Upscale Building, Opp. Chocklet Room, Gotri Vasna 30 Mt Road, Sayad Vasna

Contact

+91 9427492192, +91 6042362554

Email

sarva.realty@gmail.com

Share on
Promoters

Sarva Realty

Rera No

PR/GJ/VADODARA/VADODARA/Others/MAA02944/190618

Start Date

2017-06-23

End Date

2024-04-10

Area of Project

769

District

Vadodara

State

Gujarat

Project Type

Mixed Development

Architect

RUCHIR SHETH

Structure

ZARNA ASSOCIATES

Disclaimer

The details displayed here are for informational purposes only. Information of real estate projects like details, floor area, location are taken from multiple sources on best effort basis. Nothing shall be deemed to constitute legal advice, marketing, offer, invitation, acquire by any entity. We advice you to visit the RERA website before taking any decision based on the contents displayed on this website.

Projects in vasna

Premium projects in Vadodara

Projects in Vadodara