Chronicle of Brownleaf Allure

Brownleaf Allure rera registered project is located at Sevasi, Vadodara. at Sevasi, Vadodara. Brownleaf Allure project is being developed by Abacus Infra. Rera number of Brownleaf Allure project is PR/GJ/VADODARA/VADODARA/Others/CAA11940/120623. As per rera registration Brownleaf Allure project is started on date 2023-04-15 and planned to complete on or before date 2028-12-31.
Brochure of Brownleaf Allure project is available for download.

Project Summery of Brownleaf Allure

Social Media
Contact

+91 9909919107

Rera No

PR/GJ/VADODARA/VADODARA/Others/CAA11940/120623

Unit Details of Brownleaf Allure

Type Carpet Area (sqft)
Commercial

3D Elevation

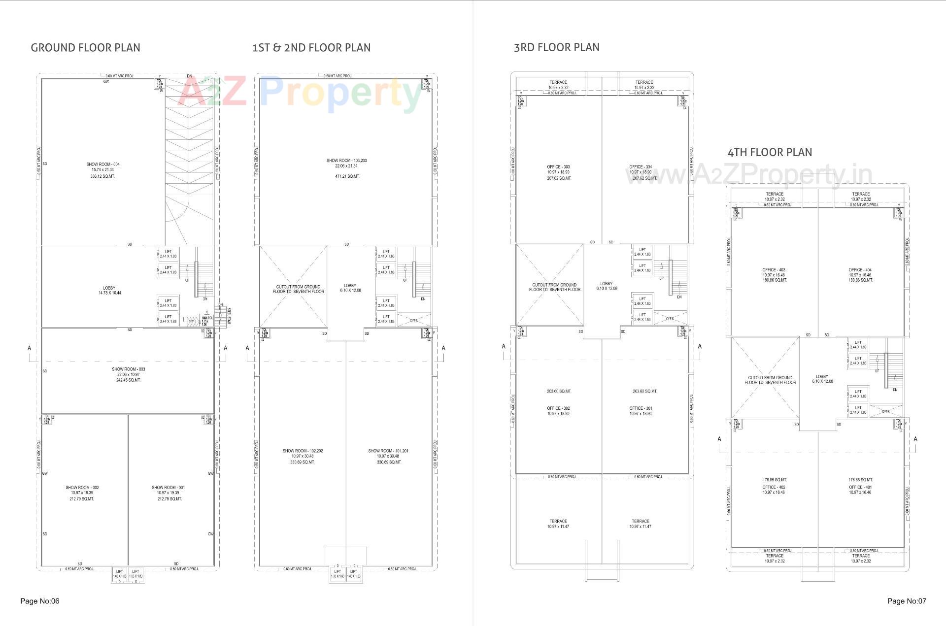
Layout Plan

E-Brochure

Map Location of Brownleaf Allure

Project Details

Address

Brownleaf Allure

Brownleaf Allure, Besides Broadway Pridenr. Priya Cinema, Sevasi Tp-2, Sevasi

Contact

+91 9909919107

Email

birju.p88@gmail.com

Share on
Promoters

Abacus Infra

Rera No

PR/GJ/VADODARA/VADODARA/Others/CAA11940/120623

Start Date

2023-04-15

End Date

2028-12-31

Area of Project

3,037

District

Vadodara

State

Gujarat

Project Type

Commercial

Architect

Shourya Patel

Structure

ASHUTOSH DESAI

Disclaimer

The details displayed here are for informational purposes only. Information of real estate projects like details, floor area, location are taken from multiple sources on best effort basis. Nothing shall be deemed to constitute legal advice, marketing, offer, invitation, acquire by any entity. We advice you to visit the RERA website before taking any decision based on the contents displayed on this website.

Projects in sevasi

Premium projects in Vadodara

Projects in Vadodara