Chronicle of Aafiya Park

Aafiya Park rera registered project is located at Tandalja, Vadodara. Flats at Tandalja, Vadodara. Aafiya Park project is being developed by Ishaq Suleman Kachhava (prop. Ishacom Developers). Rera number of Aafiya Park project is PR/GJ/VADODARA/VADODARA/Others/RAA03877/291018. As per rera registration Aafiya Park project is started on date 2015-02-25 and planned to complete on or before date 2028-06-30.
Aafiya Park project is providing amenities like Lift. Brochure of Aafiya Park project is available for download.

Project Summery of Aafiya Park

Social Media
Rera No

PR/GJ/VADODARA/VADODARA/Others/RAA03877/291018

Unit Details of Aafiya Park

Type Carpet Area (sqft)
A 536 - 1480

3D Elevation

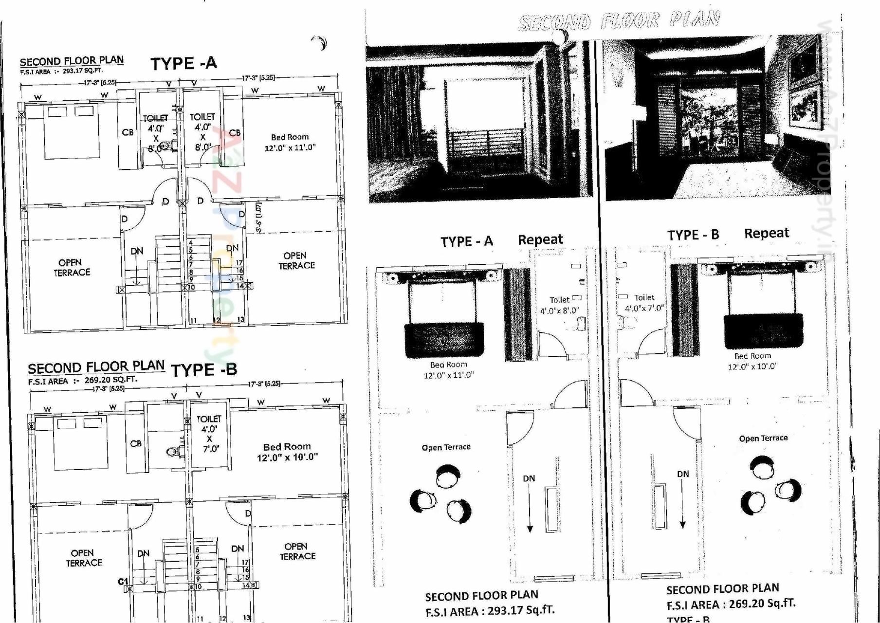
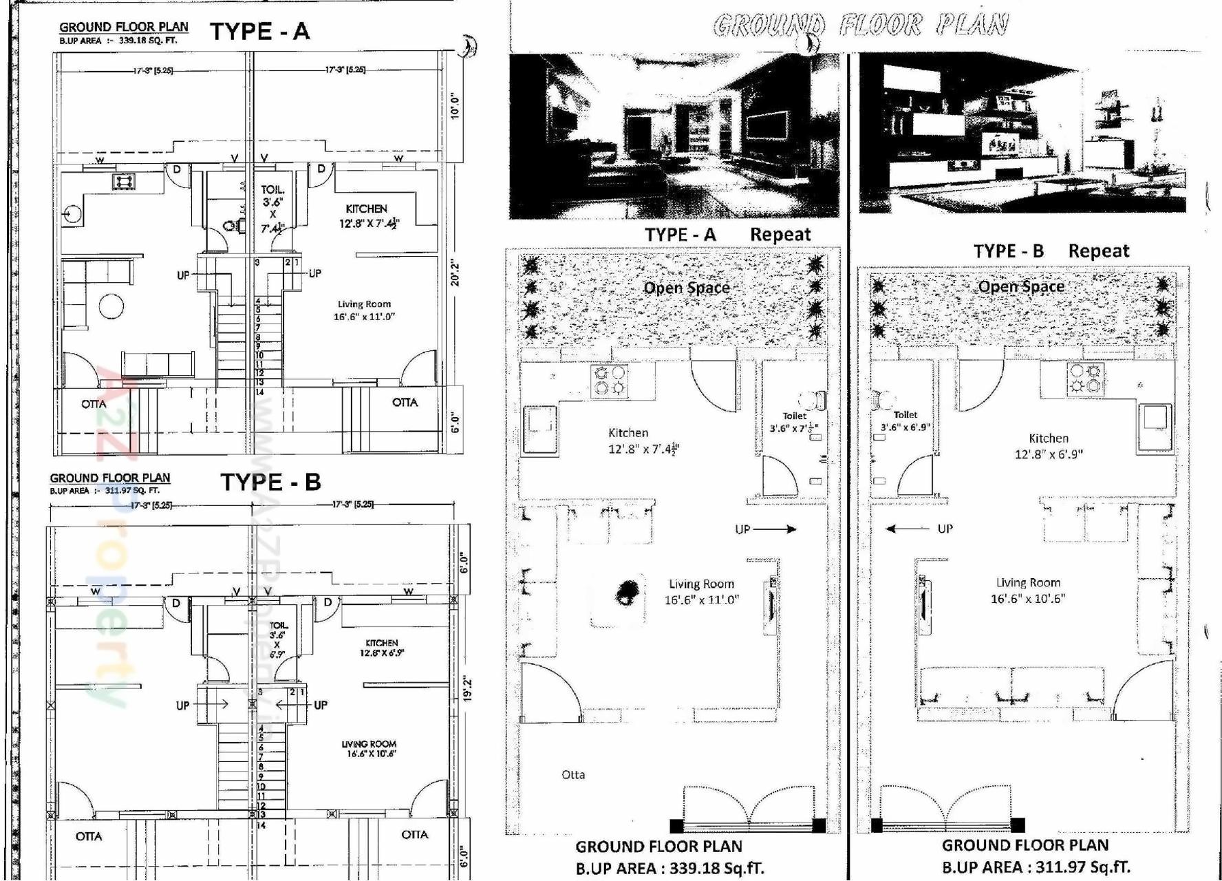
Layout Plan

Amenities of Aafiya Park

* Actual amenities may vary with displayed information.

Lift

E-Brochure

Current Construction Photos

Map Location of Aafiya Park

Keyplan

Keyplan

Project Details

Address

Aafiya Park

Near Wadowala School, B/h Ahmed Residency, Tandalja

Share on
Promoters

Ishaq Suleman Kachhava (prop. Ishacom Developers)

Rera No

PR/GJ/VADODARA/VADODARA/Others/RAA03877/291018

Start Date

2015-02-25

End Date

2028-06-30

Area of Project

4,958

District

Vadodara

State

Gujarat

Project Type

Residential/Group Housing

Architect

Shraddha Architects

Structure

Nitin Siddhpura

Disclaimer

The details displayed here are for informational purposes only. Information of real estate projects like details, floor area, location are taken from multiple sources on best effort basis. Nothing shall be deemed to constitute legal advice, marketing, offer, invitation, acquire by any entity. We advice you to visit the RERA website before taking any decision based on the contents displayed on this website.

Projects in tandalja

Premium projects in Vadodara

Projects in Vadodara