Chronicle of Rudraa Homes

Rudraa Homes rera registered project is located at Dindoli, Surat. at Dindoli, Surat. Rudraa Homes project is being developed by Shivam Corporation. Rera number of Rudraa Homes project is PR/GJ/SURAT/SURAT CITY/SUDA/MAA11184/110123. As per rera registration Rudraa Homes project is started on date 2022-10-13 and planned to complete on or before date 2029-12-31.
Brochure of Rudraa Homes project is available for download.

Project Summery of Rudraa Homes

Social Media
Contact

+91 7874399888

Rera No

PR/GJ/SURAT/SURAT CITY/SUDA/MAA11184/110123

Unit Details of Rudraa Homes

Type Carpet Area (sqft)
A 165 - 648
B 425 - 435

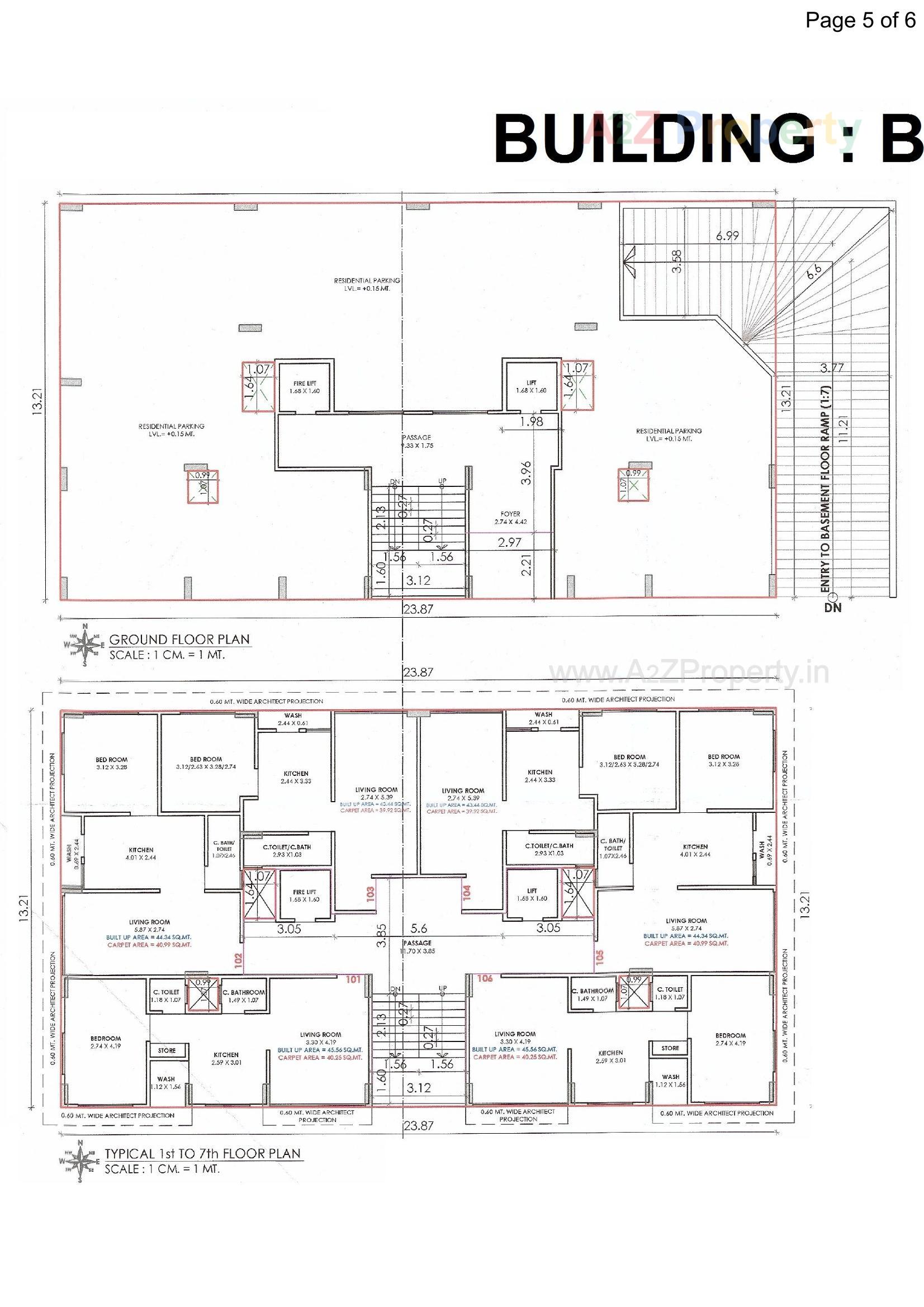
Layout Plan

E-Brochure

Map Location of Rudraa Homes

Keyplan

Keyplan

Project Details

Address

Rudraa Homes

T.p.s. No: 62 (dindoli-bhestan-bhedwad), Block No.212/b, O.p. No.16, F.p. No.16 Paikee Sub Plot-1, At-dindoli, Surat

Contact

+91 7874399888

Email

shivamcorporation8@gmail.com

Share on
Promoters

Shivam Corporation

Rera No

PR/GJ/SURAT/SURAT CITY/SUDA/MAA11184/110123

Start Date

2022-10-13

End Date

2029-12-31

Area of Project

1,735.08

District

Surat

State

Gujarat

Project Type

Mixed Development

Architect

MITESH M FALAKIYA

Structure

VIKAS A PATEL

Disclaimer

The details displayed here are for informational purposes only. Information of real estate projects like details, floor area, location are taken from multiple sources on best effort basis. Nothing shall be deemed to constitute legal advice, marketing, offer, invitation, acquire by any entity. We advice you to visit the RERA website before taking any decision based on the contents displayed on this website.

Projects in dindoli

Projects in Surat