Chronicle of Rajhans Transport Nagar

Rajhans Transport Nagar rera registered project is located at Chalthan, Surat. at Chalthan, Surat. Rajhans Transport Nagar project is being developed by Rajglory Infra Llp. Rera number of Rajhans Transport Nagar project is PR/GJ/SURAT/PALSANA/SUDA/CAA05417/100519. As per rera registration Rajhans Transport Nagar project is started on date 2019-03-16 and planned to complete on or before date 2020-09-30.

Project Summery of Rajhans Transport Nagar

Social Media
Contact

+91 7081551557, +91 6301551562

Rera No

PR/GJ/SURAT/PALSANA/SUDA/CAA05417/100519

Unit Details of Rajhans Transport Nagar

Type Carpet Area (sqft)
A 3132 - 3397
C 2879 - 2879
G 3758 - 3762
J 2446 - 4848
N 2026 - 4681
O 2250 - 2250
B 16984 - 17005
D 2348 - 2923
Q 2425 - 2908
R 2939 - 2939
RA 2939 - 2939
T 2250 - 2250
U 3238 - 3336
V 3213 - 3492
W 2795 - 4304
X 2632 - 3057
Z 2188 - 2992
S 2250 - 2250
Y 2105 - 2160
E 4801 - 4801
F 3762 - 3762
H 2365 - 4473
I 2548 - 2550
K 2364 - 2446
L 2521 - 2521
M 2521 - 2745
P 2026 - 2769

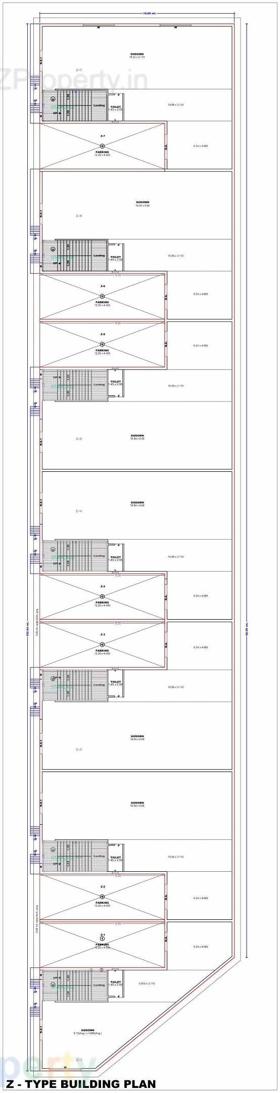
Project Layout

Project Layout

Layout Plan

Current Construction Photos

Map Location of Rajhans Transport Nagar

Keyplan

Keyplan

Project Details

Address

Rajhans Transport Nagar

Block No. 56, 57, 57/1, 57/2, 61, 63, 64, 68, 69, 75., Village Chalthan, Sub-district Palsana, District Surat.

Contact

+91 7081551557, +91 6301551562

Email

rajgloryinfra@gmail.com

Share on
Promoters

Rajglory Infra Llp

Rera No

PR/GJ/SURAT/PALSANA/SUDA/CAA05417/100519

Start Date

2019-03-16

End Date

2020-09-30

Area of Project

133,911.594

District

Surat

State

Gujarat

Project Type

Commercial

Disclaimer

The details displayed here are for informational purposes only. Information of real estate projects like details, floor area, location are taken from multiple sources on best effort basis. Nothing shall be deemed to constitute legal advice, marketing, offer, invitation, acquire by any entity. We advice you to visit the RERA website before taking any decision based on the contents displayed on this website.

Projects in chalthan

Projects in Surat