Chronicle of Nilgiri Heights

Nilgiri Heights rera registered project is located at Mo, Surat. at Mo, Surat. Nilgiri Heights project is being developed by Shree Hari Corporation . Rera number of Nilgiri Heights project is PR/GJ/SURAT/CHORASI/SUDA/RAA12141/100723. As per rera registration Nilgiri Heights project is started on date 2023-03-16 and planned to complete on or before date 2028-12-31.
Brochure of Nilgiri Heights project is available for download.

Project Summery of Nilgiri Heights

Social Media
Contact

+91 9974699660

Rera No

PR/GJ/SURAT/CHORASI/SUDA/RAA12141/100723

Unit Details of Nilgiri Heights

Type Carpet Area (sqft)
A+B
C

3D Elevation

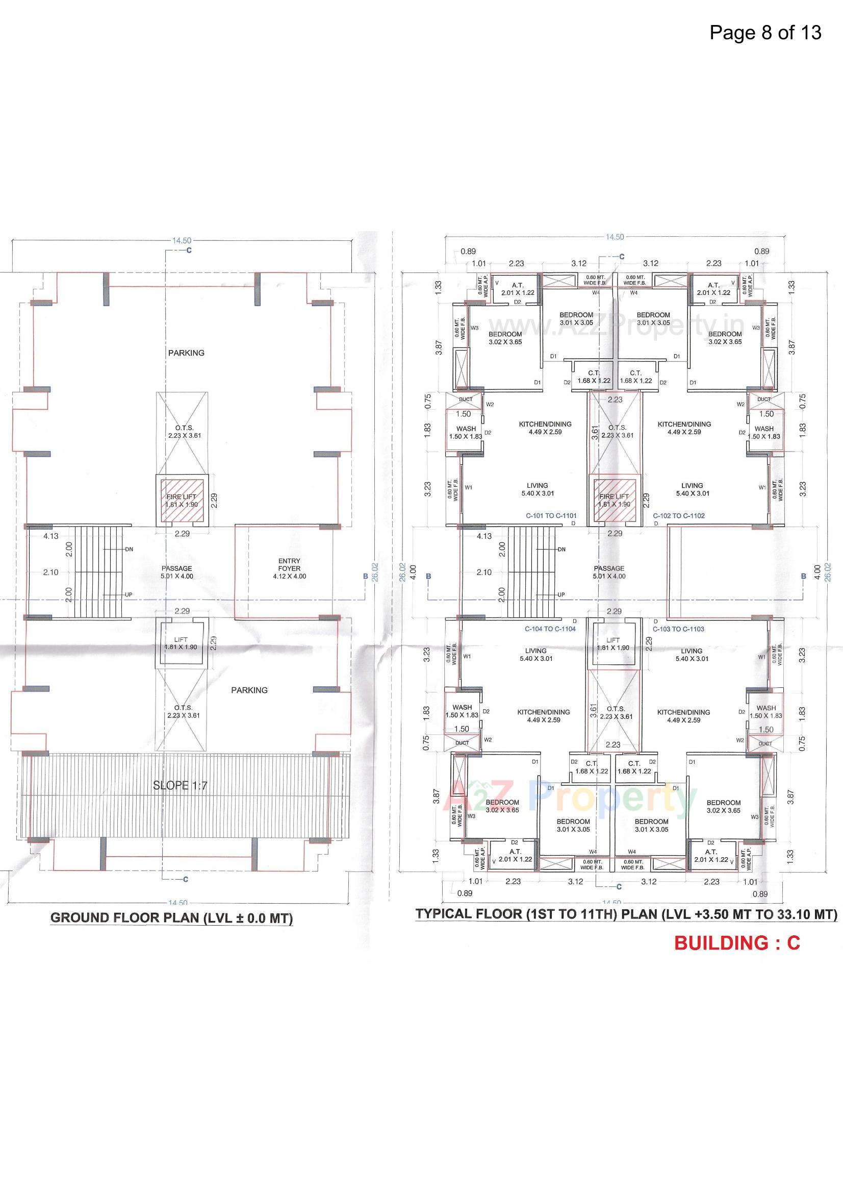
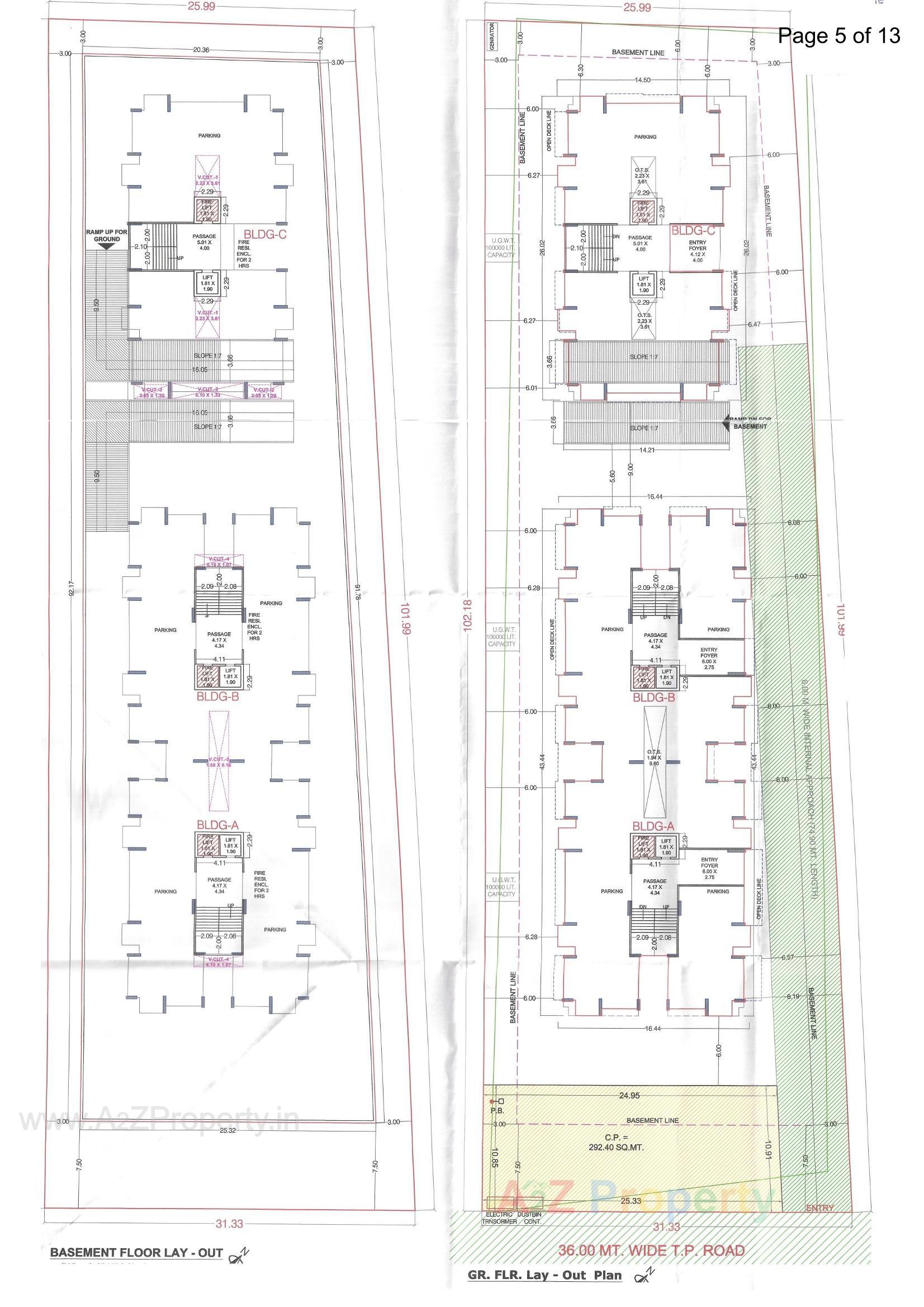
Layout Plan

E-Brochure

Map Location of Nilgiri Heights

Project Details

Address

Nilgiri Heights

T.p.s. No.- 25 (mota Varachha), F.p. No.-102, O.p. No.-102, Block No.671, At Moje : Mota Varachha, Ta:- Adajan, Dist : Surat

Contact

+91 9974699660

Email

nilgiriheights02@gmail.com

Share on
Promoters

Shree Hari Corporation

Rera No

PR/GJ/SURAT/CHORASI/SUDA/RAA12141/100723

Start Date

2023-03-16

End Date

2028-12-31

Area of Project

2,923

District

Surat

State

Gujarat

Project Type

Residential/Group Housing

Architect

CHIRAG K KEVADIA

Structure

SURESH V BARVALIYA

Disclaimer

The details displayed here are for informational purposes only. Information of real estate projects like details, floor area, location are taken from multiple sources on best effort basis. Nothing shall be deemed to constitute legal advice, marketing, offer, invitation, acquire by any entity. We advice you to visit the RERA website before taking any decision based on the contents displayed on this website.

Projects in mo

Projects in Surat