Chronicle of Gajanand Residency

Gajanand Residency rera registered project is located at Dindoli, Surat. at Dindoli, Surat. Gajanand Residency project is being developed by Shri Hari Infra. Rera number of Gajanand Residency project is PR/GJ/SURAT/CHORASI/SUDA/MAA11371/040323. As per rera registration Gajanand Residency project is started on date 2022-10-21 and planned to complete on or before date 2027-03-31.
Brochure of Gajanand Residency project is available for download.

Project Summery of Gajanand Residency

Social Media
Contact

+91 7600919919

Rera No

PR/GJ/SURAT/CHORASI/SUDA/MAA11371/040323

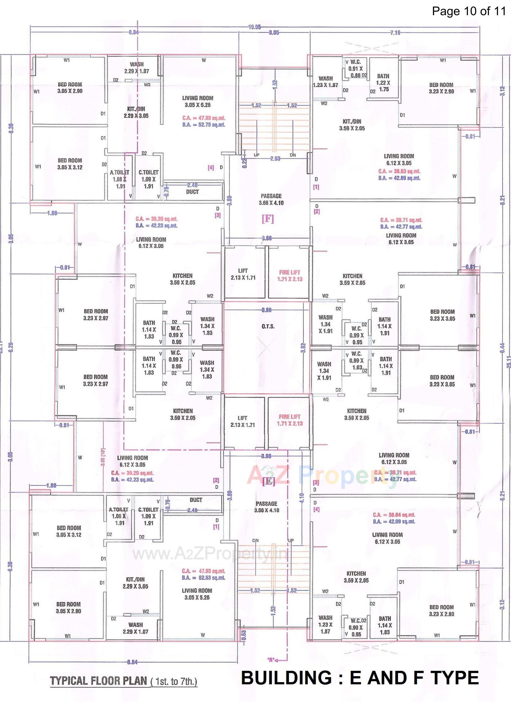
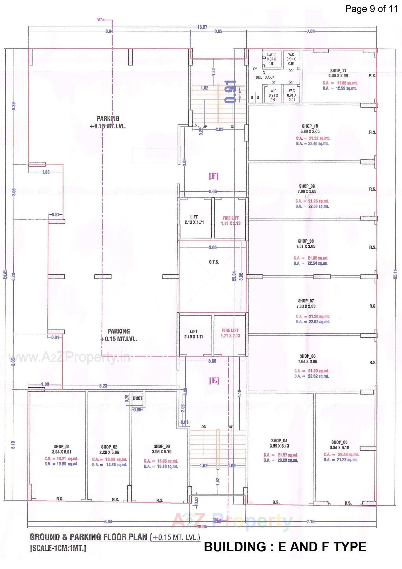
Unit Details of Gajanand Residency

Type Carpet Area (sqft)
A+B
C+D
E+F

3D Elevation

Layout Plan

E-Brochure

Map Location of Gajanand Residency

Keyplan

Keyplan

Project Details

Address

Gajanand Residency

T.p.scheme No:-62 (dindoli - Bhestan - Bhedvad), Block No.- 274/a, F.p.- 78/2, O.p- 78, Moje :- Dindoli, Tal:-choryasi, Dist :- Surat

Contact

+91 7600919919

Email

gajanandresi@gmail.com

Share on
Promoters

Shri Hari Infra

Rera No

PR/GJ/SURAT/CHORASI/SUDA/MAA11371/040323

Start Date

2022-10-21

End Date

2027-03-31

Area of Project

3,270

District

Surat

State

Gujarat

Project Type

Mixed Development

Architect

Aditya Ashokbhai Madhak

Structure

JIGNESH I PATEL

Disclaimer

The details displayed here are for informational purposes only. Information of real estate projects like details, floor area, location are taken from multiple sources on best effort basis. Nothing shall be deemed to constitute legal advice, marketing, offer, invitation, acquire by any entity. We advice you to visit the RERA website before taking any decision based on the contents displayed on this website.

Projects in dindoli

Projects in Surat