Chronicle of Eden Atmos

Eden Atmos rera registered project is located at Sarthana, Surat. at Sarthana, Surat. Eden Atmos project is being developed by . Rera number of Eden Atmos project is PR/GJ/SURAT/CHORYASI/Surat Municipal Corporation/MAA12979/200224/311228. As per rera registration Eden Atmos project is started on date 2023-12-13 and planned to complete on or before date 2028-12-31.
Brochure of Eden Atmos project is available for download.

Project Summery of Eden Atmos

Social Media
Contact

+91 9979948109

Rera No

PR/GJ/SURAT/CHORYASI/Surat Municipal Corporation/MAA12979/200224/311228

Unit Details of Eden Atmos

Type Carpet Area (sqft)
A
B
C

3D Elevation

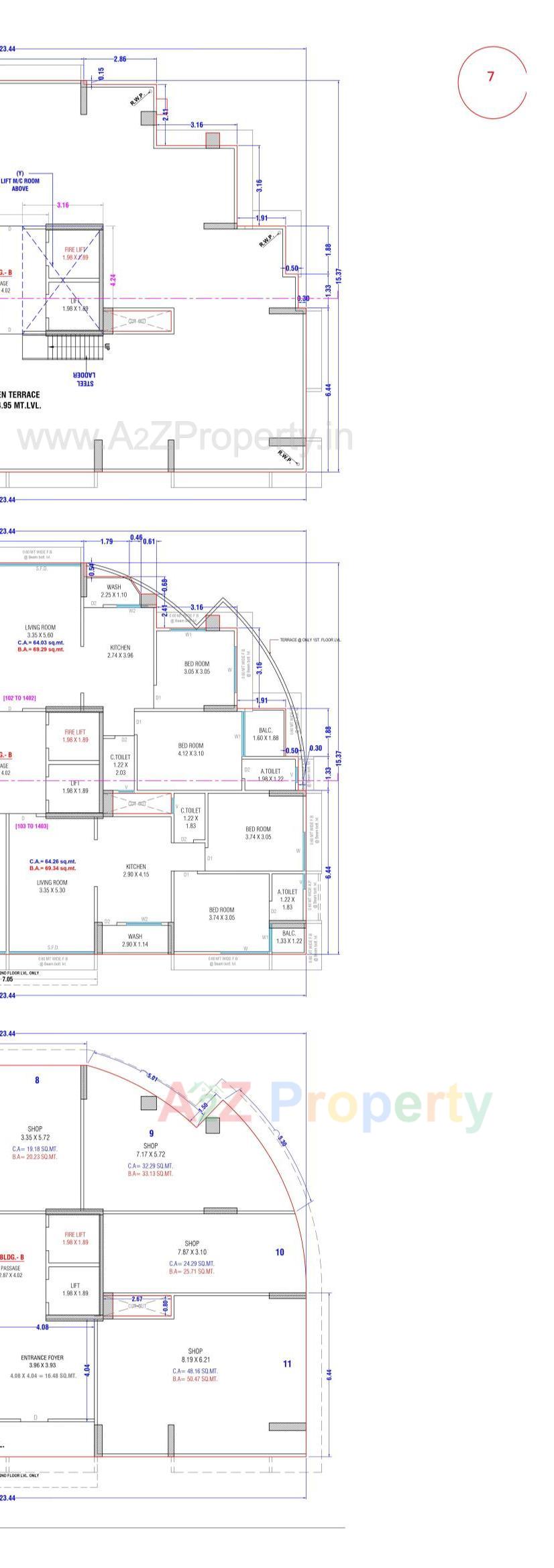
Layout Plan

E-Brochure

Map Location of Eden Atmos

Keyplan

Keyplan

Project Details

Address

Eden Atmos

T. P No.-85, Bloc K No/-79/a, O.p No.- 63, F.p No.-63, Sub Plot-2

Contact

+91 9979948109

Email

edenarcon123@gmail.com

Share on
Promoters

Rera No

PR/GJ/SURAT/CHORYASI/Surat Municipal Corporation/MAA12979/200224/311228

Start Date

2023-12-13

End Date

2028-12-31

District

Surat

State

Gujarat

Project Type

Mixed Development

Architect

Haniket Umeshbhai Patel

Structure

BABULAL KANJIBHAI PATEL

Disclaimer

The details displayed here are for informational purposes only. Information of real estate projects like details, floor area, location are taken from multiple sources on best effort basis. Nothing shall be deemed to constitute legal advice, marketing, offer, invitation, acquire by any entity. We advice you to visit the RERA website before taking any decision based on the contents displayed on this website.

Projects in SARTHANA

Projects in Surat