Chronicle of Atmiya Sai Aangan

Atmiya Sai Aangan rera registered project is located at Khatodara, Surat. at Khatodara, Surat. Atmiya Sai Aangan project is being developed by Desai Vasantrai Manmohanrai And Others. Rera number of Atmiya Sai Aangan project is PR/GJ/SURAT/KAMREJ/SUDA/PAA10032/160422. As per rera registration Atmiya Sai Aangan project is started on date 2022-02-10 and planned to complete on or before date 2024-12-31.

Project Summery of Atmiya Sai Aangan

Social Media
Rera No

PR/GJ/SURAT/KAMREJ/SUDA/PAA10032/160422

Unit Details of Atmiya Sai Aangan

Type Carpet Area (sqft)
1

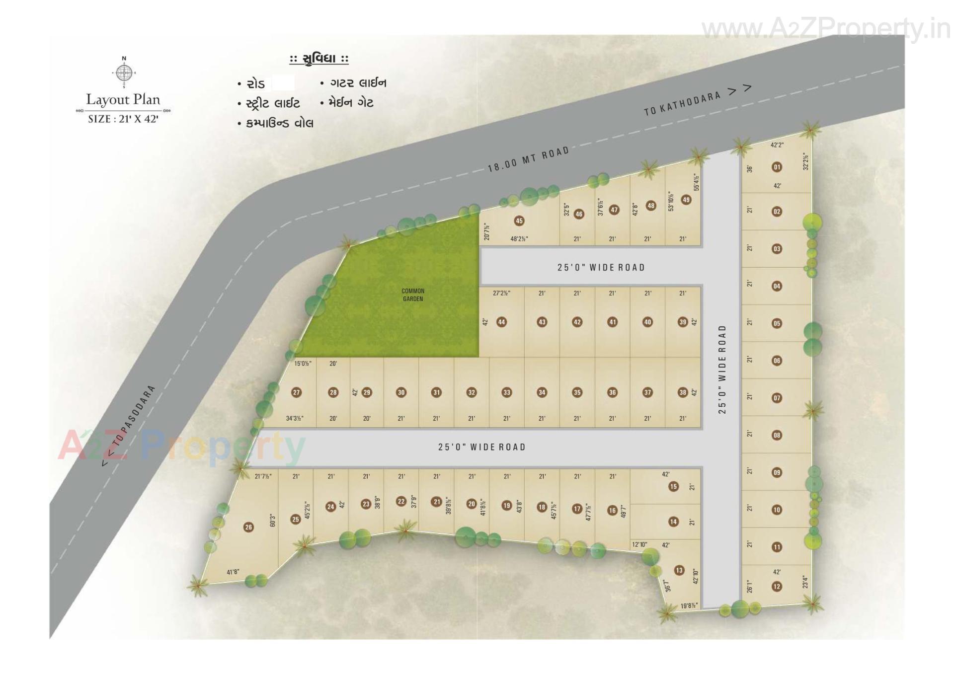
Layout Plan

E-Brochure

Keyplan

Keyplan

Project Details

Address

Atmiya Sai Aangan

Block No.-48, (old Block No.-49), Moje- Khatodara, Tal - Kamrej, Dist - Surat

Email

newatmiyasaiaagan22@gmail.com

Share on
Promoters

Desai Vasantrai Manmohanrai And Others

Rera No

PR/GJ/SURAT/KAMREJ/SUDA/PAA10032/160422

Start Date

2022-02-10

End Date

2024-12-31

Area of Project

6,563.4

District

Surat

State

Gujarat

Project Type

Plotted Development

Architect

NIRAV KHANDWALA

Disclaimer

The details displayed here are for informational purposes only. Information of real estate projects like details, floor area, location are taken from multiple sources on best effort basis. Nothing shall be deemed to constitute legal advice, marketing, offer, invitation, acquire by any entity. We advice you to visit the RERA website before taking any decision based on the contents displayed on this website.

Projects in khatodara

Projects in Surat