Chronicle of Unity Pride

Unity Pride rera registered project is located at Rajkot, Rajkot. at Rajkot, Rajkot. Unity Pride project is being developed by Govardhannathji Enterprise. Rera number of Unity Pride project is PR/GJ/RAJKOT/RAJKOT/Others/CAA07430/080920. As per rera registration Unity Pride project is started on date 2020-07-17 and planned to complete on or before date 2025-06-30.
Brochure of Unity Pride project is available for download.

Project Summery of Unity Pride

Social Media
Rera No

PR/GJ/RAJKOT/RAJKOT/Others/CAA07430/080920

Unit Details of Unity Pride

Type Carpet Area (sqft)
1

3D Elevation

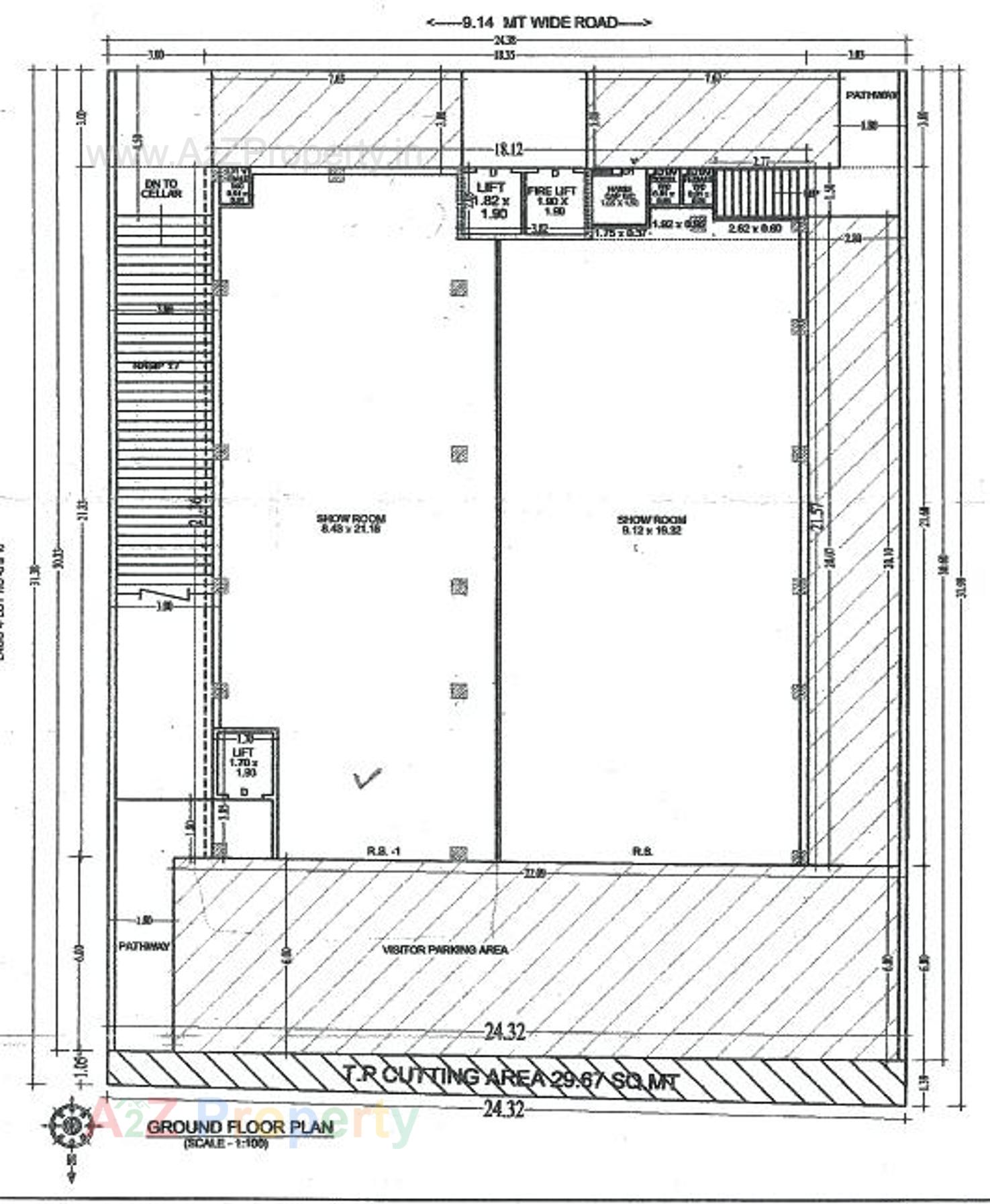
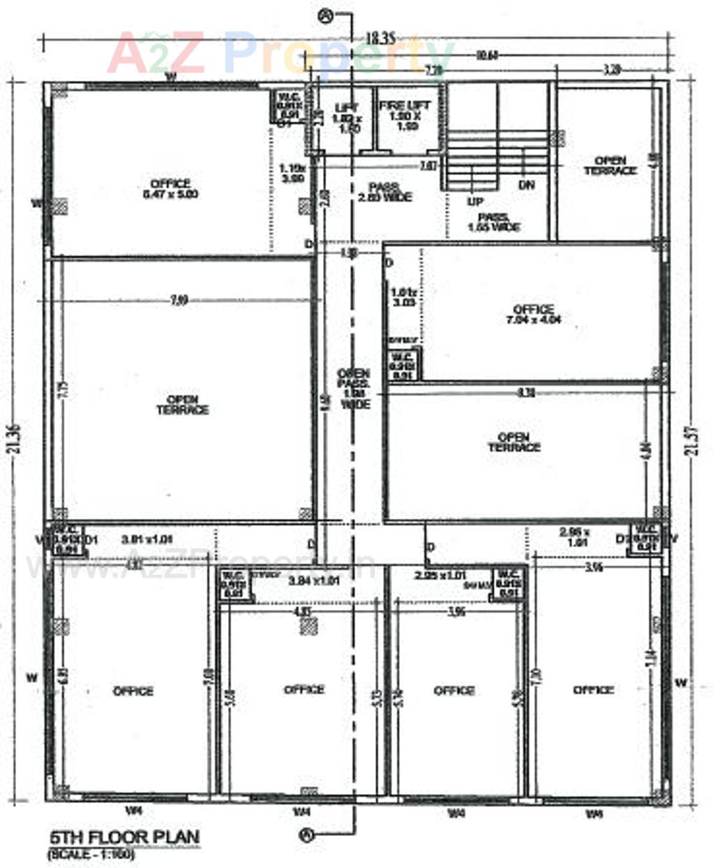
Layout Plan

E-Brochure

Map Location of Unity Pride

Project Details

Address

Unity Pride

Unity Pride, Nr Kotecha Chowk, Kalawad Road, Rajkot

Email

unitypriderera@gmail.com

Share on
Promoters

Govardhannathji Enterprise

Rera No

PR/GJ/RAJKOT/RAJKOT/Others/CAA07430/080920

Start Date

2020-07-17

End Date

2025-06-30

Area of Project

742.59

District

Rajkot

State

Gujarat

Project Type

Commercial

Architect

PAYAL N CHAVDA

Disclaimer

The details displayed here are for informational purposes only. Information of real estate projects like details, floor area, location are taken from multiple sources on best effort basis. Nothing shall be deemed to constitute legal advice, marketing, offer, invitation, acquire by any entity. We advice you to visit the RERA website before taking any decision based on the contents displayed on this website.

Projects in Rajkot

Projects in Rajkot