Chronicle of Shree Hari Darshan

Shree Hari Darshan rera registered project is located at Raiya, Rajkot. at Raiya, Rajkot. Shree Hari Darshan project is being developed by Shree Hari Darshan Enterprise. Rera number of Shree Hari Darshan project is PR/GJ/RAJKOT/RAJKOT/Others/MAA10382/A1M/121122. As per rera registration Shree Hari Darshan project is started on date 2022-04-20 and planned to complete on or before date 2025-12-31.
Brochure of Shree Hari Darshan project is available for download.

Project Summery of Shree Hari Darshan

Social Media
Contact

+91 8141522417

Rera No

PR/GJ/RAJKOT/RAJKOT/Others/MAA10382/A1M/121122

Unit Details of Shree Hari Darshan

Type Carpet Area (sqft)
1

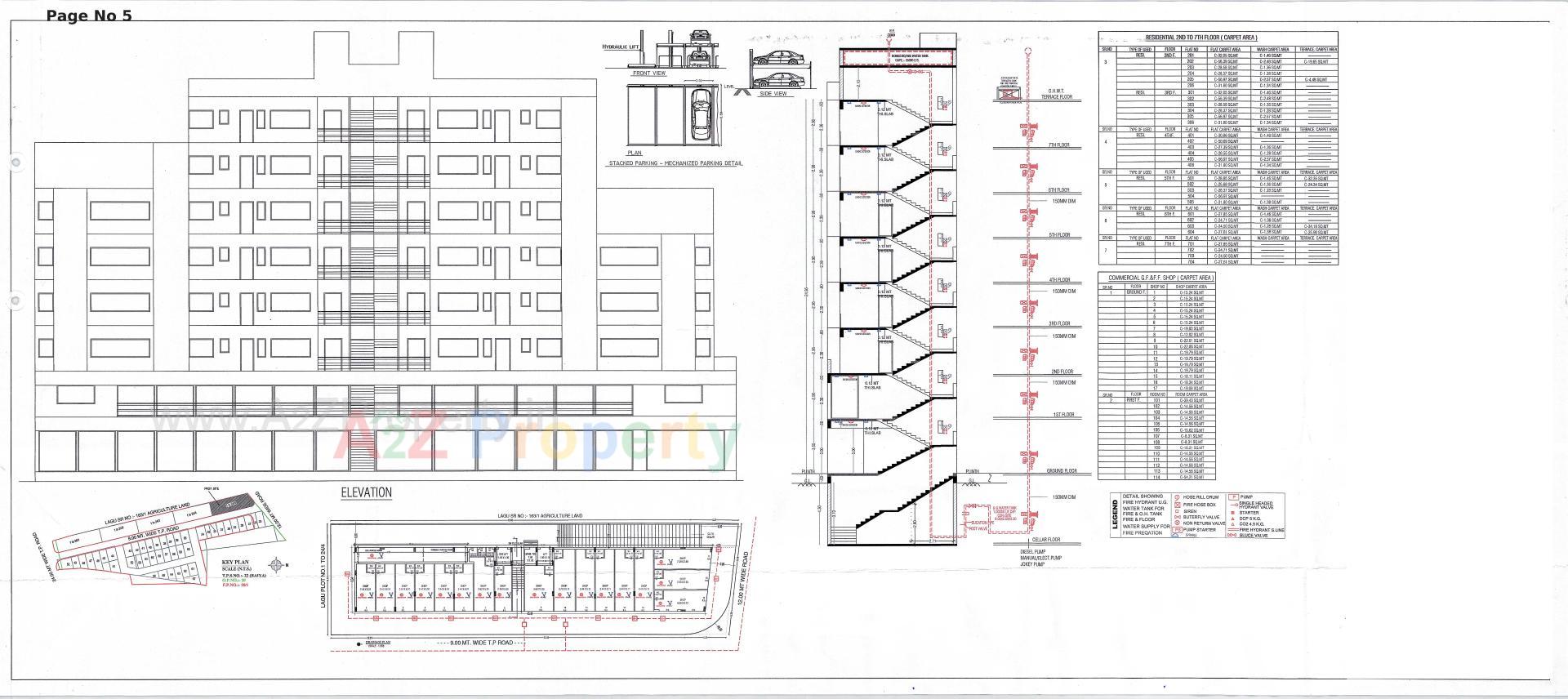
3D Elevation

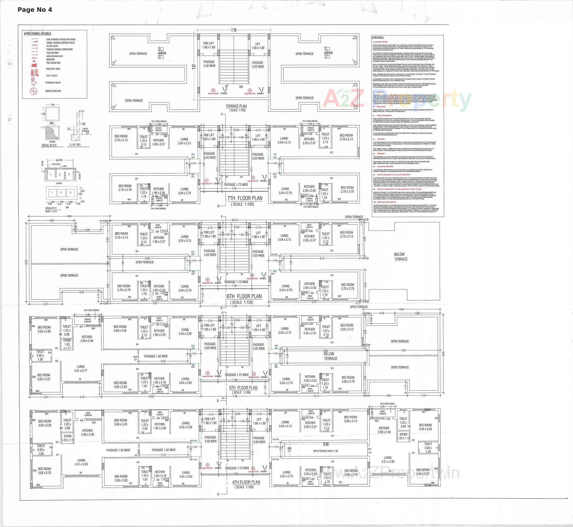
Layout Plan

E-Brochure

Map Location of Shree Hari Darshan

Keyplan

Keyplan

Project Details

Address

Shree Hari Darshan

80/40 Raiya Main Road, Opp Tulsi Super Marketnear Savan Signate, Rajkot

Contact

+91 8141522417

Email

shreeharidarshann@gmail.com

Share on
Promoters

Shree Hari Darshan Enterprise

Rera No

PR/GJ/RAJKOT/RAJKOT/Others/MAA10382/A1M/121122

Start Date

2022-04-20

End Date

2025-12-31

Area of Project

747.13

District

Rajkot

State

Gujarat

Project Type

Mixed Development

Architect

PREM TRIVEDI

Structure

HARDIK PATEL

Disclaimer

The details displayed here are for informational purposes only. Information of real estate projects like details, floor area, location are taken from multiple sources on best effort basis. Nothing shall be deemed to constitute legal advice, marketing, offer, invitation, acquire by any entity. We advice you to visit the RERA website before taking any decision based on the contents displayed on this website.

Projects in raiya

Projects in Rajkot