Chronicle of Satyam Avenue

Satyam Avenue rera registered project is located at Mavdi, Rajkot. Flats at Mavdi, Rajkot. Satyam Avenue project is being developed by Satyam Builders. Rera number of Satyam Avenue project is PR/GJ/RAJKOT/RAJKOT/Others/RAA05905/190819. As per rera registration Satyam Avenue project is started on date 2019-03-27 and planned to complete on or before date 2022-09-30.
Satyam Avenue project is providing amenities like CCTV Surveillance, Lift. Brochure of Satyam Avenue project is available for download.

Project Summery of Satyam Avenue

Social Media
Rera No

PR/GJ/RAJKOT/RAJKOT/Others/RAA05905/190819

Unit Details of Satyam Avenue

Type Carpet Area (sqft)
SATYAM AVENUE 475 - 522

3D Elevation

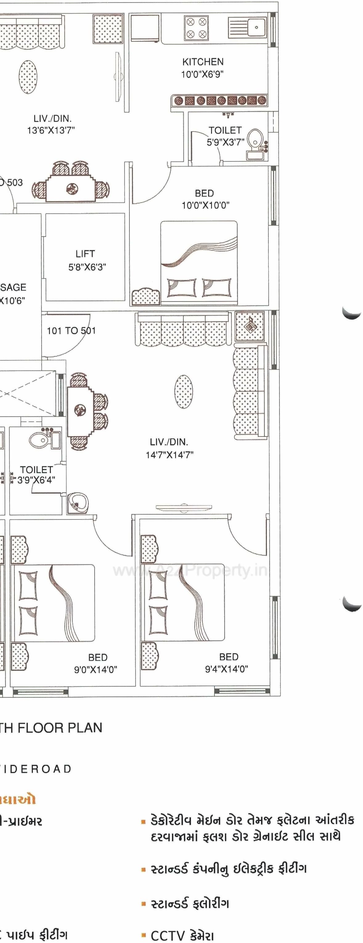
Layout Plan

Amenities of Satyam Avenue

* Actual amenities may vary with displayed information.

Lift

CCTV Surveillance

E-Brochure

Current Construction Photos

Map Location of Satyam Avenue

Keyplan

Keyplan

Project Details

Address

Satyam Avenue

Satyam Park, Behind Sarvoday School, 80 Feet Road, Mavdi, Rajkot-360004

Email

satyambuilders04102018@gmail.com

Share on
Promoters

Satyam Builders

Rera No

PR/GJ/RAJKOT/RAJKOT/Others/RAA05905/190819

Start Date

2019-03-27

End Date

2022-09-30

Area of Project

298.92

District

Rajkot

State

Gujarat

Project Type

Residential/Group Housing

Disclaimer

The details displayed here are for informational purposes only. Information of real estate projects like details, floor area, location are taken from multiple sources on best effort basis. Nothing shall be deemed to constitute legal advice, marketing, offer, invitation, acquire by any entity. We advice you to visit the RERA website before taking any decision based on the contents displayed on this website.

Projects in mavdi

Projects in Rajkot