Chronicle of Pramukh Exotica

Pramukh Exotica rera registered project is located at Mavdi, Rajkot. Offices at Mavdi, Rajkot. Pramukh Exotica project is being developed by Shreeji Developers. Rera number of Pramukh Exotica project is PR/GJ/RAJKOT/RAJKOT/Others/RAA03484/250918. As per rera registration Pramukh Exotica project is started on date 2018-06-01 and planned to complete on or before date 2024-06-30.
Pramukh Exotica project is providing amenities like CCTV Surveillance, Children Play Area, Landscape Garden. Brochure of Pramukh Exotica project is available for download.

Project Summery of Pramukh Exotica

Social Media
Contact

+91 9825197911, +91 9824828314

Rera No

PR/GJ/RAJKOT/RAJKOT/Others/RAA03484/250918

Unit Details of Pramukh Exotica

Type Carpet Area (sqft)
A1 872 - 874
A2 833 - 835
B1 576 - 576
B2 560 - 563
B3 560 - 563

3D Elevation

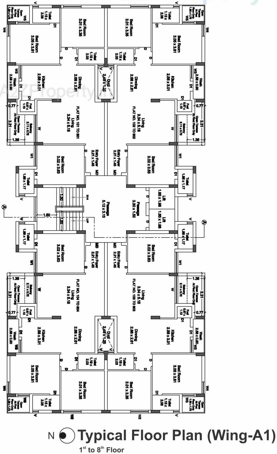
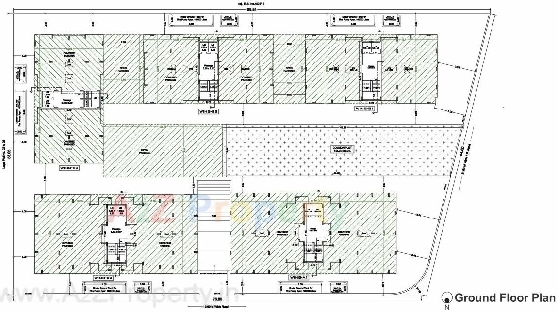
Layout Plan

Amenities of Pramukh Exotica

* Actual amenities may vary with displayed information.

Children Play Area

CCTV Surveillance

Landscape Garden

E-Brochure

Current Construction Photos

Map Location of Pramukh Exotica

Project Details

Address

Pramukh Exotica

Pramukh Exotica, Asopalav Park, Opp. Sarvoday School, 80 Ft Road, Mavdi, Rajkot

Contact

+91 9825197911, +91 9824828314

Email

pramukhexotica.rera@gmail.com

Share on
Promoters

Shreeji Developers

Rera No

PR/GJ/RAJKOT/RAJKOT/Others/RAA03484/250918

Start Date

2018-06-01

End Date

2024-06-30

Area of Project

4,411.34

District

Rajkot

State

Gujarat

Project Type

Residential/Group Housing

Disclaimer

The details displayed here are for informational purposes only. Information of real estate projects like details, floor area, location are taken from multiple sources on best effort basis. Nothing shall be deemed to constitute legal advice, marketing, offer, invitation, acquire by any entity. We advice you to visit the RERA website before taking any decision based on the contents displayed on this website.

Projects in mavdi

Projects in Rajkot