Chronicle of Prabhu Navam

Prabhu Navam rera registered project is located at Nanamava, Rajkot. at Nanamava, Rajkot. Prabhu Navam project is being developed by . Rera number of Prabhu Navam project is PR/GJ/RAJKOT/RAJKOT/Rajkot Municipal Corporation/CAA13070/040324/311228. As per rera registration Prabhu Navam project is started on date 2023-11-29 and planned to complete on or before date 2028-12-31.
Brochure of Prabhu Navam project is available for download.

Project Summery of Prabhu Navam

Social Media
Contact

+91 9824315970

Rera No

PR/GJ/RAJKOT/RAJKOT/Rajkot Municipal Corporation/CAA13070/040324/311228

Unit Details of Prabhu Navam

Type Carpet Area (sqft)
1

3D Elevation

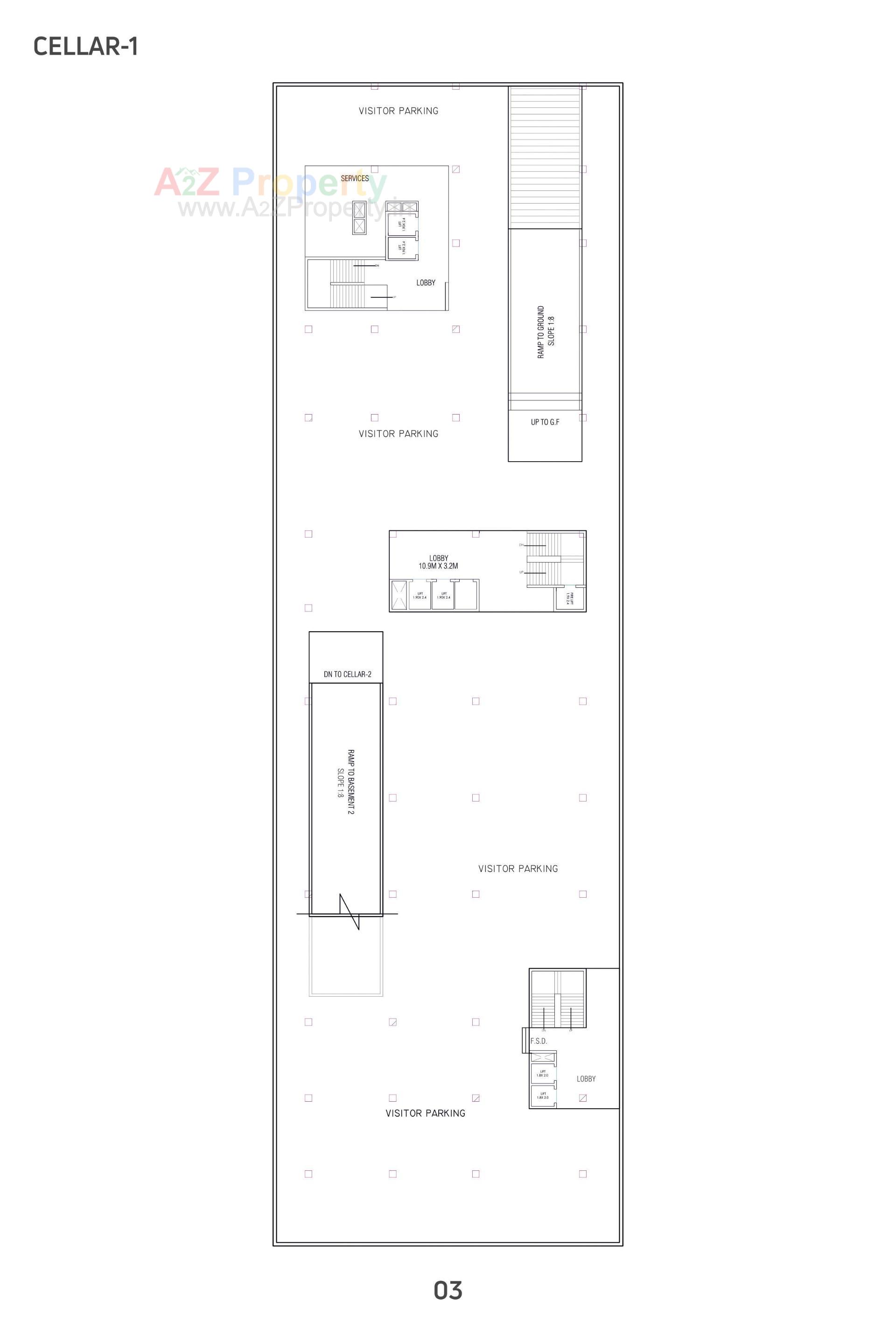
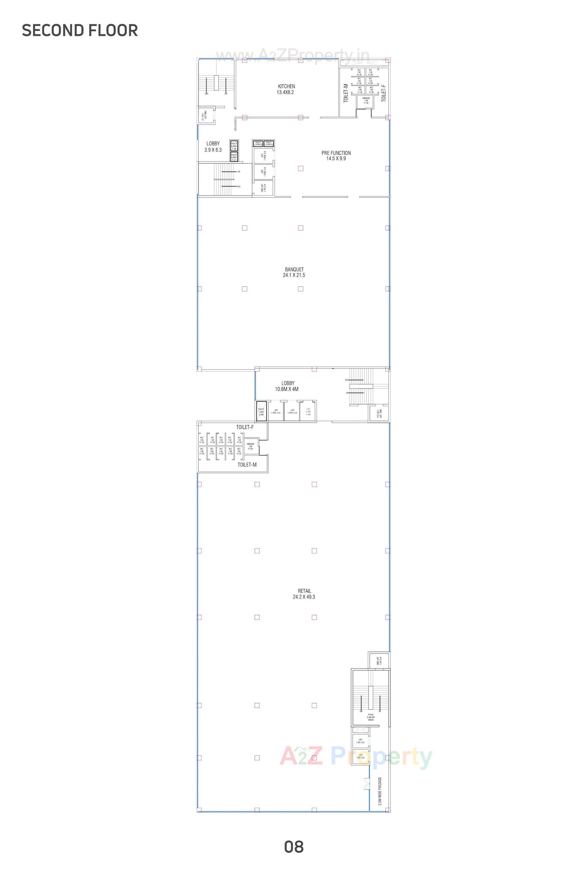
Layout Plan

E-Brochure

Map Location of Prabhu Navam

Keyplan

Keyplan

Project Details

Address

Prabhu Navam

Prabhu Navam, Nanamava Circle,

Contact

+91 9824315970

Email

prabhunavamrera@gmail.com

Share on
Promoters

Rera No

PR/GJ/RAJKOT/RAJKOT/Rajkot Municipal Corporation/CAA13070/040324/311228

Start Date

2023-11-29

End Date

2028-12-31

District

Rajkot

State

Gujarat

Project Type

Commercial

Architect

Dhwani Divyesh Badani

Structure

JAYESH DAYASHANKER PANDYA

Disclaimer

The details displayed here are for informational purposes only. Information of real estate projects like details, floor area, location are taken from multiple sources on best effort basis. Nothing shall be deemed to constitute legal advice, marketing, offer, invitation, acquire by any entity. We advice you to visit the RERA website before taking any decision based on the contents displayed on this website.

Projects in NANAMAVA

Projects in Rajkot