Chronicle of Parasmani

Parasmani rera registered project is located at Rajkot, Rajkot. at Rajkot, Rajkot. Parasmani project is being developed by Piyush Vinodrai Parekh Proprietor Of Hrushik Developer. Rera number of Parasmani project is PR/GJ/RAJKOT/RAJKOT/Others/MAA13239/040424/300626. As per rera registration Parasmani project is started on date 2023-03-24 and planned to complete on or before date 2026-06-30.
Brochure of Parasmani project is available for download.

Project Summery of Parasmani

Social Media
Contact

+91 9409018886

Rera No

PR/GJ/RAJKOT/RAJKOT/Others/MAA13239/040424/300626

Unit Details of Parasmani

Type Carpet Area (sqft)
A

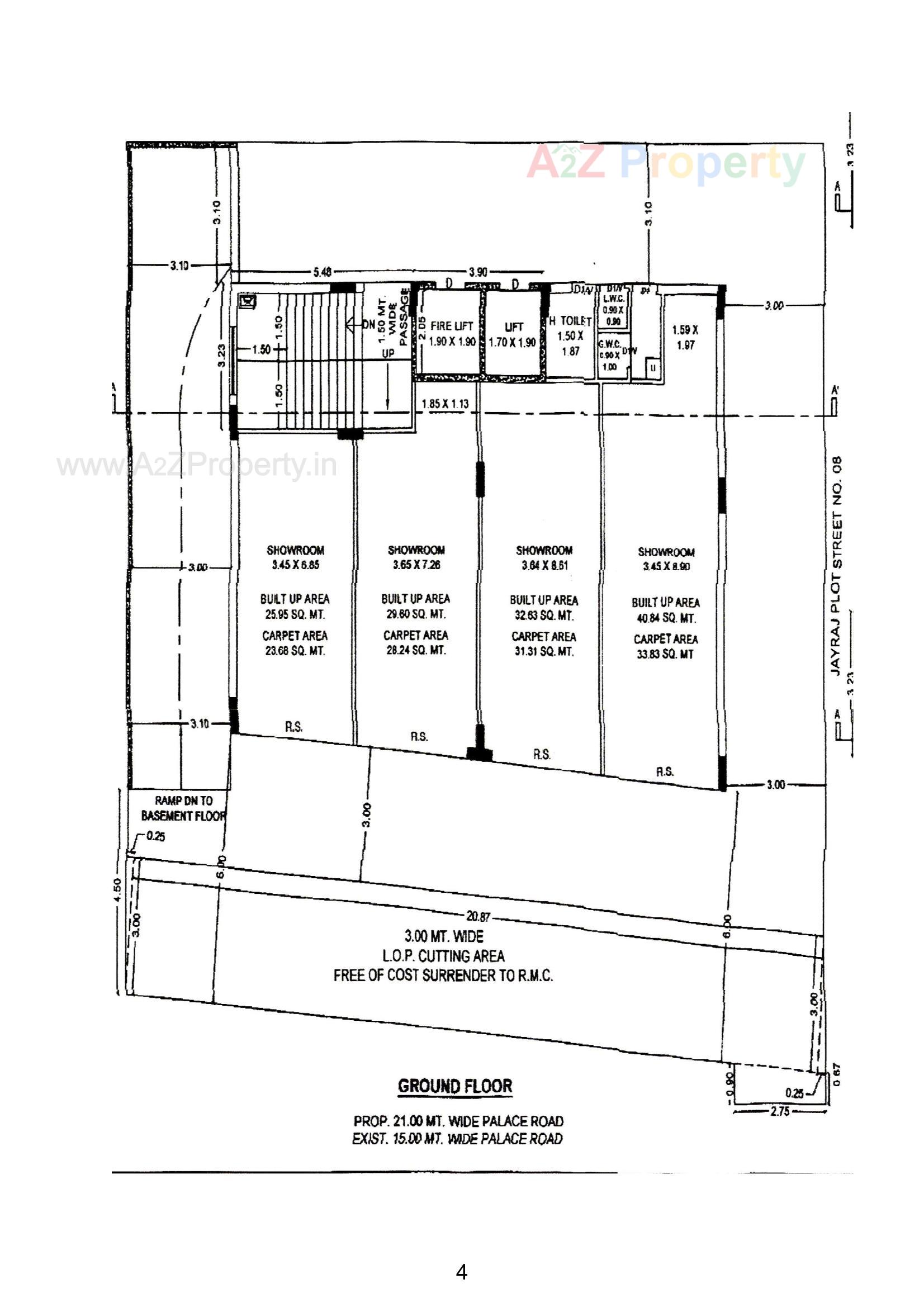
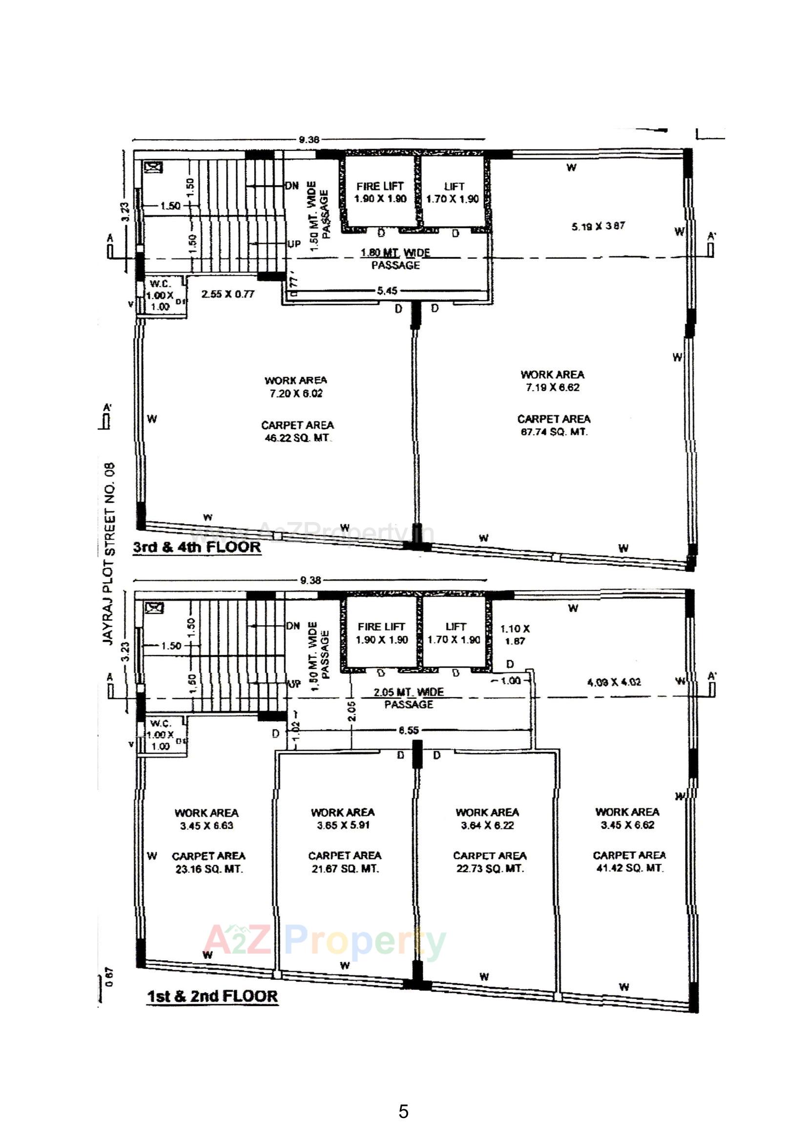
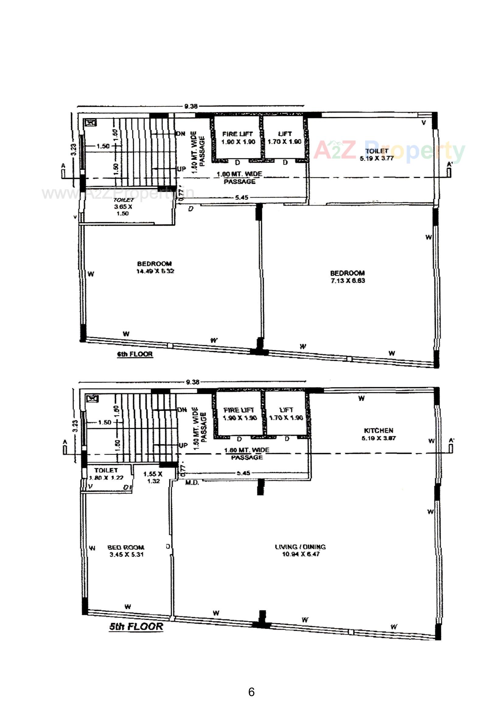
Layout Plan

E-Brochure

Map Location of Parasmani

Keyplan

Keyplan

Project Details

Address

Parasmani

Palace Road

Contact

+91 9409018886

Email

parasmanirera@gmail.com

Share on
Promoters

Piyush Vinodrai Parekh Proprietor Of Hrushik Developer

Rera No

PR/GJ/RAJKOT/RAJKOT/Others/MAA13239/040424/300626

Start Date

2023-03-24

End Date

2026-06-30

Area of Project

350.91

District

Rajkot

State

Gujarat

Project Type

Mixed Development

Architect

BHARGAV GAJERA

Structure

ASHVIN LODHIYA

Disclaimer

The details displayed here are for informational purposes only. Information of real estate projects like details, floor area, location are taken from multiple sources on best effort basis. Nothing shall be deemed to constitute legal advice, marketing, offer, invitation, acquire by any entity. We advice you to visit the RERA website before taking any decision based on the contents displayed on this website.

Projects in RAJKOT

Projects in Rajkot