Chronicle of Pacific

Pacific rera registered project is located at Mavdi, Rajkot. at Mavdi, Rajkot. Pacific project is being developed by Ved Developers. Rera number of Pacific project is PR/GJ/RAJKOT/RAJKOT/Others/CAA09981/300322. As per rera registration Pacific project is started on date 2021-12-28 and planned to complete on or before date 2025-12-31.
Brochure of Pacific project is available for download.

Project Summery of Pacific

Social Media
Rera No

PR/GJ/RAJKOT/RAJKOT/Others/CAA09981/300322

Unit Details of Pacific

Type Carpet Area (sqft)
1

3D Elevation

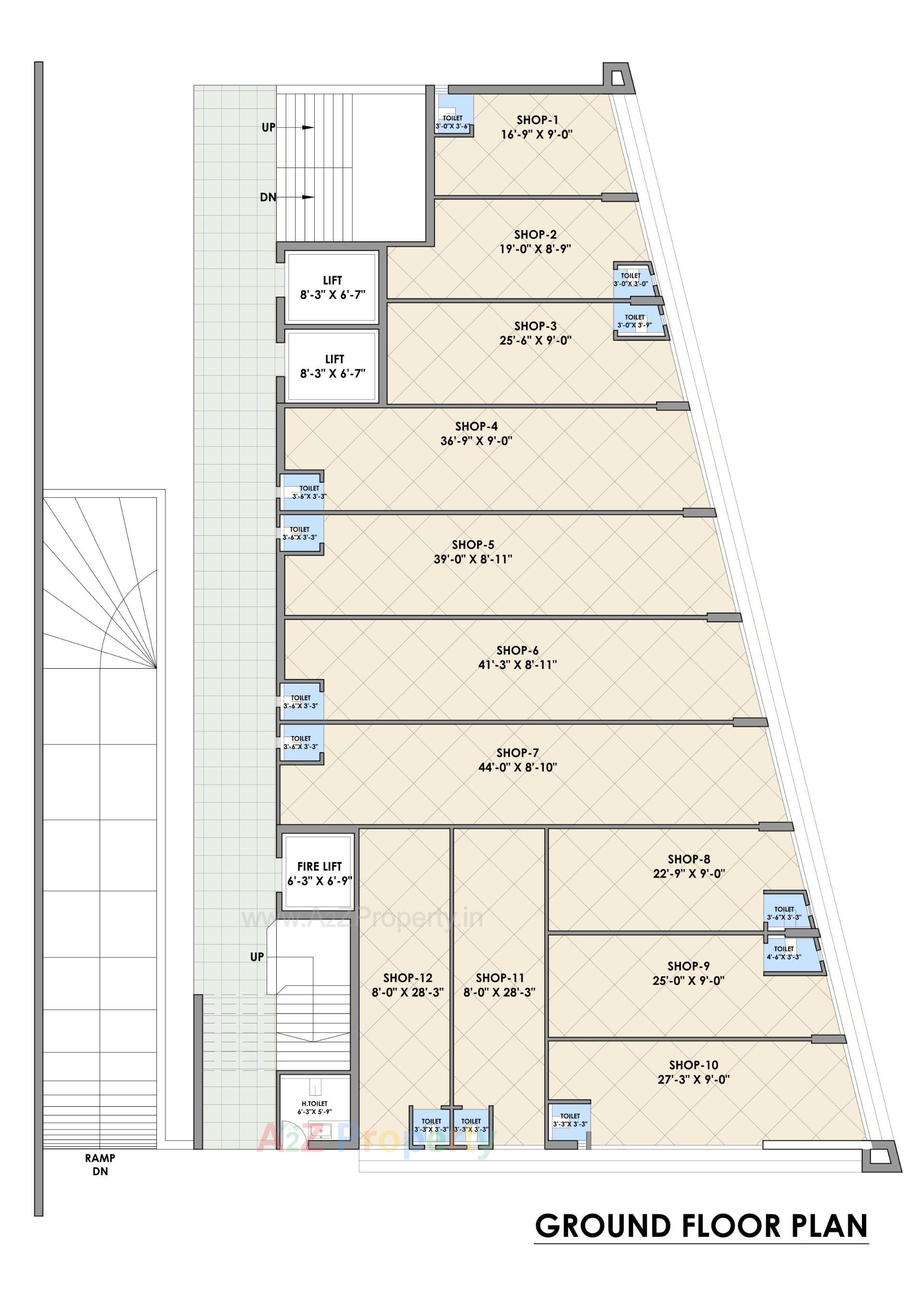
Layout Plan

E-Brochure

Project Details

Address

Pacific

Pacific, Mavdi Police Headquarter Main Road, Ambika Township, Near Copper Sand 1, Rajkot

Email

pacificrera@gmail.com

Share on
Promoters

Ved Developers

Rera No

PR/GJ/RAJKOT/RAJKOT/Others/CAA09981/300322

Start Date

2021-12-28

End Date

2025-12-31

Area of Project

922.51

District

Rajkot

State

Gujarat

Project Type

Commercial

Architect

VIJAY VADODARIYA

Disclaimer

The details displayed here are for informational purposes only. Information of real estate projects like details, floor area, location are taken from multiple sources on best effort basis. Nothing shall be deemed to constitute legal advice, marketing, offer, invitation, acquire by any entity. We advice you to visit the RERA website before taking any decision based on the contents displayed on this website.

Projects in mavdi

Projects in Rajkot