Chronicle of Korat Korner

Korat Korner rera registered project is located at Rajkot, Rajkot. at Rajkot, Rajkot. Korat Korner project is being developed by Korat Developers. Rera number of Korat Korner project is PR/GJ/RAJKOT/RAJKOT/Others/CAA06992/140520. As per rera registration Korat Korner project is started on date 2019-09-29 and planned to complete on or before date 2023-06-30.
Brochure of Korat Korner project is available for download.

Project Summery of Korat Korner

Social Media
Rera No

PR/GJ/RAJKOT/RAJKOT/Others/CAA06992/140520

Unit Details of Korat Korner

Type Carpet Area (sqft)
1 284 - 2155

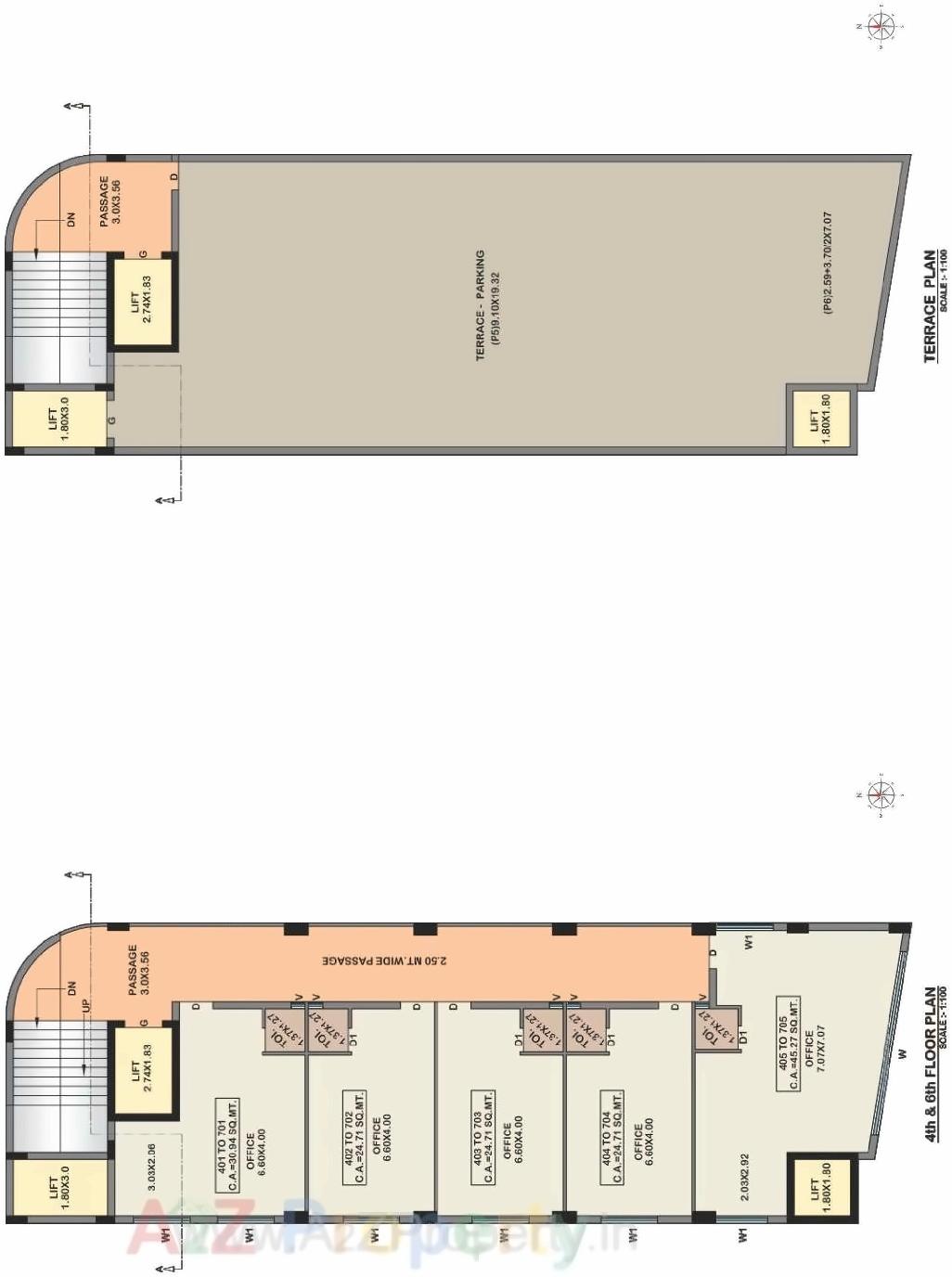
Layout Plan

E-Brochure

Map Location of Korat Korner

Keyplan

Keyplan

Project Details

Address

Korat Korner

Kalawad Road, Near King Kraft, Mota Mava, Rajkot

Email

koratkorner@gmail.com

Share on
Promoters

Korat Developers

Rera No

PR/GJ/RAJKOT/RAJKOT/Others/CAA06992/140520

Start Date

2019-09-29

End Date

2023-06-30

Area of Project

630.22

District

Rajkot

State

Gujarat

Project Type

Commercial

Structure

ASHVIN LODHIYA

Disclaimer

The details displayed here are for informational purposes only. Information of real estate projects like details, floor area, location are taken from multiple sources on best effort basis. Nothing shall be deemed to constitute legal advice, marketing, offer, invitation, acquire by any entity. We advice you to visit the RERA website before taking any decision based on the contents displayed on this website.

Projects in Rajkot

Projects in Rajkot