Chronicle of Kasturi

Kasturi rera registered project is located at Rajkot, Rajkot. at Rajkot, Rajkot. Kasturi project is being developed by Mahavir Developers. Rera number of Kasturi project is PR/GJ/RAJKOT/RAJKOT/Others/RAA07840/311220. As per rera registration Kasturi project is started on date 2019-11-16 and planned to complete on or before date 2022-03-31.
Brochure of Kasturi project is available for download.

Project Summery of Kasturi

Social Media
Rera No

PR/GJ/RAJKOT/RAJKOT/Others/RAA07840/311220

Unit Details of Kasturi

Type Carpet Area (sqft)
1 231 - 244

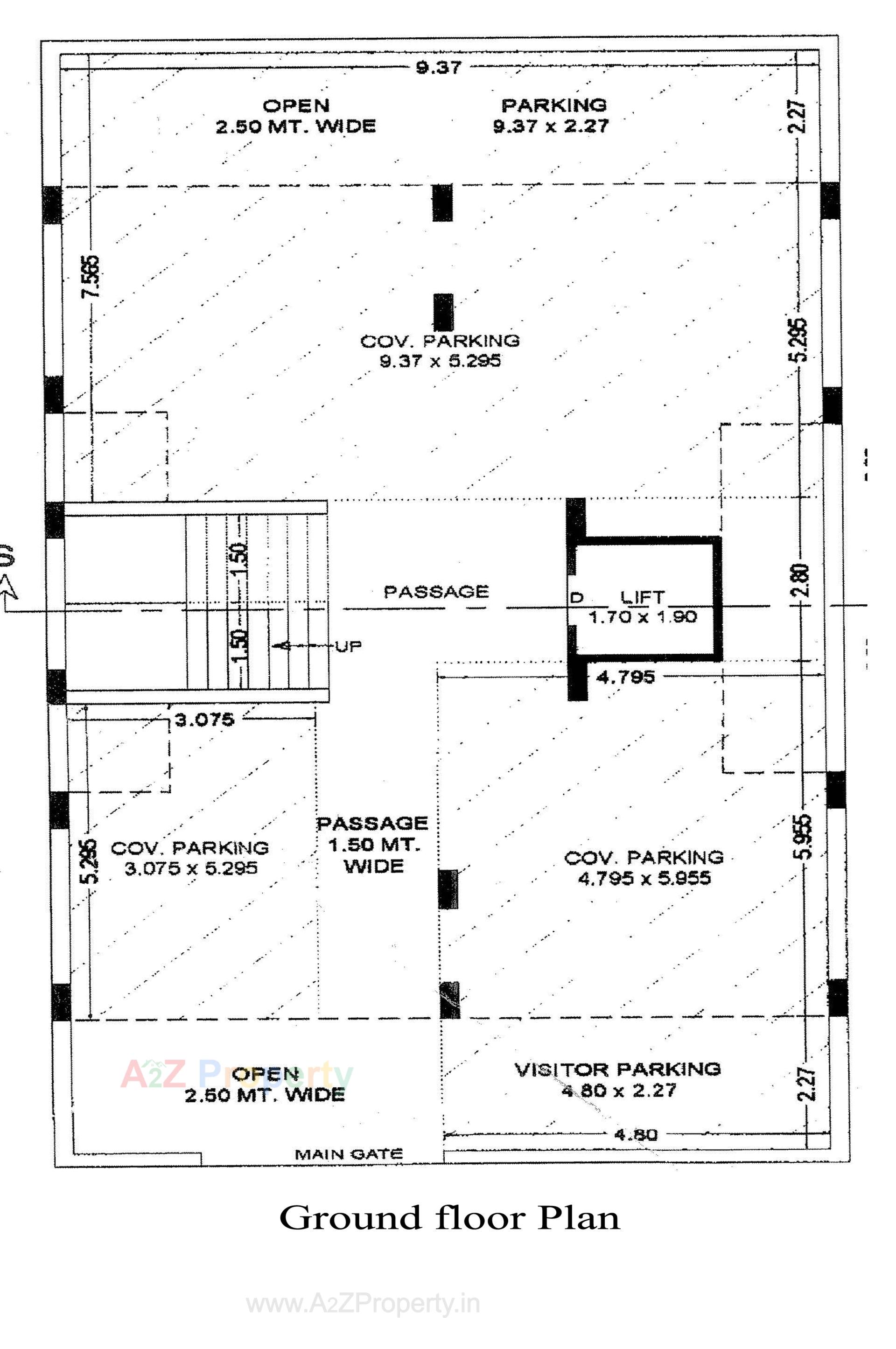
Layout Plan

E-Brochure

Keyplan

Keyplan

Project Details

Address

Kasturi

5-mehul Nagar, Behind Nilkanth Cinema, Near Kothariya Main Road, Rajkot

Email

kasturiwinga.rera@gmail.com

Share on
Promoters

Mahavir Developers

Rera No

PR/GJ/RAJKOT/RAJKOT/Others/RAA07840/311220

Start Date

2019-11-16

End Date

2022-03-31

Area of Project

187.26

District

Rajkot

State

Gujarat

Project Type

Residential/Group Housing

Structure

Bipin Adhiya

Disclaimer

The details displayed here are for informational purposes only. Information of real estate projects like details, floor area, location are taken from multiple sources on best effort basis. Nothing shall be deemed to constitute legal advice, marketing, offer, invitation, acquire by any entity. We advice you to visit the RERA website before taking any decision based on the contents displayed on this website.

Projects in rajkot

Projects in Rajkot