Chronicle of Iskon Prime

Iskon Prime rera registered project is located at Madhapar, Rajkot. at Madhapar, Rajkot. Iskon Prime project is being developed by Satish Tulsibhai Vadodariya And Others. Rera number of Iskon Prime project is PR/GJ/RAJKOT/RAJKOT/Others/RAA12215/310823. As per rera registration Iskon Prime project is started on date 2022-07-05 and planned to complete on or before date 2026-03-31.
Brochure of Iskon Prime project is available for download.

Project Summery of Iskon Prime

Social Media
Contact

+91 9824281222

Rera No

PR/GJ/RAJKOT/RAJKOT/Others/RAA12215/310823

Unit Details of Iskon Prime

Type Carpet Area (sqft)
ISKON PRIME

3D Elevation

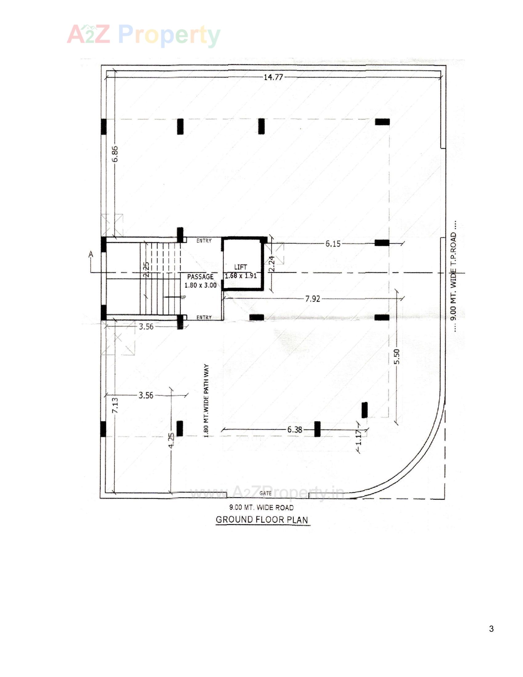
Layout Plan

E-Brochure

Map Location of Iskon Prime

Project Details

Address

Iskon Prime

Back Bone Residency, Madhapar 27jamnagar Road

Contact

+91 9824281222

Email

iskonprimerera@gmail.com

Share on
Promoters

Satish Tulsibhai Vadodariya And Others

Rera No

PR/GJ/RAJKOT/RAJKOT/Others/RAA12215/310823

Start Date

2022-07-05

End Date

2026-03-31

Area of Project

264.25

District

Rajkot

State

Gujarat

Project Type

Residential/Group Housing

Architect

PAYAL NIRAV CHAVDA

Structure

VARUN SUCHAK

Disclaimer

The details displayed here are for informational purposes only. Information of real estate projects like details, floor area, location are taken from multiple sources on best effort basis. Nothing shall be deemed to constitute legal advice, marketing, offer, invitation, acquire by any entity. We advice you to visit the RERA website before taking any decision based on the contents displayed on this website.

Projects in madhapar

Projects in Rajkot