Chronicle of Golden Plaza

Golden Plaza rera registered project is located at Vavdi, Rajkot. at Vavdi, Rajkot. Golden Plaza project is being developed by Sukhnath Developers. Rera number of Golden Plaza project is PR/GJ/RAJKOT/RAJKOT/Others/MAA12031/280623. As per rera registration Golden Plaza project is started on date 2023-04-26 and planned to complete on or before date 2028-03-31.
Brochure of Golden Plaza project is available for download.

Project Summery of Golden Plaza

Social Media
Contact

+91 7567787940

Rera No

PR/GJ/RAJKOT/RAJKOT/Others/MAA12031/280623

Unit Details of Golden Plaza

Type Carpet Area (sqft)
GOLDEN PLAZA

3D Elevation

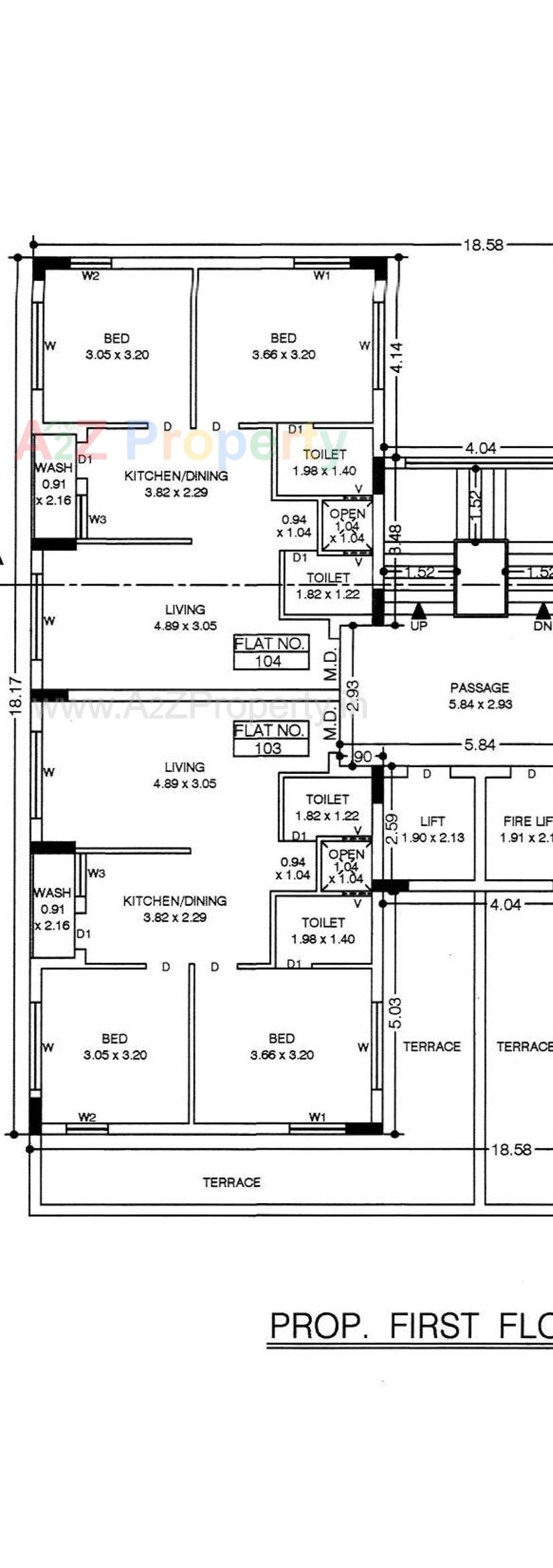
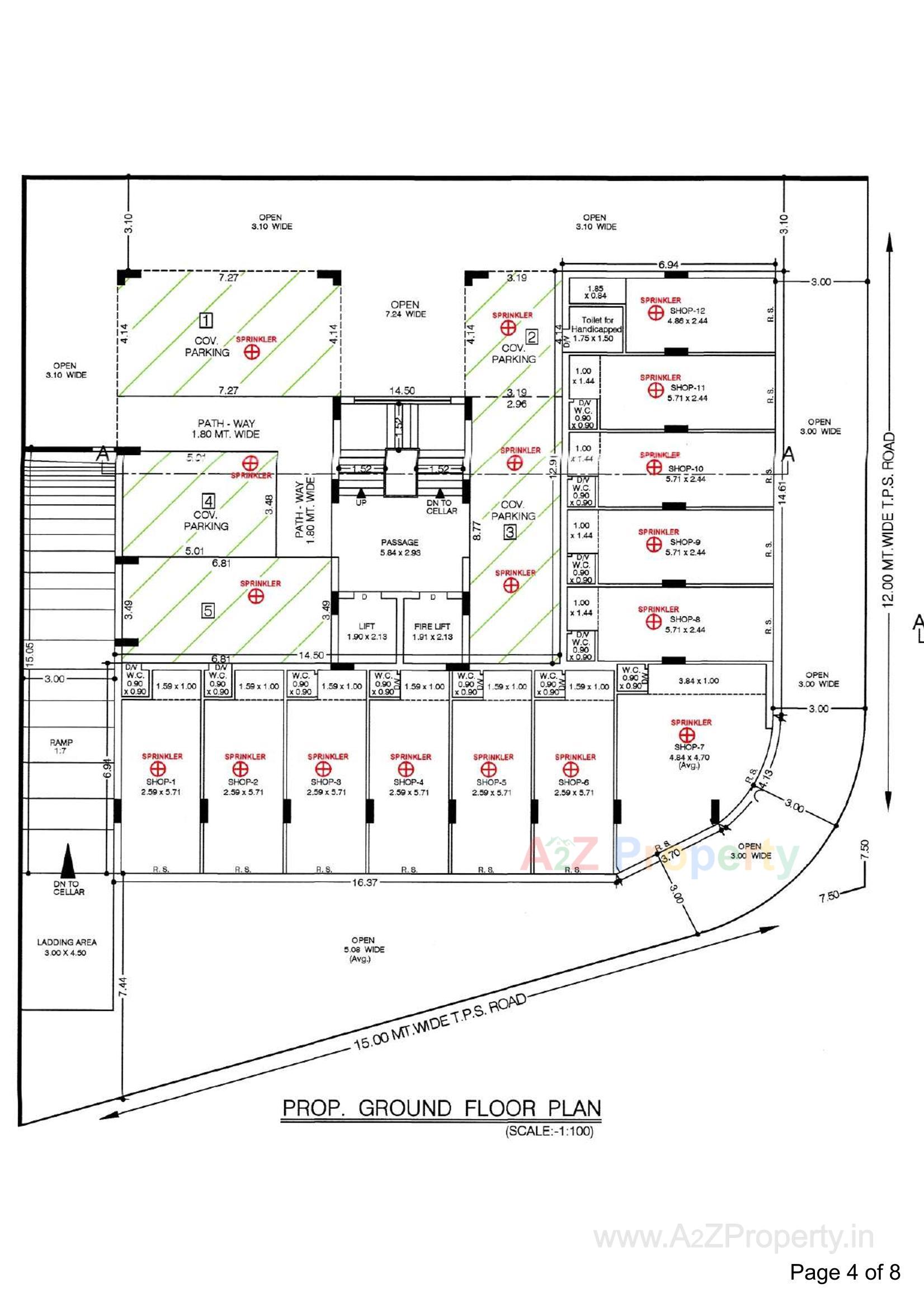
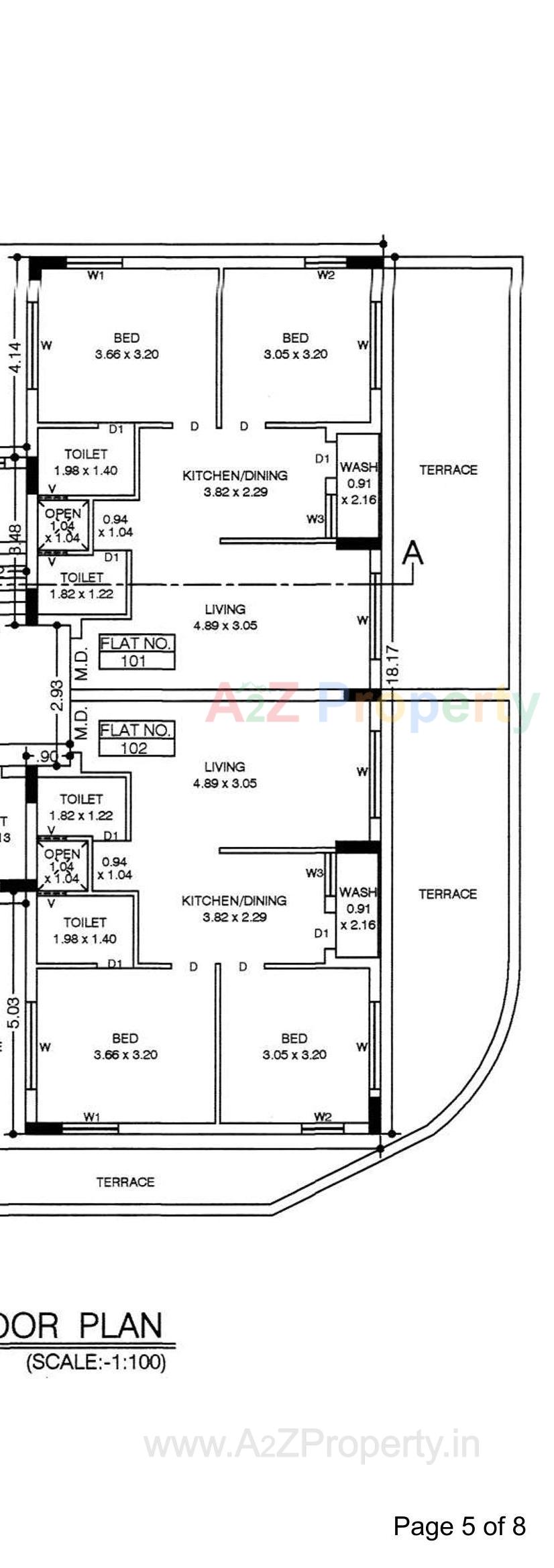
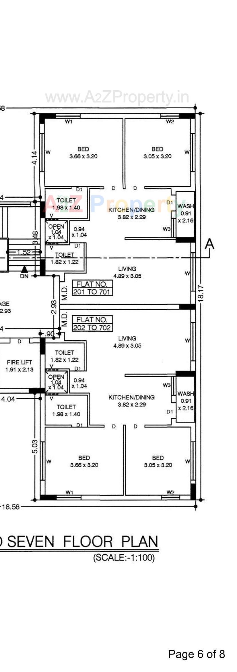
Layout Plan

E-Brochure

Map Location of Golden Plaza

Project Details

Address

Golden Plaza

Plot No. 3, Revenue Survey No.59/p1 (vavdi), T.p.s.no. 15(vavdi), F.p.no. 12/1/2, O.p.no.12/1, Ward No.12, Mathura Park-a, Vavdi, Rajkot, Gujarat-360004.

Contact

+91 7567787940

Email

sukhnathdevelopers2023@gmail.com

Share on
Promoters

Sukhnath Developers

Rera No

PR/GJ/RAJKOT/RAJKOT/Others/MAA12031/280623

Start Date

2023-04-26

End Date

2028-03-31

Area of Project

746.23

District

Rajkot

State

Gujarat

Project Type

Mixed Development

Disclaimer

The details displayed here are for informational purposes only. Information of real estate projects like details, floor area, location are taken from multiple sources on best effort basis. Nothing shall be deemed to constitute legal advice, marketing, offer, invitation, acquire by any entity. We advice you to visit the RERA website before taking any decision based on the contents displayed on this website.

Projects in vavdi

Projects in Rajkot