Chronicle of Corporate Avenue

Corporate Avenue rera registered project is located at Nana-mava, Rajkot. null at Nana-mava, Rajkot. Corporate Avenue project is being developed by Dml Infrastructure. Rera number of Corporate Avenue project is PR/GJ/RAJKOT/RAJKOT/Others/MAA01108/261217. As per rera registration Corporate Avenue project is started on date 2015-12-11 and planned to complete on or before date 2019-12-31.
Corporate Avenue project is providing amenities like Lift, 24x7 Security. Brochure of Corporate Avenue project is available for download.

Project Summery of Corporate Avenue

Social Media
Contact

+91 9824490509

Rera No

PR/GJ/RAJKOT/RAJKOT/Others/MAA01108/261217

Unit Details of Corporate Avenue

Type Carpet Area (sqft)
Corporate Avenue 188 - 1553

3D Elevation

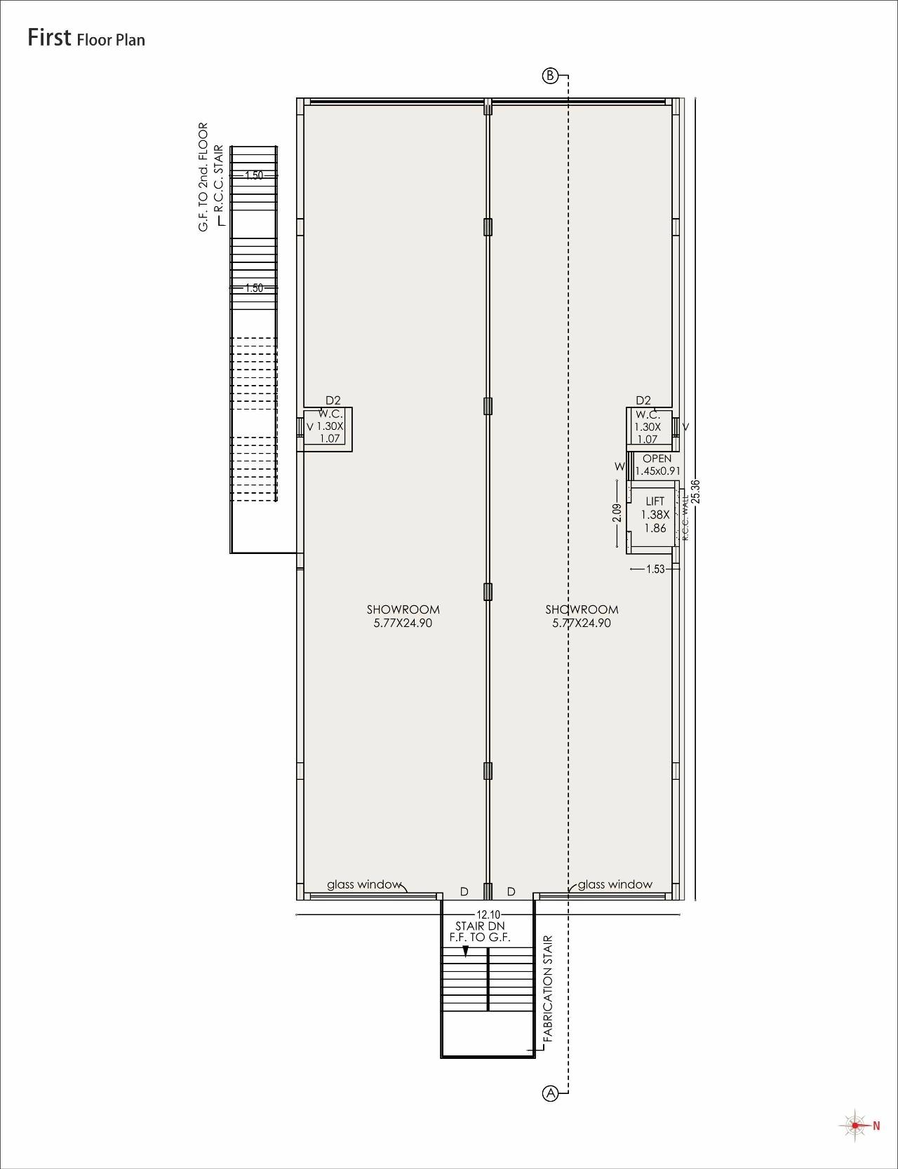
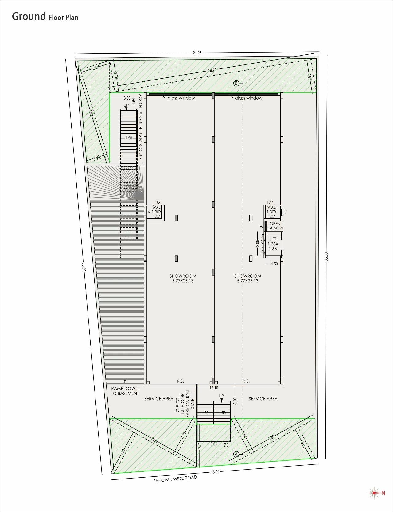
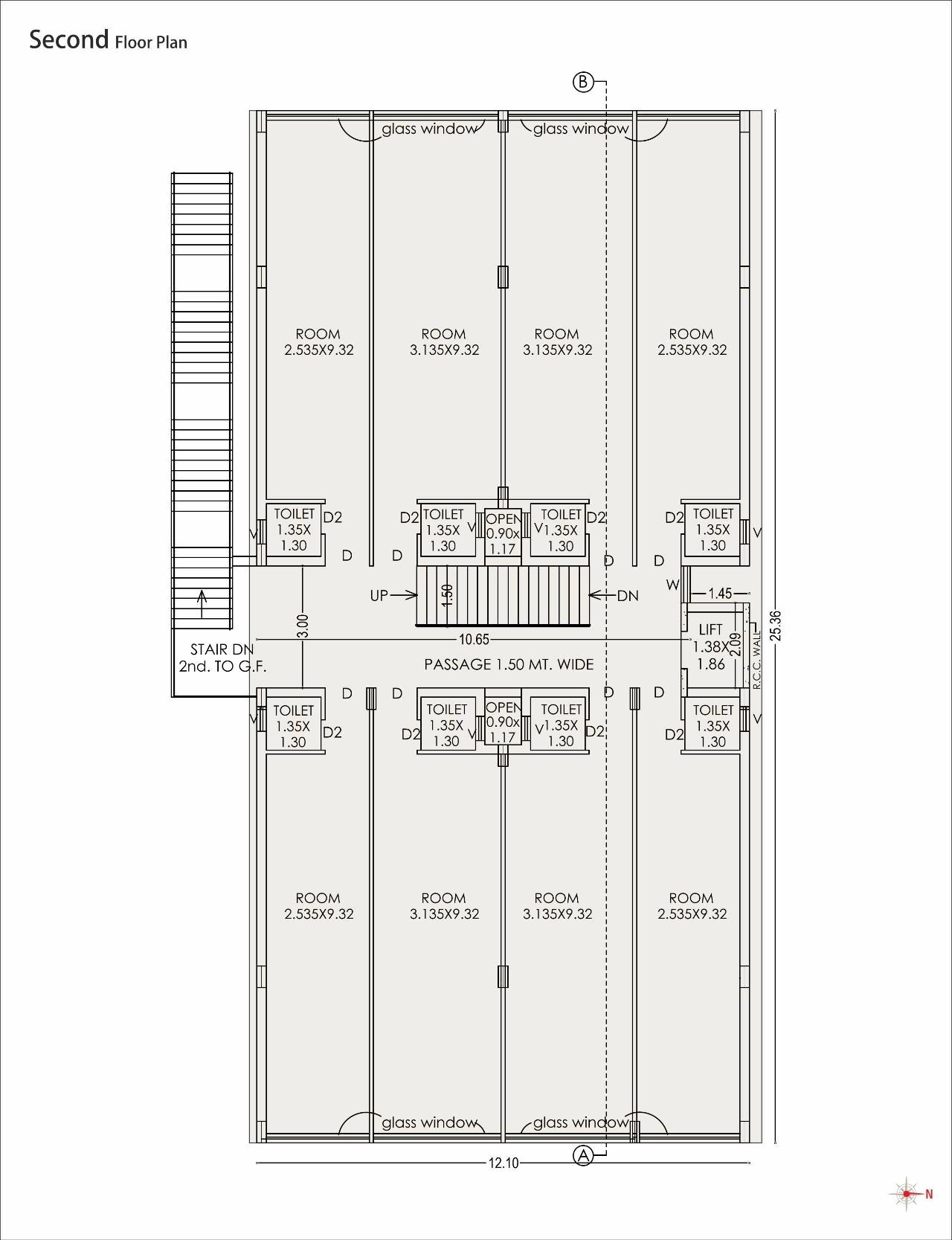
Project Layout

Project Layout

Layout Plan

Amenities of Corporate Avenue

* Actual amenities may vary with displayed information.

Lift

24x7 Security

E-Brochure

Current Construction Photos

Map Location of Corporate Avenue

Address

Address

Keyplan

Keyplan

Project Details

Address

Corporate Avenue

Jyotinagar Main Road, Near Crystal Mall, Rajkot

Contact

+91 9824490509

Email

chirag@dmlgroup.in

Share on
Promoters

Dml Infrastructure

Rera No

PR/GJ/RAJKOT/RAJKOT/Others/MAA01108/261217

Start Date

2015-12-11

End Date

2019-12-31

Area of Project

682

District

Rajkot

State

Gujarat

Project Type

Mixed Development

Architect

Brij Patel

Structure

MANISH V DOSHI

Disclaimer

The details displayed here are for informational purposes only. Information of real estate projects like details, floor area, location are taken from multiple sources on best effort basis. Nothing shall be deemed to constitute legal advice, marketing, offer, invitation, acquire by any entity. We advice you to visit the RERA website before taking any decision based on the contents displayed on this website.

Projects in nana-mava

Projects in Rajkot