Chronicle of City Shops

City Shops rera registered project is located at Rajkot, Rajkot. at Rajkot, Rajkot. City Shops project is being developed by Mundhva Sureshbhai Sindhabhai. Rera number of City Shops project is PR/GJ/RAJKOT/RAJKOT/Others/CAA07458/150920. As per rera registration City Shops project is started on date 2019-10-11 and planned to complete on or before date 2023-12-31.
Brochure of City Shops project is available for download.

Project Summery of City Shops

Social Media
Rera No

PR/GJ/RAJKOT/RAJKOT/Others/CAA07458/150920

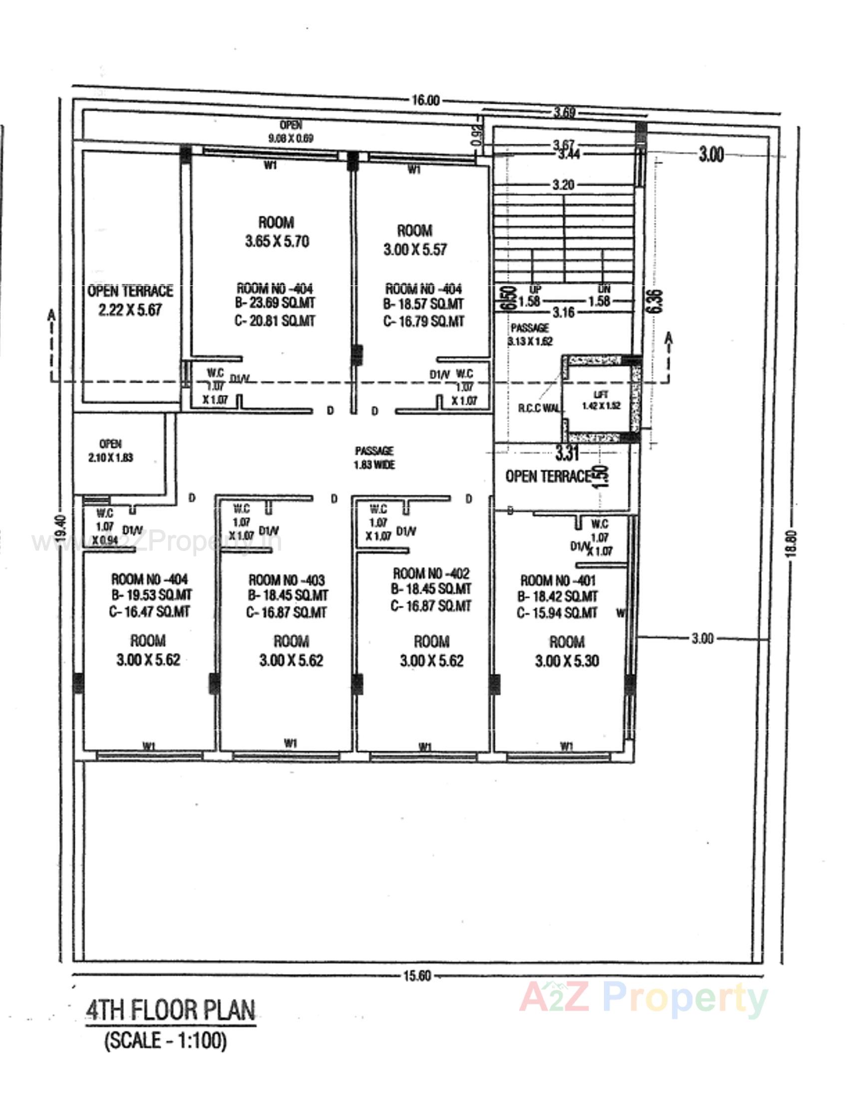
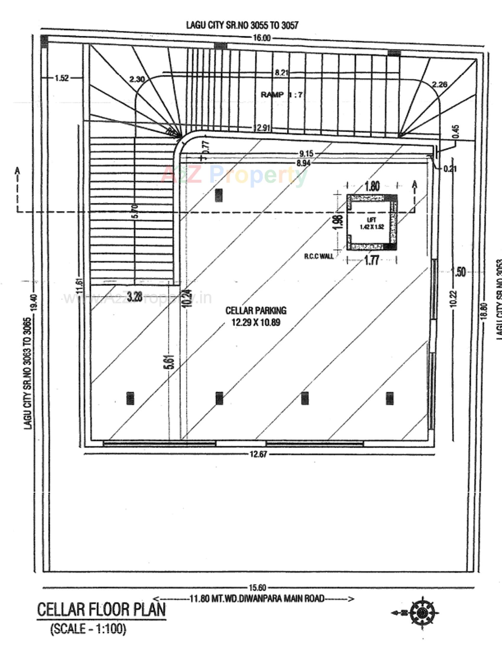
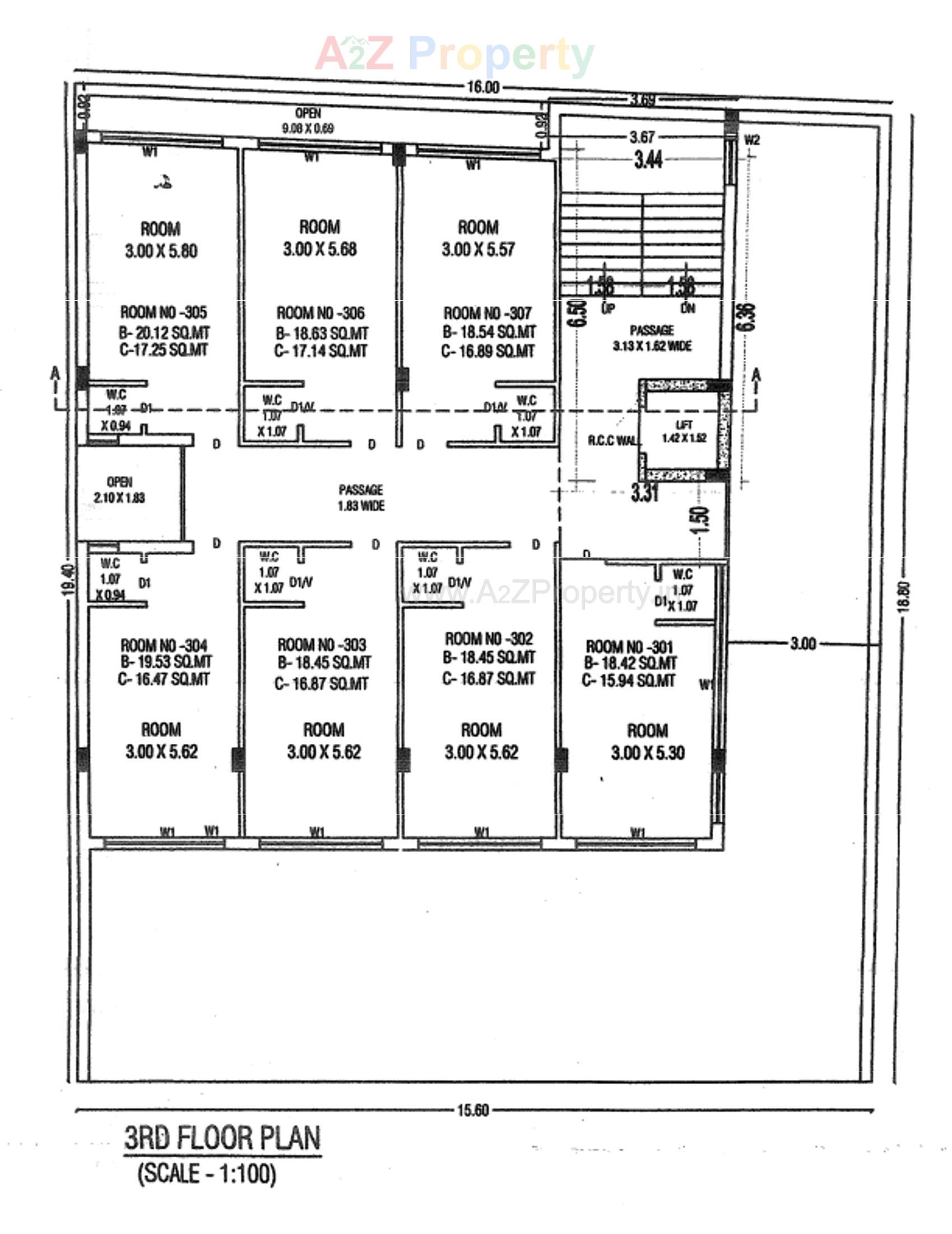
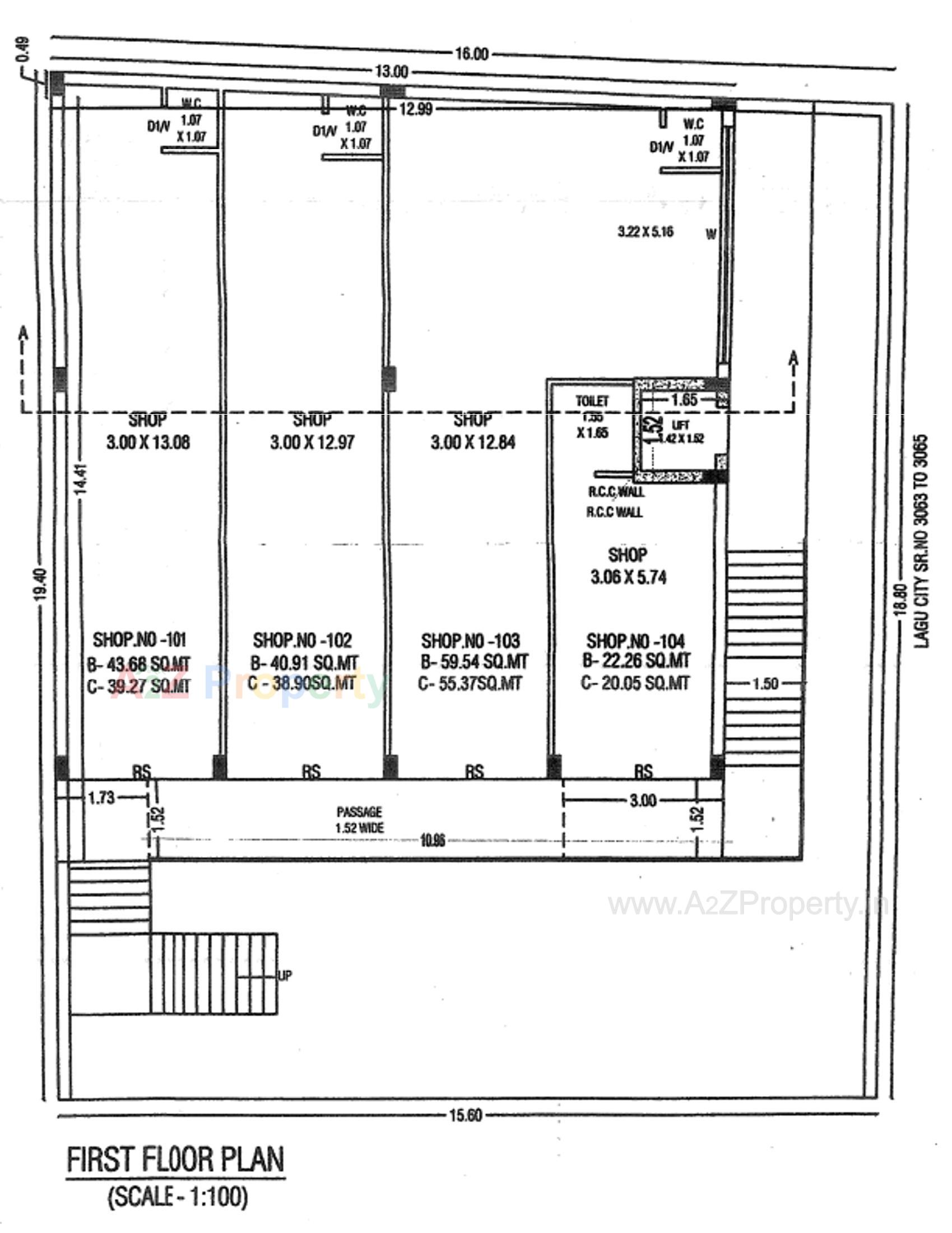
Unit Details of City Shops

Type Carpet Area (sqft)
1 215 - 1264

3D Elevation

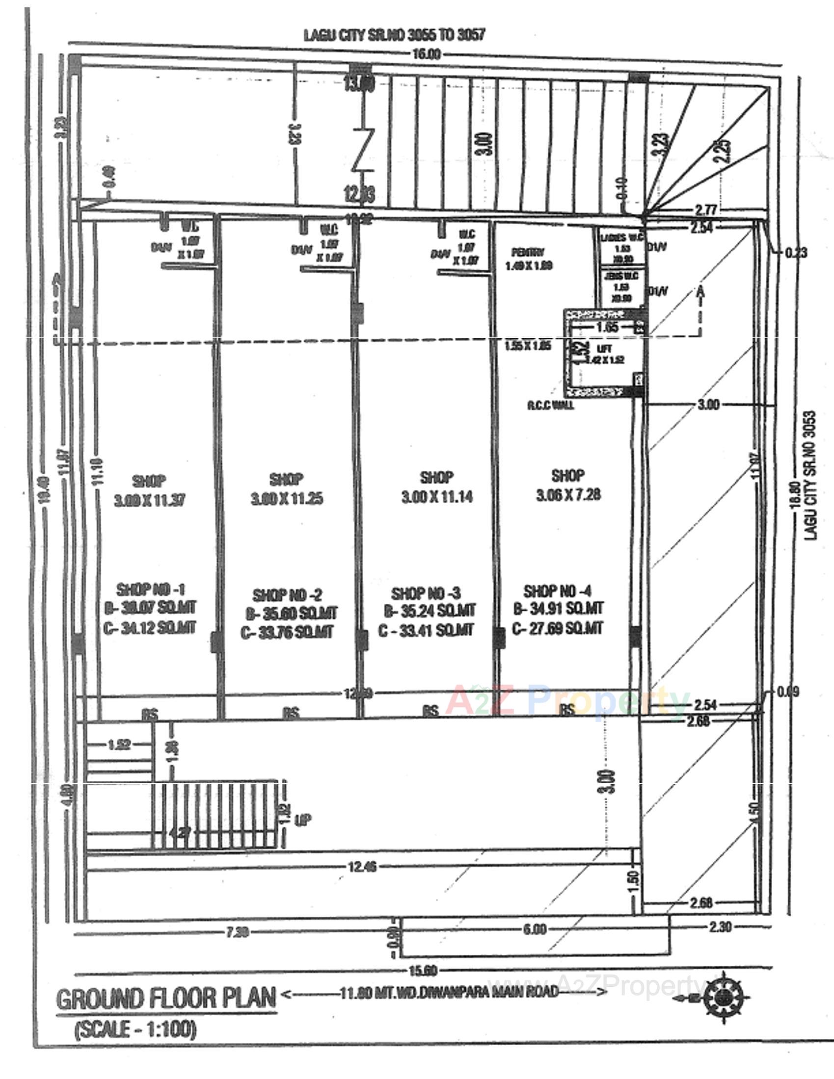
Layout Plan

E-Brochure

Project Details

Address

City Shops

Divanpara Main Road, Rajkot

Share on
Promoters

Mundhva Sureshbhai Sindhabhai

Rera No

PR/GJ/RAJKOT/RAJKOT/Others/CAA07458/150920

Start Date

2019-10-11

End Date

2023-12-31

Area of Project

305.26

District

Rajkot

State

Gujarat

Project Type

Commercial

Architect

PAYAL CHAVDA

Disclaimer

The details displayed here are for informational purposes only. Information of real estate projects like details, floor area, location are taken from multiple sources on best effort basis. Nothing shall be deemed to constitute legal advice, marketing, offer, invitation, acquire by any entity. We advice you to visit the RERA website before taking any decision based on the contents displayed on this website.

Projects in rajkot

Projects in Rajkot