Chronicle of Aurika Greens

Aurika Greens rera registered project is located at Raska, Kheda. at Raska, Kheda. Aurika Greens project is being developed by Aurika Greens Llp. Rera number of Aurika Greens project is PR/GJ/KHEDA/MEHMEDABAD/AUDA/RAA11332/030323. As per rera registration Aurika Greens project is started on date 2022-12-22 and planned to complete on or before date 2027-12-31.

Project Summery of Aurika Greens

Social Media
Contact

+91 9712203112

Rera No

PR/GJ/KHEDA/MEHMEDABAD/AUDA/RAA11332/030323

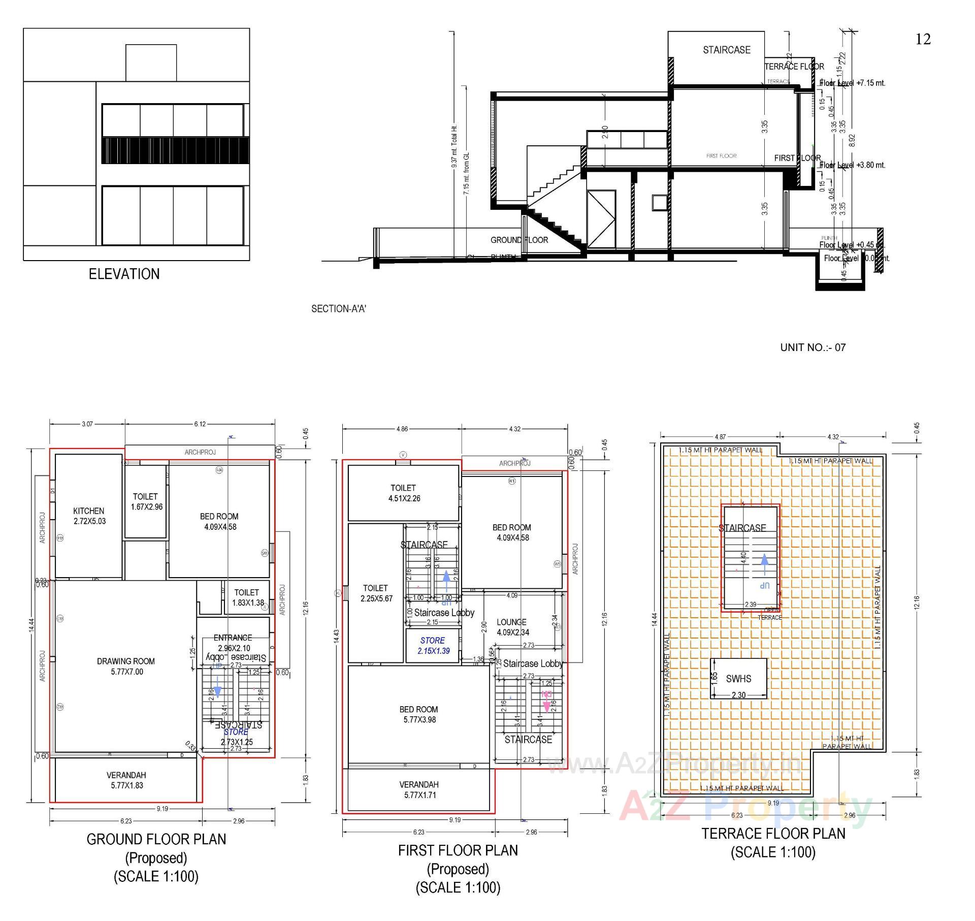
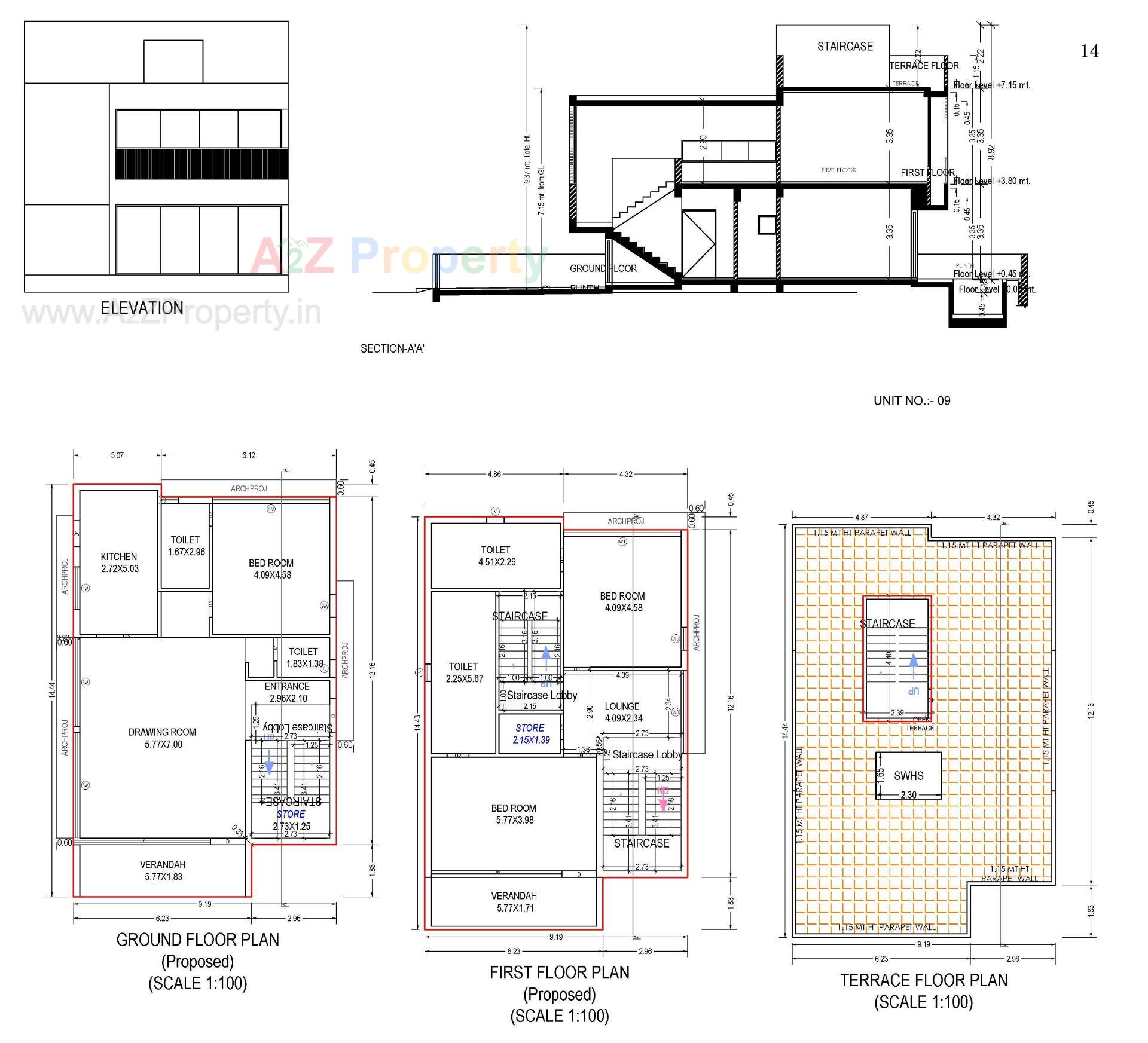
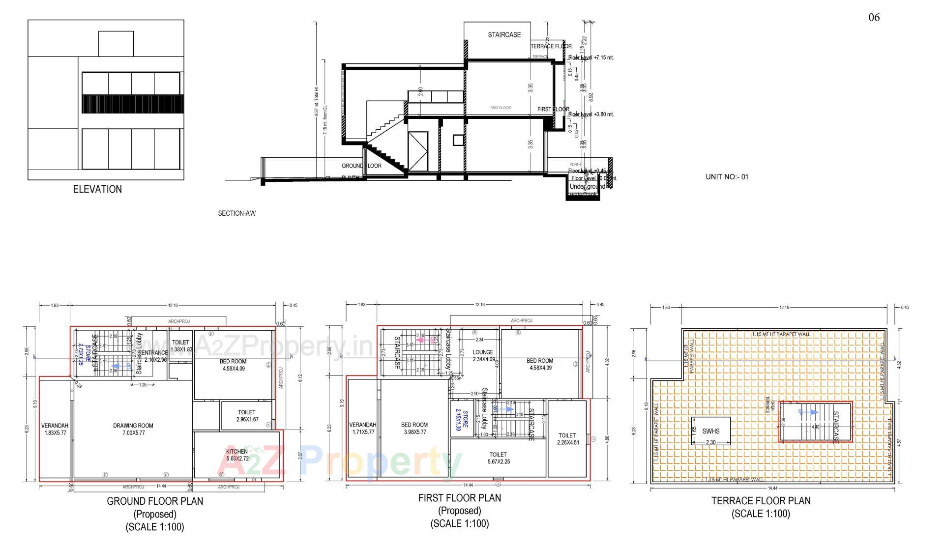
Unit Details of Aurika Greens

Type Carpet Area (sqft)
AURIKA GREENS 2072 - 2132

3D Elevation

Layout Plan

Keyplan

Keyplan

Project Details

Address

Aurika Greens

Surve No-287, 311 At Raska Village, Near Radhe Upvan Club, Ahmedabad

Contact

+91 9712203112

Email

aurikagreenrera@gmail.com

Share on
Promoters

Aurika Greens Llp

Rera No

PR/GJ/KHEDA/MEHMEDABAD/AUDA/RAA11332/030323

Start Date

2022-12-22

End Date

2027-12-31

Area of Project

7,598

District

Kheda

State

Gujarat

Project Type

Residential/Group Housing

Architect

APURVA AMIN

Structure

CHINTAN HIMANSHU MEHTA

Disclaimer

The details displayed here are for informational purposes only. Information of real estate projects like details, floor area, location are taken from multiple sources on best effort basis. Nothing shall be deemed to constitute legal advice, marketing, offer, invitation, acquire by any entity. We advice you to visit the RERA website before taking any decision based on the contents displayed on this website.

Projects in raska

Projects in Kheda