Chronicle of Applewood Icon

Applewood Icon rera registered project is located at Junagadh, Junagadh. at Junagadh, Junagadh. Applewood Icon project is being developed by Divya Infinity. Rera number of Applewood Icon project is PR/GJ/JUNAGADH/JUNAGADH/Others/CAA10003/040422. As per rera registration Applewood Icon project is started on date 2022-02-07 and planned to complete on or before date 2025-01-31.
Brochure of Applewood Icon project is available for download.

Project Summery of Applewood Icon

Social Media
Rera No

PR/GJ/JUNAGADH/JUNAGADH/Others/CAA10003/040422

Unit Details of Applewood Icon

Type Carpet Area (sqft)
APPLEWOOD ICON

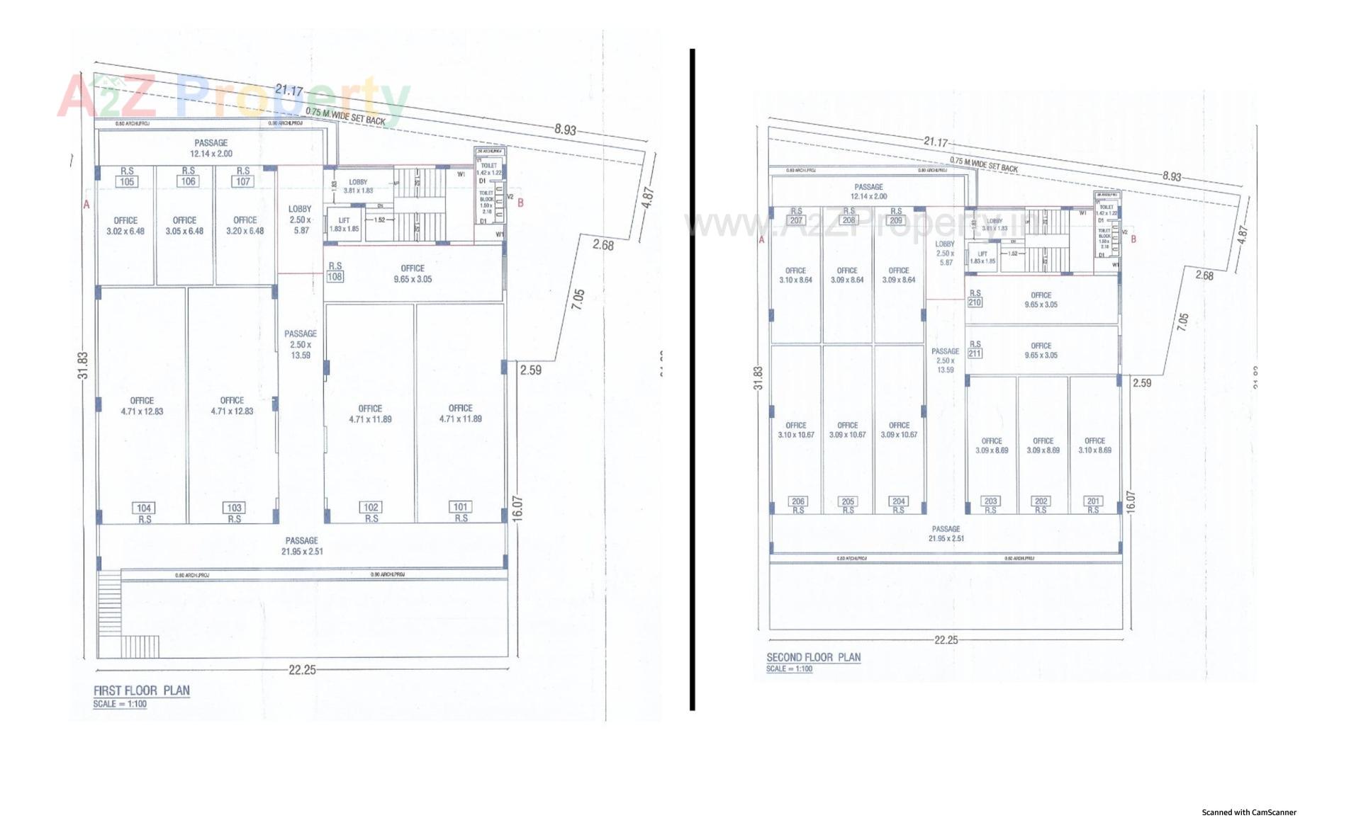
Layout Plan

E-Brochure

Keyplan

Keyplan

Project Details

Address

Applewood Icon

Near Indralok Arcade, Talav Gate

Email

rera50.applewoodicon@gmail.com

Share on
Promoters

Divya Infinity

Rera No

PR/GJ/JUNAGADH/JUNAGADH/Others/CAA10003/040422

Start Date

2022-02-07

End Date

2025-01-31

Area of Project

736.72

District

Junagadh

State

Gujarat

Project Type

Commercial

Architect

NILESH G RAKHASIA

Structure

VIREN D PAREKH

Disclaimer

The details displayed here are for informational purposes only. Information of real estate projects like details, floor area, location are taken from multiple sources on best effort basis. Nothing shall be deemed to constitute legal advice, marketing, offer, invitation, acquire by any entity. We advice you to visit the RERA website before taking any decision based on the contents displayed on this website.

Projects in Junagadh

Projects in Junagadh