Chronicle of Alpha One

Alpha One rera registered project is located at Dolatpara, Junagadh. at Dolatpara, Junagadh. Alpha One project is being developed by Alpha Developers. Rera number of Alpha One project is PR/GJ/JUNAGADH/JUNAGADH/Others/CAA11831/230523. As per rera registration Alpha One project is started on date 2021-09-29 and planned to complete on or before date 2026-12-31.
Brochure of Alpha One project is available for download.

Project Summery of Alpha One

Social Media
Rera No

PR/GJ/JUNAGADH/JUNAGADH/Others/CAA11831/230523

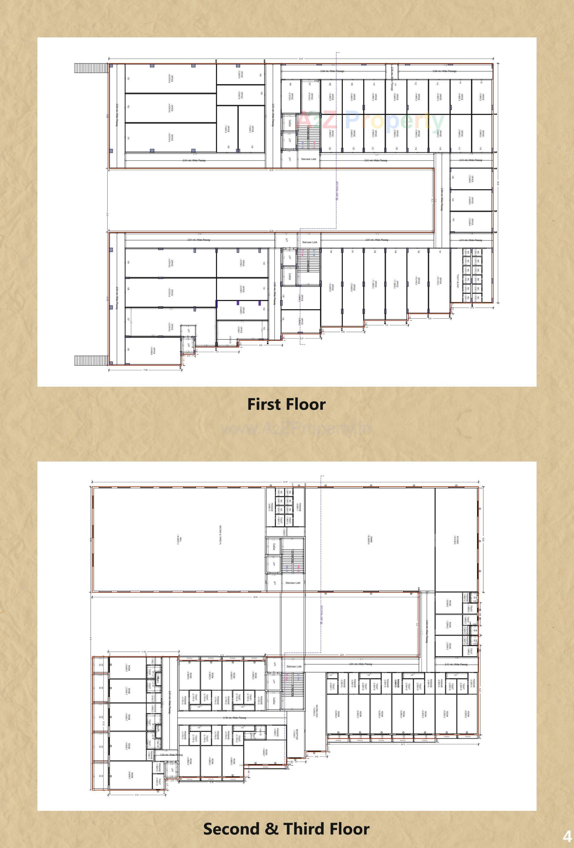
Unit Details of Alpha One

Type Carpet Area (sqft)
PLOT NO 1B 2 (DOLATPARA)

Layout Plan

E-Brochure

Map Location of Alpha One

Keyplan

Keyplan

Project Details

Address

Alpha One

Junagadh - Rajkot Highway, Dolatpara,

Email

alphaone3008@gmail.com

Share on
Promoters

Alpha Developers

Rera No

PR/GJ/JUNAGADH/JUNAGADH/Others/CAA11831/230523

Start Date

2021-09-29

End Date

2026-12-31

Area of Project

10,014.49

District

Junagadh

State

Gujarat

Project Type

Commercial

Architect

NILESH G. RAKHASIA

Structure

JIGNESH BHIMAJIYANI

Disclaimer

The details displayed here are for informational purposes only. Information of real estate projects like details, floor area, location are taken from multiple sources on best effort basis. Nothing shall be deemed to constitute legal advice, marketing, offer, invitation, acquire by any entity. We advice you to visit the RERA website before taking any decision based on the contents displayed on this website.

Projects in dolatpara

Projects in Junagadh