Chronicle of Shivam Complex

Shivam Complex rera registered project is located at  , Jamnagar. at  , Jamnagar. Shivam Complex project is being developed by Aum Developers. Rera number of Shivam Complex project is PR/GJ/JAMNAGAR/JAMNAGAR/Others/CAA11264/010323. As per rera registration Shivam Complex project is started on date 2021-12-06 and planned to complete on or before date 2026-12-06.
Brochure of Shivam Complex project is available for download.

Project Summery of Shivam Complex

Social Media
Rera No

PR/GJ/JAMNAGAR/JAMNAGAR/Others/CAA11264/010323

Unit Details of Shivam Complex

Type Carpet Area (sqft)
BLOCK 1 85 - 491

3D Elevation

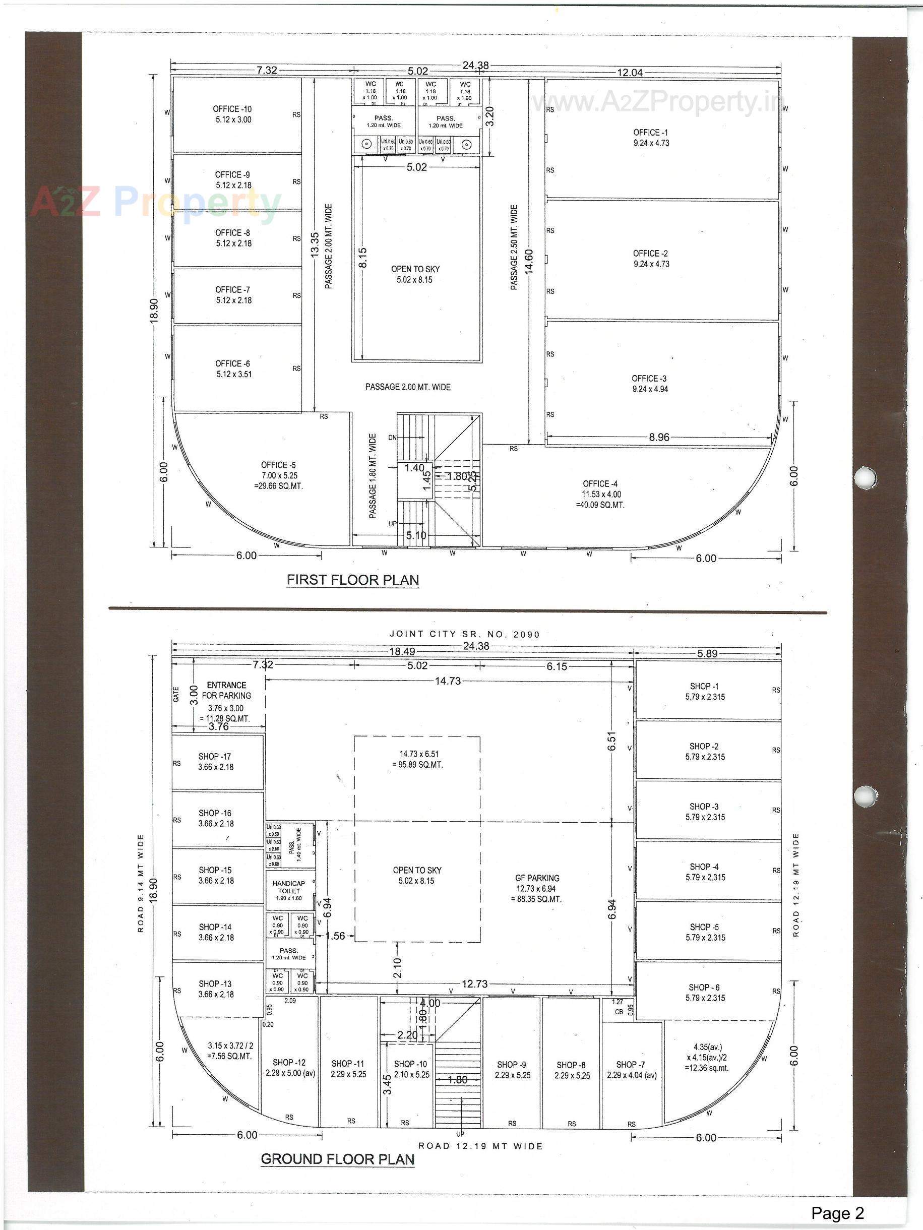
Layout Plan

E-Brochure

Project Details

Address

Shivam Complex

Ward No-11, New C.s.no-2091, Vegetable Market, Gulabnagar, Jamnagar

Email

aumdevelopers.jam@gmail.com

Share on
Promoters

Aum Developers

Rera No

PR/GJ/JAMNAGAR/JAMNAGAR/Others/CAA11264/010323

Start Date

2021-12-06

End Date

2026-12-06

Area of Project

445.3

District

Jamnagar

State

Gujarat

Project Type

Commercial

Architect

CHETAN PANCHOLI

Structure

AMARNATH KANAN

Disclaimer

The details displayed here are for informational purposes only. Information of real estate projects like details, floor area, location are taken from multiple sources on best effort basis. Nothing shall be deemed to constitute legal advice, marketing, offer, invitation, acquire by any entity. We advice you to visit the RERA website before taking any decision based on the contents displayed on this website.

Projects in  

Projects in Jamnagar