Chronicle of Shaligram

Shaligram rera registered project is located at Jamnagar, Jamnagar. at Jamnagar, Jamnagar. Shaligram project is being developed by Bathani Enterprise. Rera number of Shaligram project is PR/GJ/JAMNAGAR/JAMNAGAR/Others/RAA10463/180722. As per rera registration Shaligram project is started on date 2021-04-22 and planned to complete on or before date 2027-04-30.
Brochure of Shaligram project is available for download.

Project Summery of Shaligram

Social Media
Rera No

PR/GJ/JAMNAGAR/JAMNAGAR/Others/RAA10463/180722

Unit Details of Shaligram

Type Carpet Area (sqft)
WING A 2098 - 2098
WING B 1059 - 1084

3D Elevation

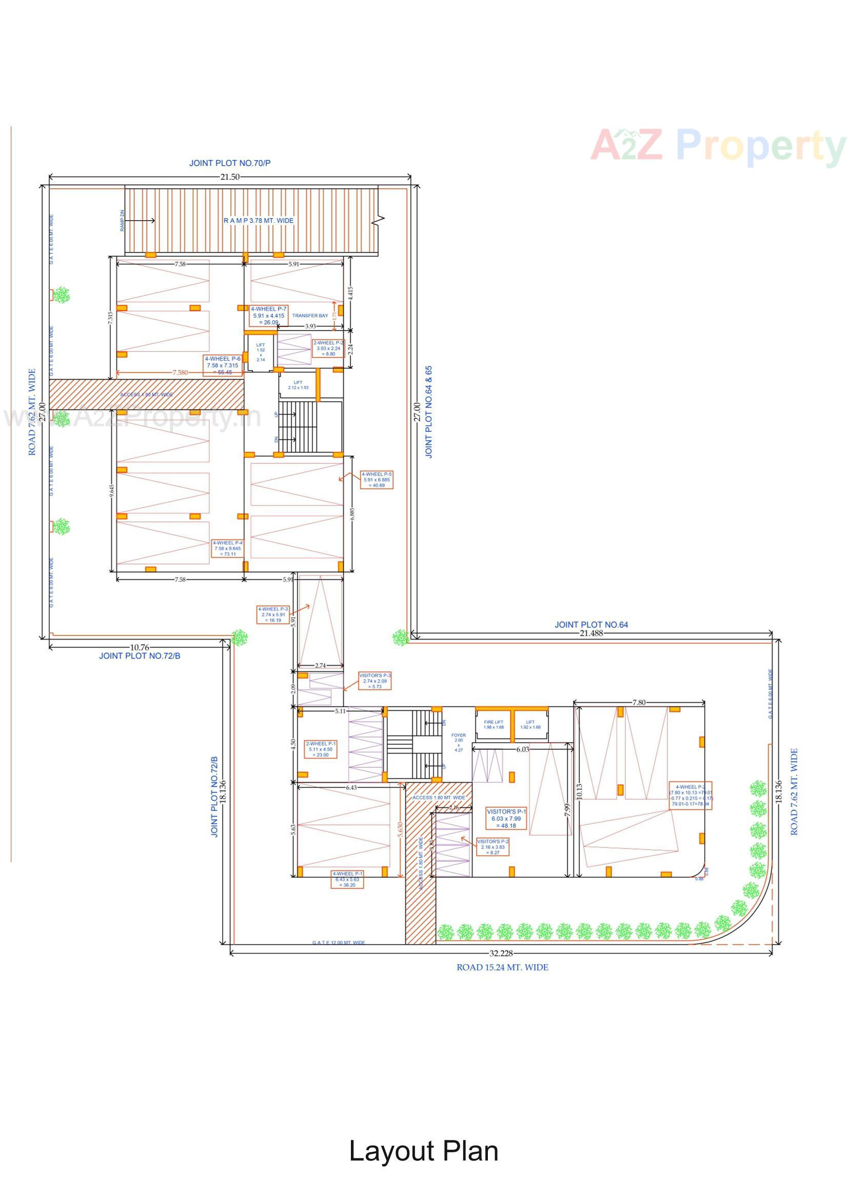
Layout Plan

E-Brochure

Map Location of Shaligram

Keyplan

Keyplan

Project Details

Address

Shaligram

Plot No-63, Jayant Society.b/h G.g Hospital, Nr.pankaj Society, Jamnagar

Email

bathanienterprise@gmail.com

Share on
Promoters

Bathani Enterprise

Rera No

PR/GJ/JAMNAGAR/JAMNAGAR/Others/RAA10463/180722

Start Date

2021-04-22

End Date

2027-04-30

Area of Project

1,157.26

District

Jamnagar

State

Gujarat

Project Type

Residential/Group Housing

Architect

CHETAN PANCHOLI

Structure

AMIT ARVADIYA

Disclaimer

The details displayed here are for informational purposes only. Information of real estate projects like details, floor area, location are taken from multiple sources on best effort basis. Nothing shall be deemed to constitute legal advice, marketing, offer, invitation, acquire by any entity. We advice you to visit the RERA website before taking any decision based on the contents displayed on this website.

Projects in Jamnagar

Projects in Jamnagar