Chronicle of Madhusudan Complex

Madhusudan Complex rera registered project is located at Mohan-nagar, Jamnagar. at Mohan-nagar, Jamnagar. Madhusudan Complex project is being developed by Madhusudan Developers. Rera number of Madhusudan Complex project is PR/GJ/JAMNAGAR/JAMNAGAR/Others/CAA09830/190222. As per rera registration Madhusudan Complex project is started on date 2020-09-21 and planned to complete on or before date 2025-09-21.
Brochure of Madhusudan Complex project is available for download.

Project Summery of Madhusudan Complex

Social Media
Rera No

PR/GJ/JAMNAGAR/JAMNAGAR/Others/CAA09830/190222

Unit Details of Madhusudan Complex

Type Carpet Area (sqft)
BLOCK 1 170 - 1930

3D Elevation

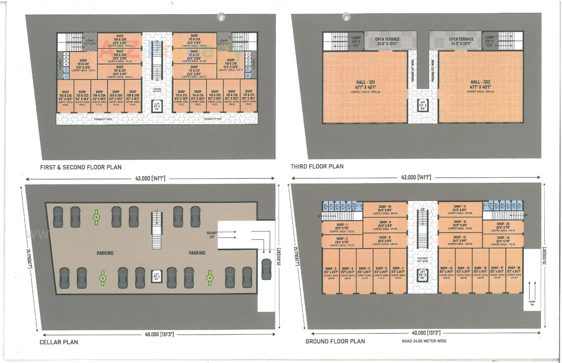
Layout Plan

E-Brochure

Map Location of Madhusudan Complex

Keyplan

Keyplan

Project Details

Address

Madhusudan Complex

Radar Road, Besides Gokulnagar Jakatnaka

Email

madhusudandevelopers123@gmail.com

Share on
Promoters

Madhusudan Developers

Rera No

PR/GJ/JAMNAGAR/JAMNAGAR/Others/CAA09830/190222

Start Date

2020-09-21

End Date

2025-09-21

Area of Project

1,037.5

District

Jamnagar

State

Gujarat

Project Type

Commercial

Architect

CHETAN PANCHOLI

Structure

KALPESH B HADIYEL

Disclaimer

The details displayed here are for informational purposes only. Information of real estate projects like details, floor area, location are taken from multiple sources on best effort basis. Nothing shall be deemed to constitute legal advice, marketing, offer, invitation, acquire by any entity. We advice you to visit the RERA website before taking any decision based on the contents displayed on this website.

Projects in mohan-nagar

Projects in Jamnagar