Chronicle of The Luxuria

The Luxuria rera registered project is located at Randheja, Gandhinagar. at Randheja, Gandhinagar. The Luxuria project is being developed by . Rera number of The Luxuria project is PR/GJ/GANDHINAGAR/GANDHINAGAR/Others/RAA13123/140324/311229. As per rera registration The Luxuria project is started on date 2023-07-25 and planned to complete on or before date 2028-12-31.
Brochure of The Luxuria project is available for download.

Project Summery of The Luxuria

Social Media
Contact

+91 9924214800

Rera No

PR/GJ/GANDHINAGAR/GANDHINAGAR/Others/RAA13123/140324/311229

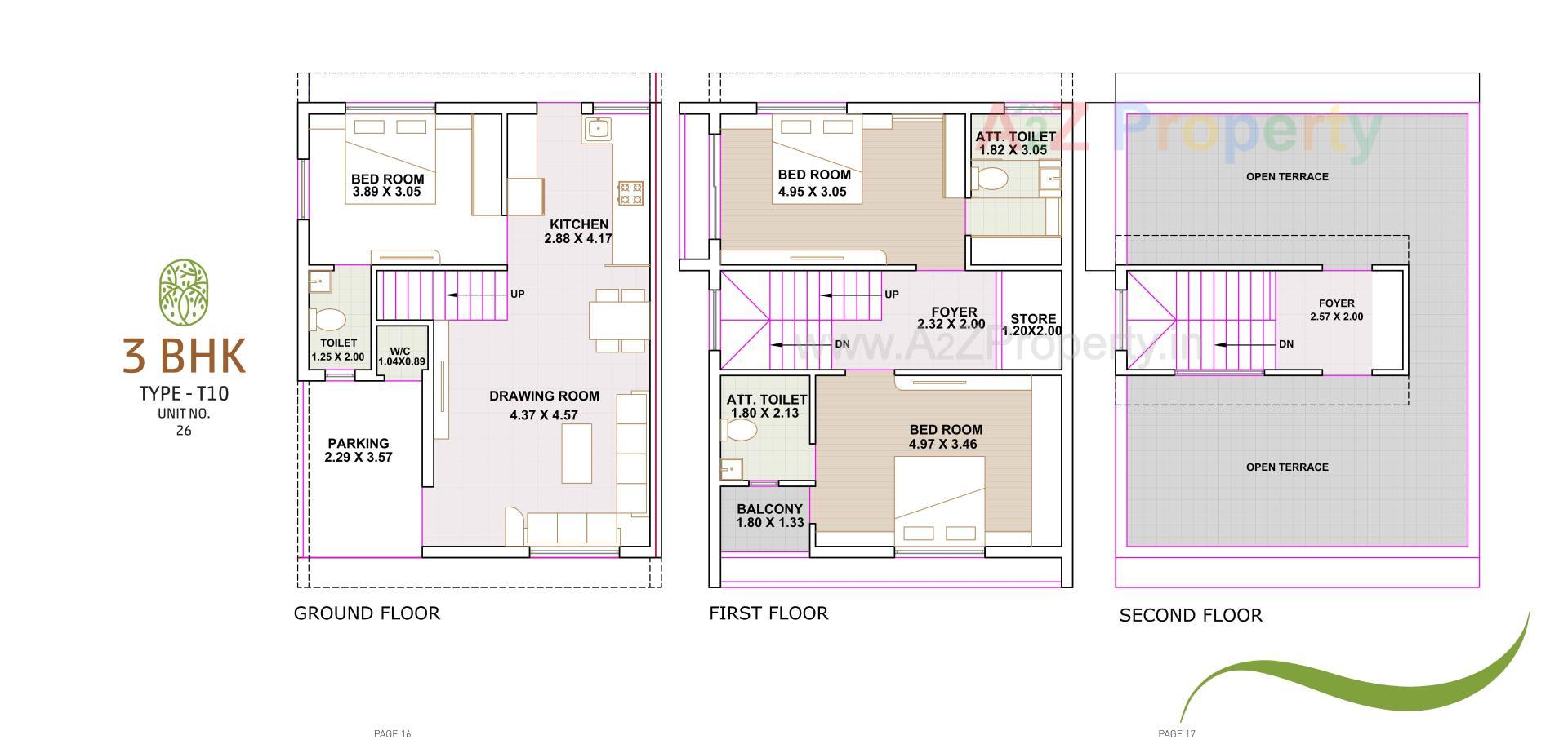
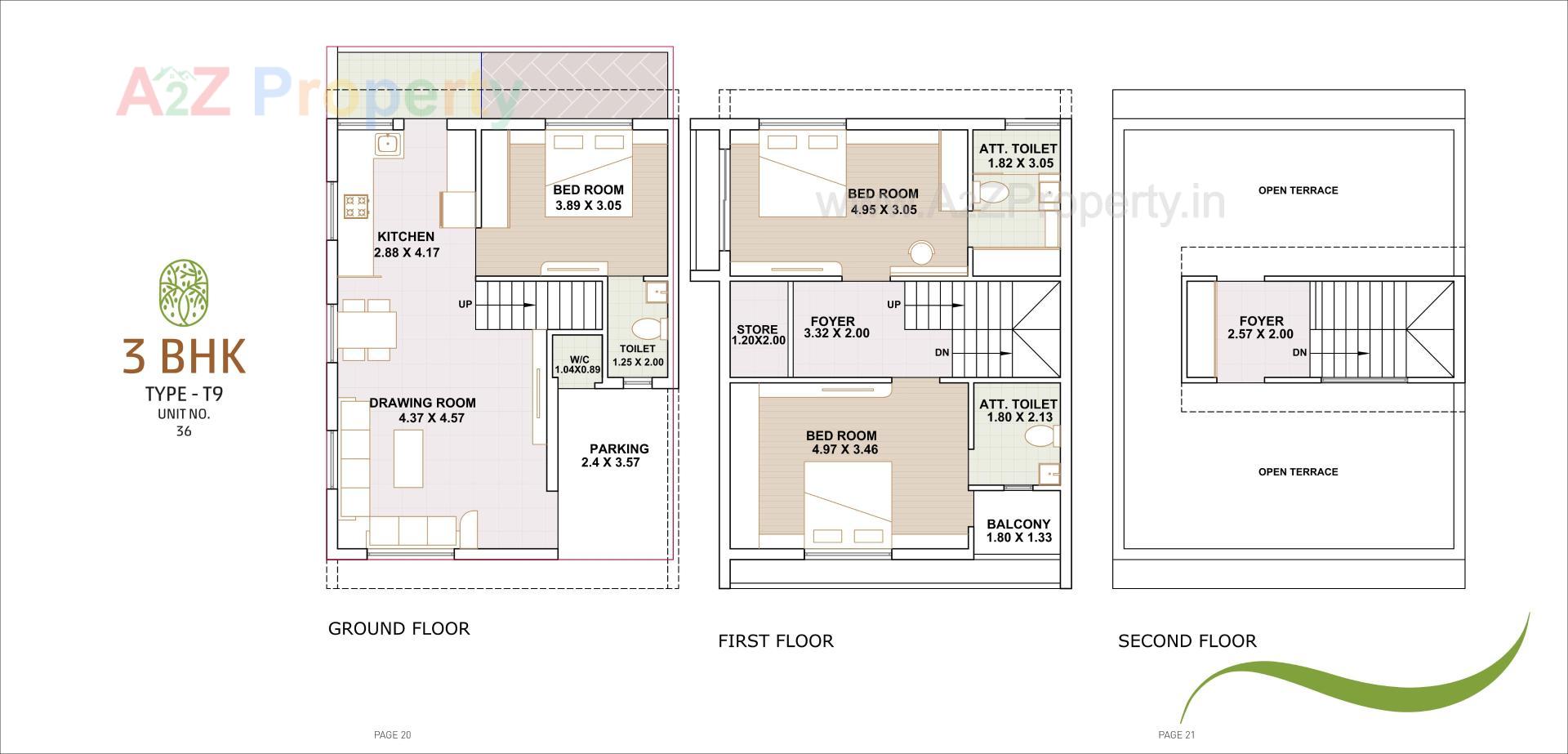
Unit Details of The Luxuria

Type Carpet Area (sqft)
TENAMENT NO 1 TO 61

3D Elevation

Layout Plan

E-Brochure

Map Location of The Luxuria

Project Details

Address

The Luxuria

Final Plot No.: 12, Of Survey No.: 489+490+491, O.p. No.: 489, 490, 491 Of Survey No.: 2638, 2639, 2640,

Contact

+91 9924214800

Email

theluxuria2023@gmail.com

Share on
Promoters

Rera No

PR/GJ/GANDHINAGAR/GANDHINAGAR/Others/RAA13123/140324/311229

Start Date

2023-07-25

End Date

2028-12-31

Area of Project

8,921

District

Gandhinagar

State

Gujarat

Project Type

Residential/Group Housing

Architect

HEMANTKUMAR M. MEHTA

Structure

RAJAN PATEL

Disclaimer

The details displayed here are for informational purposes only. Information of real estate projects like details, floor area, location are taken from multiple sources on best effort basis. Nothing shall be deemed to constitute legal advice, marketing, offer, invitation, acquire by any entity. We advice you to visit the RERA website before taking any decision based on the contents displayed on this website.

Projects in RANDHEJA

Projects in Gandhinagar