Chronicle of Shagun

Shagun rera registered project is located at Raysan, Gandhinagar. at Raysan, Gandhinagar. Shagun project is being developed by Riddhi Siddhi Developers. Rera number of Shagun project is PR/GJ/GANDHINAGAR/GANDHINAGAR/Others/RAA05191/020419. As per rera registration Shagun project is started on date 2019-01-21 and planned to complete on or before date 2024-06-30.
Shagun project is providing amenities like Water/Heat Proofing. Brochure of Shagun project is available for download.

Project Summery of Shagun

Social Media
Rera No

PR/GJ/GANDHINAGAR/GANDHINAGAR/Others/RAA05191/020419

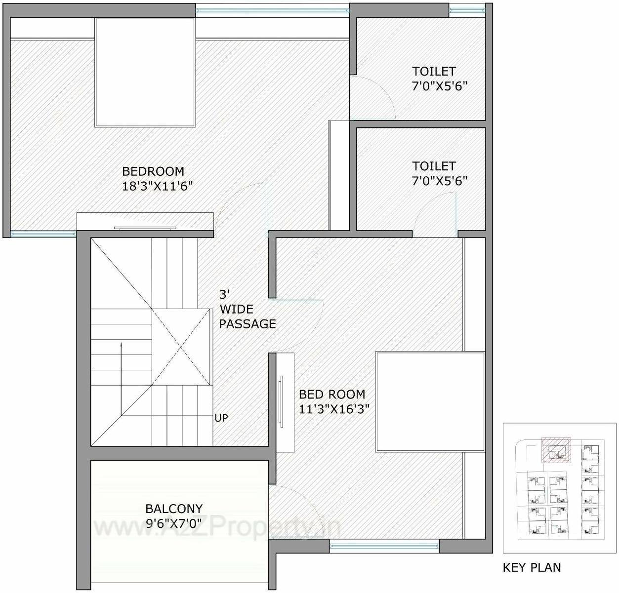
Unit Details of Shagun

Type Carpet Area (sqft)
A 1533 - 1533
C 1501 - 1597
B 1440 - 1628

Layout Plan

Amenities of Shagun

* Actual amenities may vary with displayed information.

Water/Heat Proofing

E-Brochure

Current Construction Photos

Map Location of Shagun

Keyplan

Keyplan

Project Specifications

Project Specifications

Project Details

Address

Shagun

T.p. 19, Fp.no.219, Raysan

Email

riddhisiddhid222@gmail.com

Share on
Promoters

Riddhi Siddhi Developers

Rera No

PR/GJ/GANDHINAGAR/GANDHINAGAR/Others/RAA05191/020419

Start Date

2019-01-21

End Date

2024-06-30

Area of Project

2,434

District

Gandhinagar

State

Gujarat

Project Type

Residential/Group Housing

Architect

MR Arpit Shah

Structure

Mr.Deepak Chothani

Disclaimer

The details displayed here are for informational purposes only. Information of real estate projects like details, floor area, location are taken from multiple sources on best effort basis. Nothing shall be deemed to constitute legal advice, marketing, offer, invitation, acquire by any entity. We advice you to visit the RERA website before taking any decision based on the contents displayed on this website.

Projects in raysan

Projects in Gandhinagar