Chronicle of Aurika One

Aurika One rera registered project is located at Khoraj, Gandhinagar. at Khoraj, Gandhinagar. Aurika One project is being developed by Affinity Infrastructure. Rera number of Aurika One project is PR/GJ/GANDHINAGAR/GANDHINAGAR/Others/MAA11361/040323. As per rera registration Aurika One project is started on date 2022-10-15 and planned to complete on or before date 2025-12-31.
Brochure of Aurika One project is available for download.

Project Summery of Aurika One

Social Media
Contact

+91 7016954749

Rera No

PR/GJ/GANDHINAGAR/GANDHINAGAR/Others/MAA11361/040323

Unit Details of Aurika One

Type Carpet Area (sqft)
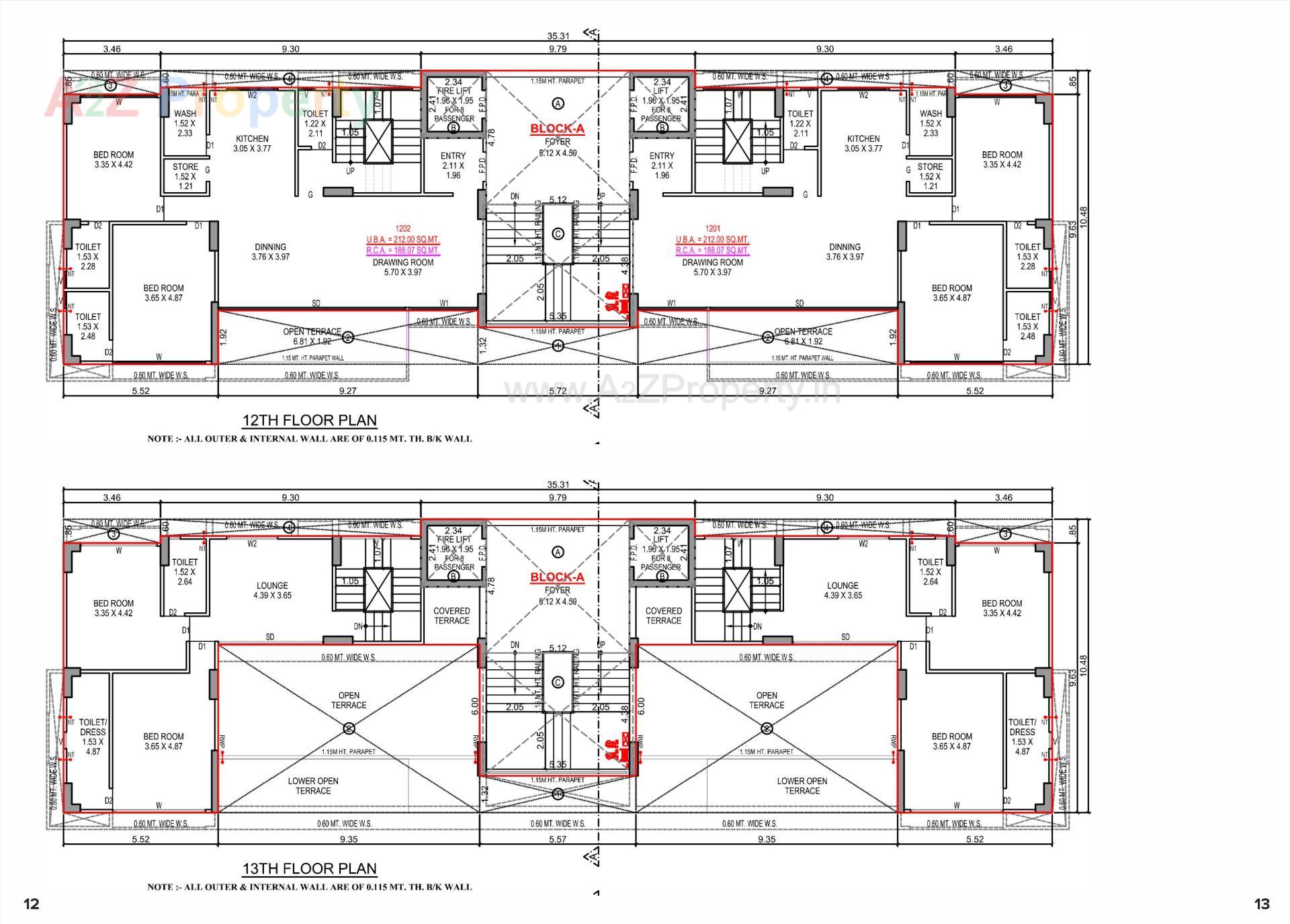
Block A
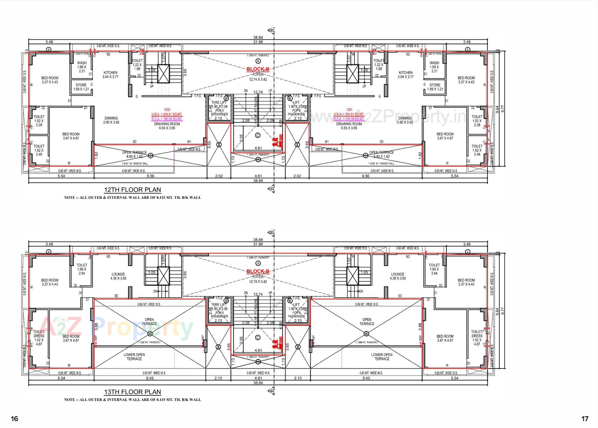
Block B
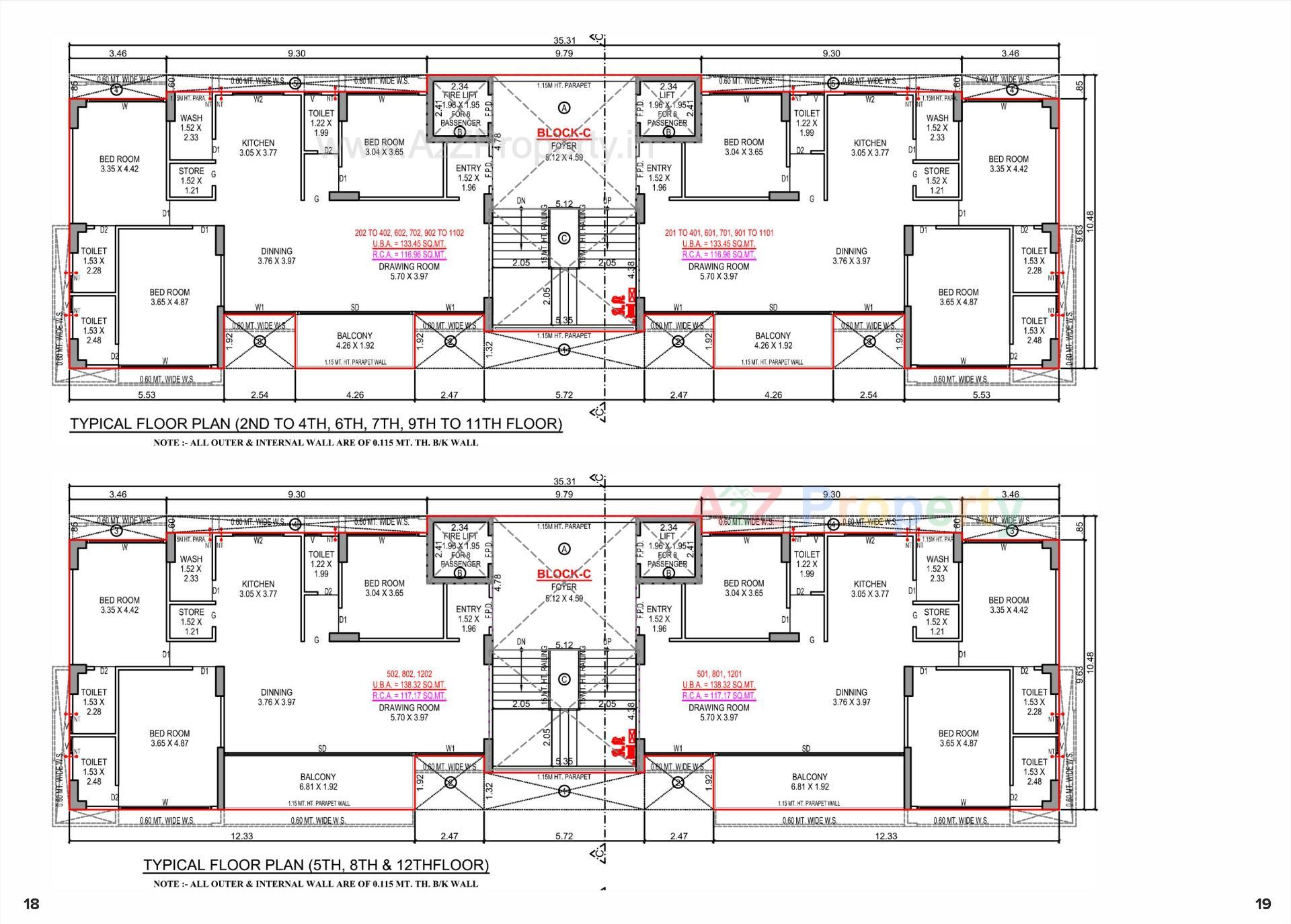
Block C

3D Elevation

Layout Plan

E-Brochure

Map Location of Aurika One

Project Details

Address

Aurika One

Opposite Diwali Blessing Behind Vaishnodevi Templesurvey Number-457/1tp-63, Khoraj, Adalaj

Contact

+91 7016954749

Email

pratik67in@yahoo.com

Share on
Promoters

Affinity Infrastructure

Rera No

PR/GJ/GANDHINAGAR/GANDHINAGAR/Others/MAA11361/040323

Start Date

2022-10-15

End Date

2025-12-31

Area of Project

4,067

District

Gandhinagar

State

Gujarat

Project Type

Mixed Development

Architect

ANISH RATHI

Structure

MANMIT PATEL

Disclaimer

The details displayed here are for informational purposes only. Information of real estate projects like details, floor area, location are taken from multiple sources on best effort basis. Nothing shall be deemed to constitute legal advice, marketing, offer, invitation, acquire by any entity. We advice you to visit the RERA website before taking any decision based on the contents displayed on this website.

Projects in khoraj

Projects in Gandhinagar