Chronicle of Laksh Neelakash

Laksh Neelakash rera registered project is located at Karamsad, Anand. at Karamsad, Anand. Laksh Neelakash project is being developed by . Rera number of Laksh Neelakash project is PR/GJ/ANAND/ANAND/Others/RAA12668/161123. As per rera registration Laksh Neelakash project is started on date 2023-07-01 and planned to complete on or before date 2029-12-31.

Project Summery of Laksh Neelakash

Social Media
Contact

+91 9727794855

Rera No

PR/GJ/ANAND/ANAND/Others/RAA12668/161123

Unit Details of Laksh Neelakash

Type Carpet Area (sqft)
A
A1
A2
A3
A4
A5
A6
A7
B
B1
B2
B3
C
C1

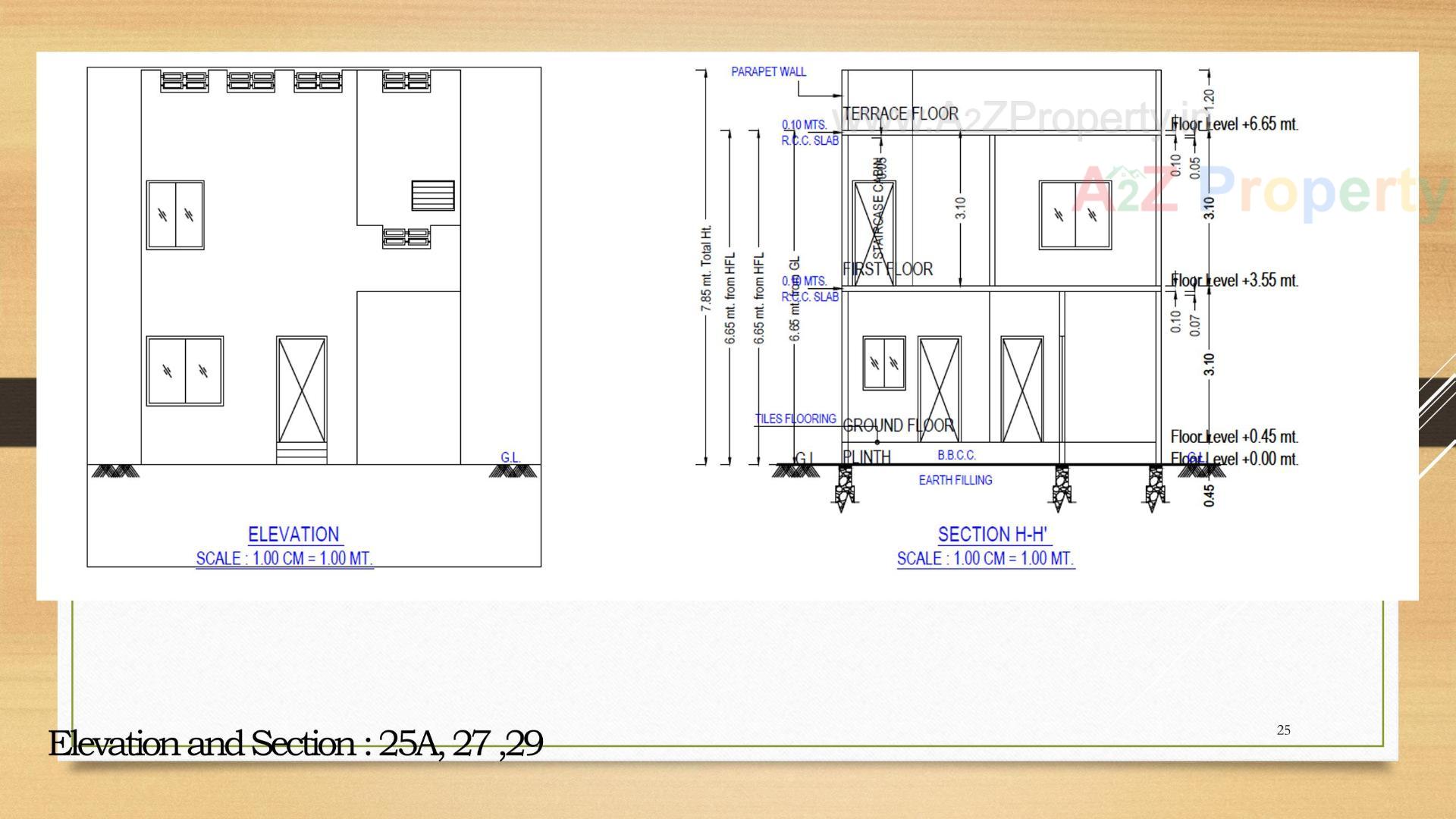
Layout Plan

Map Location of Laksh Neelakash

Project Details

Address

Laksh Neelakash

Karamsad Gana Road

Contact

+91 9727794855

Email

anantabuildcon001@gmail.com

Share on
Promoters

Rera No

PR/GJ/ANAND/ANAND/Others/RAA12668/161123

Start Date

2023-07-01

End Date

2029-12-31

Area of Project

18,277.74

District

Anand

State

Gujarat

Project Type

Residential/Group Housing

Architect

MR ROHAN PRAFULKUMAR DESAI

Structure

MITESH DAVE

Disclaimer

The details displayed here are for informational purposes only. Information of real estate projects like details, floor area, location are taken from multiple sources on best effort basis. Nothing shall be deemed to constitute legal advice, marketing, offer, invitation, acquire by any entity. We advice you to visit the RERA website before taking any decision based on the contents displayed on this website.

Projects in karamsad

Projects in Anand