Chronicle of Shivam Elite

Shivam Elite rera registered project is located at Rajpur-hirpur, Ahmedabad. at Rajpur-hirpur, Ahmedabad. Shivam Elite project is being developed by . Rera number of Shivam Elite project is PR/GJ/AHMEDABAD/AHMEDABAD CITY/AUDA/RAA11942/120623. As per rera registration Shivam Elite project is started on date 2023-04-03 and planned to complete on or before date 2026-12-31.
Brochure of Shivam Elite project is available for download.

Project Summery of Shivam Elite

Social Media
Contact

+91 9426769843

Rera No

PR/GJ/AHMEDABAD/AHMEDABAD CITY/AUDA/RAA11942/120623

Unit Details of Shivam Elite

Type Carpet Area (sqft)
SHIVAM ELITE

3D Elevation

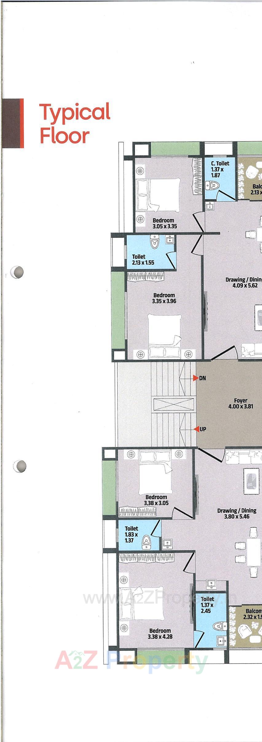
Layout Plan

E-Brochure

Map Location of Shivam Elite

Keyplan

Keyplan

Project Details

Address

Shivam Elite

26 Vasant Nagar Society, Nr. Amul Parlor,

Contact

+91 9426769843

Email

shubhinfra23@gmail.com

Share on
Promoters

Rera No

PR/GJ/AHMEDABAD/AHMEDABAD CITY/AUDA/RAA11942/120623

Start Date

2023-04-03

End Date

2026-12-31

Area of Project

561.79

District

Ahmedabad

State

Gujarat

Project Type

Residential/Group Housing

Architect

VIKAS ABHAYKUMAR SHAH

Structure

TUSHAR S SOLANKI

Disclaimer

The details displayed here are for informational purposes only. Information of real estate projects like details, floor area, location are taken from multiple sources on best effort basis. Nothing shall be deemed to constitute legal advice, marketing, offer, invitation, acquire by any entity. We advice you to visit the RERA website before taking any decision based on the contents displayed on this website.

Projects in rajpur-hirpur

Projects in Ahmedabad