Chronicle of Sakina Orchid

Sakina Orchid rera registered project is located at Makarba, Ahmedabad. at Makarba, Ahmedabad. Sakina Orchid project is being developed by . Rera number of Sakina Orchid project is PR/GJ/AHMEDABAD/AHMEDABAD CITY/AUDA/RAA12105/060723. As per rera registration Sakina Orchid project is started on date 2022-06-28 and planned to complete on or before date 2024-12-31.
Brochure of Sakina Orchid project is available for download.

Project Summery of Sakina Orchid

Social Media
Contact

+91 7046109001

Rera No

PR/GJ/AHMEDABAD/AHMEDABAD CITY/AUDA/RAA12105/060723

Unit Details of Sakina Orchid

Type Carpet Area (sqft)
Wing - A

3D Elevation

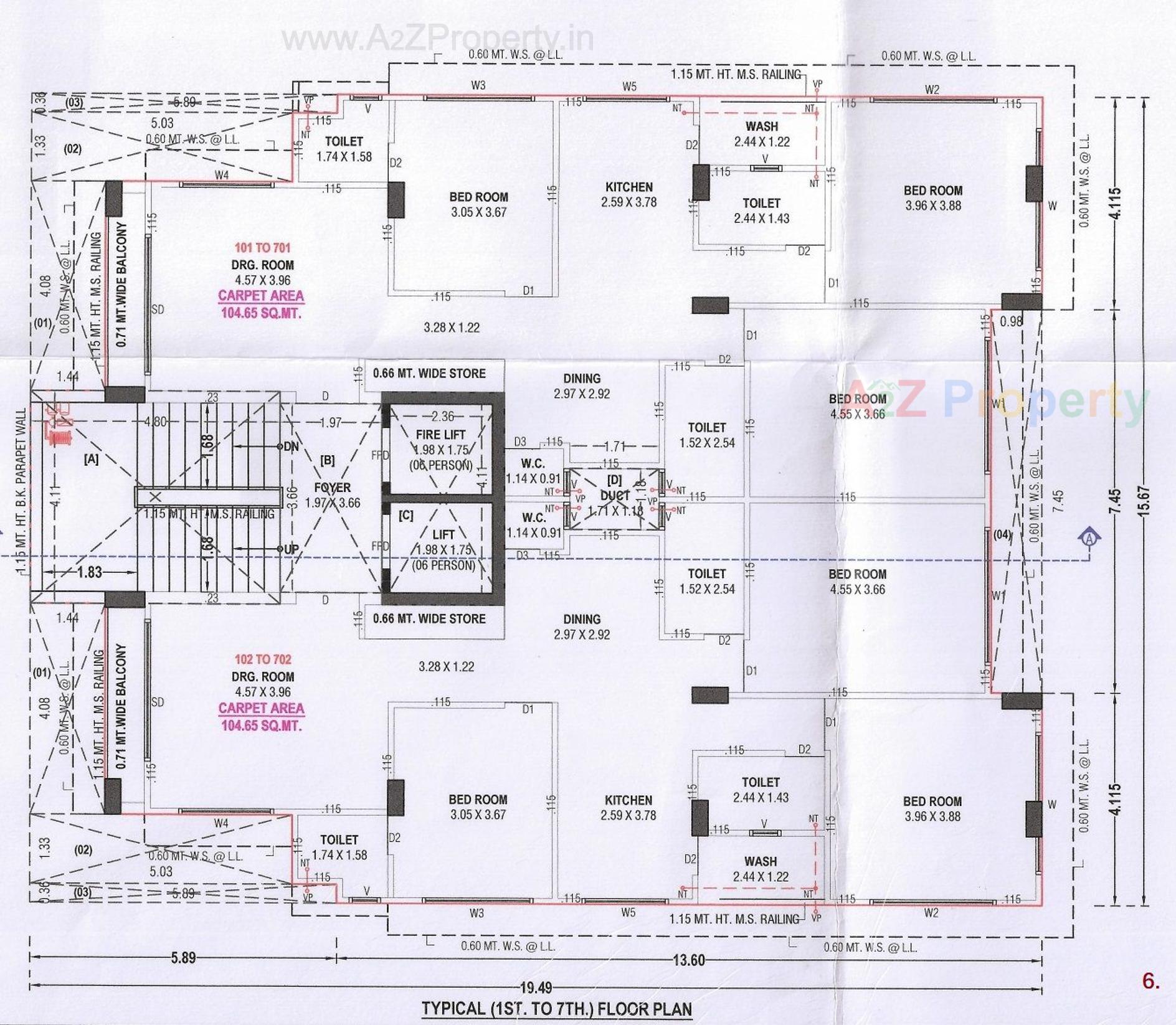
Layout Plan

E-Brochure

Map Location of Sakina Orchid

Project Details

Address

Sakina Orchid

Tp85, 12 Meter Road, Opp. Sayyida- Sakina Mosque,

Contact

+91 7046109001

Email

rabbidevlopers@gmail.com

Share on
Promoters

Rera No

PR/GJ/AHMEDABAD/AHMEDABAD CITY/AUDA/RAA12105/060723

Start Date

2022-06-28

End Date

2024-12-31

Area of Project

611

District

Ahmedabad

State

Gujarat

Project Type

Residential/Group Housing

Architect

RAKESH K PRAJAPATI

Structure

DILSHADAHMED A. MOMIN

Disclaimer

The details displayed here are for informational purposes only. Information of real estate projects like details, floor area, location are taken from multiple sources on best effort basis. Nothing shall be deemed to constitute legal advice, marketing, offer, invitation, acquire by any entity. We advice you to visit the RERA website before taking any decision based on the contents displayed on this website.

Projects in makarba

Projects in Ahmedabad