Chronicle of Radhe Greens

Radhe Greens rera registered project is located at Ramol, Ahmedabad. at Ramol, Ahmedabad. Radhe Greens project is being developed by Nand Developers. Rera number of Radhe Greens project is PR/GJ/AHMEDABAD/AHMEDABAD CITY/AUDA/RAA11678/270423. As per rera registration Radhe Greens project is started on date 2023-03-17 and planned to complete on or before date 2027-12-31.
Brochure of Radhe Greens project is available for download.

Project Summery of Radhe Greens

Social Media
Contact

+91 9979099050

Rera No

PR/GJ/AHMEDABAD/AHMEDABAD CITY/AUDA/RAA11678/270423

Unit Details of Radhe Greens

Type Carpet Area (sqft)
A+B
C
D

3D Elevation

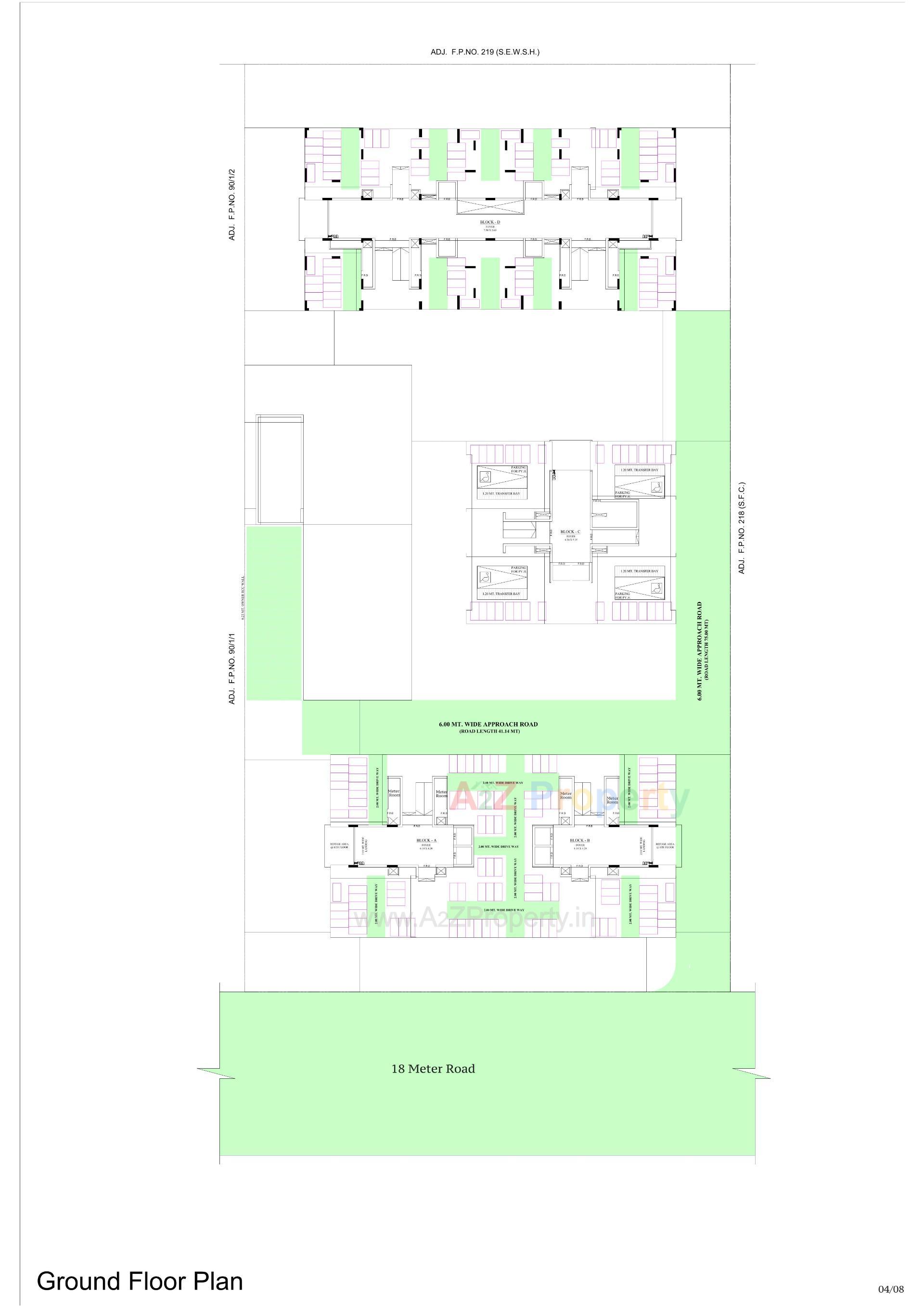
Layout Plan

E-Brochure

Map Location of Radhe Greens

Keyplan

Keyplan

Project Details

Address

Radhe Greens

Radhe Greens, Near Karnavati Skylaneramol, New Maninagar

Contact

+91 9979099050

Email

nanddevelopersrera2023@gmail.com

Share on
Promoters

Nand Developers

Rera No

PR/GJ/AHMEDABAD/AHMEDABAD CITY/AUDA/RAA11678/270423

Start Date

2023-03-17

End Date

2027-12-31

Area of Project

5,463

District

Ahmedabad

State

Gujarat

Project Type

Residential/Group Housing

Architect

Avesh Ghanchi

Structure

Navdeep C Vaddoriya

Disclaimer

The details displayed here are for informational purposes only. Information of real estate projects like details, floor area, location are taken from multiple sources on best effort basis. Nothing shall be deemed to constitute legal advice, marketing, offer, invitation, acquire by any entity. We advice you to visit the RERA website before taking any decision based on the contents displayed on this website.

Projects in ramol

Projects in Ahmedabad