Chronicle of North View Heights

North View Heights rera registered project is located at Ghuma, Ahmedabad. at Ghuma, Ahmedabad. North View Heights project is being developed by Varniraj Reality. Rera number of North View Heights project is PR/GJ/AHMEDABAD/AHMEDABAD CITY/AUDA/MAA03599/051018. As per rera registration North View Heights project is started on date 2018-06-02 and planned to complete on or before date 2023-12-30.
North View Heights project is providing amenities like Water/Heat Proofing. Brochure of North View Heights project is available for download.

Project Summery of North View Heights

Social Media
Rera No

PR/GJ/AHMEDABAD/AHMEDABAD CITY/AUDA/MAA03599/051018

Unit Details of North View Heights

Type Carpet Area (sqft)
A 184 - 619
B 765 - 765

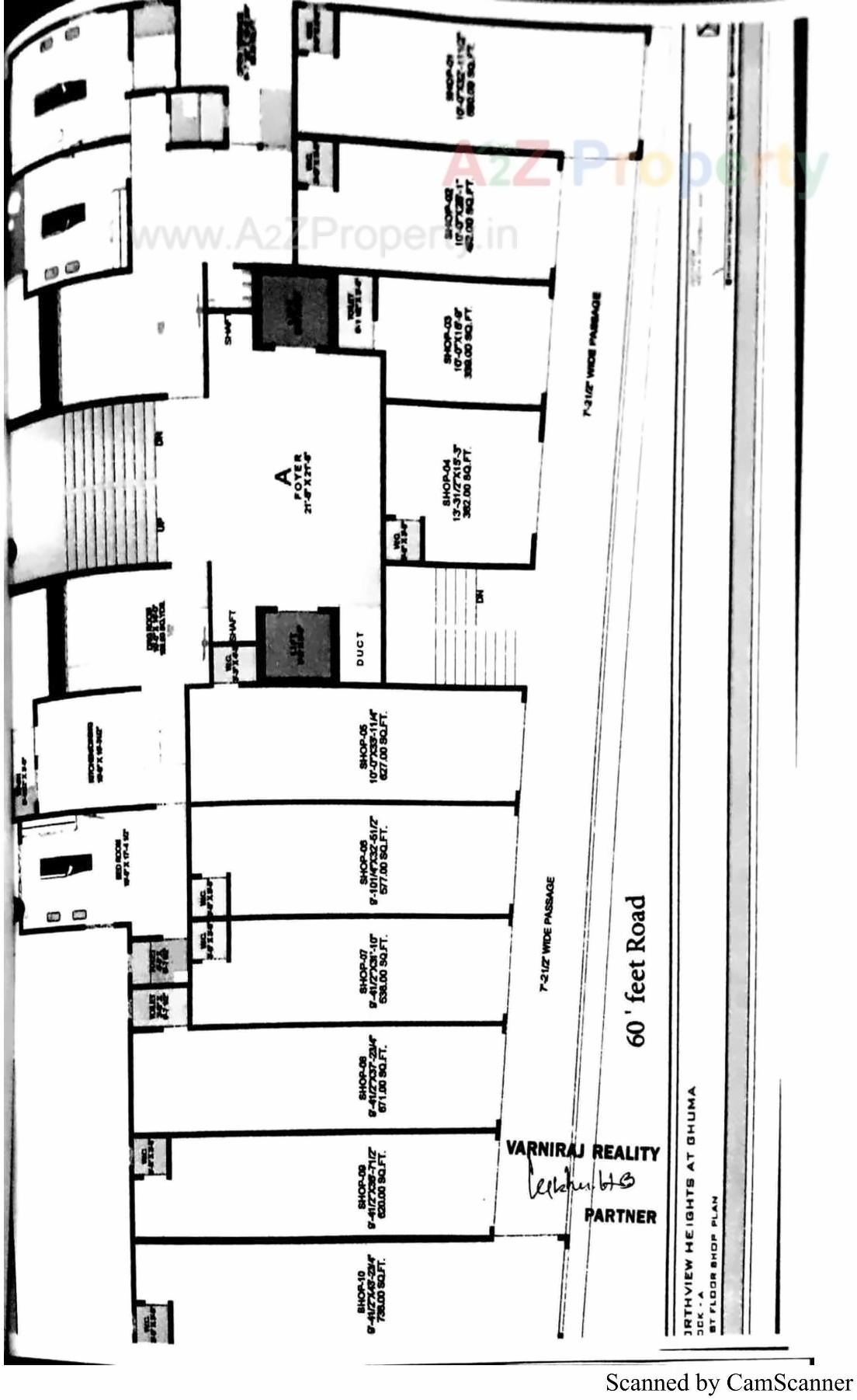
Project Layout

Project Layout

Layout Plan

Amenities of North View Heights

* Actual amenities may vary with displayed information.

Water/Heat Proofing

E-Brochure

Current Construction Photos

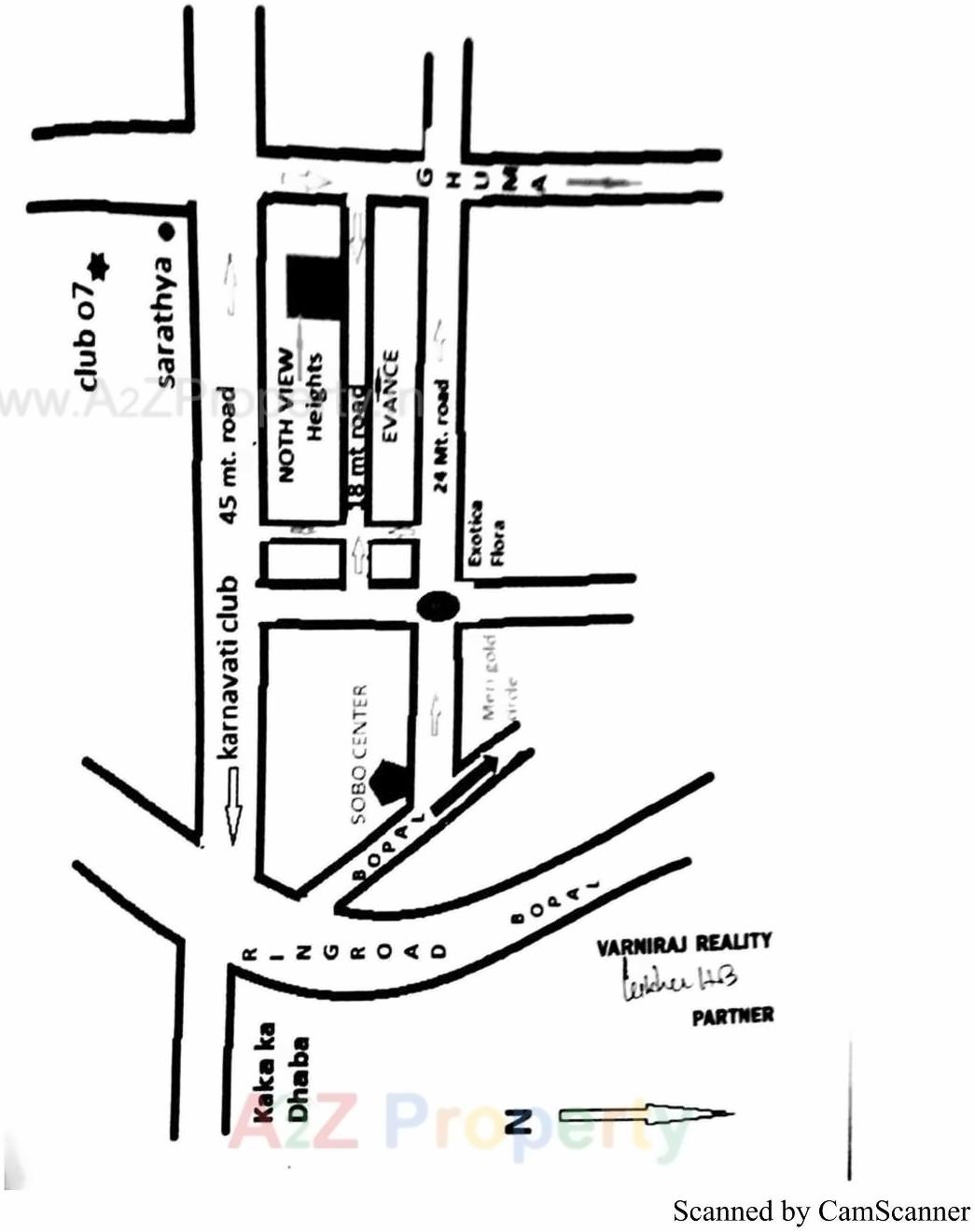
Map Location of North View Heights

Keyplan

Keyplan

Project Specifications

Project Specifications

Project Details

Address

North View Heights

North View Heights, Tp Scheme No. 3 Fp 7, Surv No. 552, Opp. Evans, Ghuma, South Bopal

Email

varnirajreality@gmail.com

Share on
Promoters

Varniraj Reality

Rera No

PR/GJ/AHMEDABAD/AHMEDABAD CITY/AUDA/MAA03599/051018

Start Date

2018-06-02

End Date

2023-12-30

Area of Project

2,853

District

Ahmedabad

State

Gujarat

Project Type

Mixed Development

Architect

BHAUMIKKUMAR C DONGA

Structure

VIRENDRA VAGADIA

Disclaimer

The details displayed here are for informational purposes only. Information of real estate projects like details, floor area, location are taken from multiple sources on best effort basis. Nothing shall be deemed to constitute legal advice, marketing, offer, invitation, acquire by any entity. We advice you to visit the RERA website before taking any decision based on the contents displayed on this website.

Projects in ghuma

Projects in Ahmedabad