Chronicle of Map Celebration

Map Celebration rera registered project is located at Sola, Ahmedabad. at Sola, Ahmedabad. Map Celebration project is being developed by . Rera number of Map Celebration project is PR/GJ/AHMEDABAD/AHMEDABAD CITY/AUDA/MAA12142/100723. As per rera registration Map Celebration project is started on date 2022-12-17 and planned to complete on or before date 2027-03-31.
Brochure of Map Celebration project is available for download.

Project Summery of Map Celebration

Social Media
Contact

+91 9099008998

Rera No

PR/GJ/AHMEDABAD/AHMEDABAD CITY/AUDA/MAA12142/100723

Unit Details of Map Celebration

Type Carpet Area (sqft)
A+B

3D Elevation

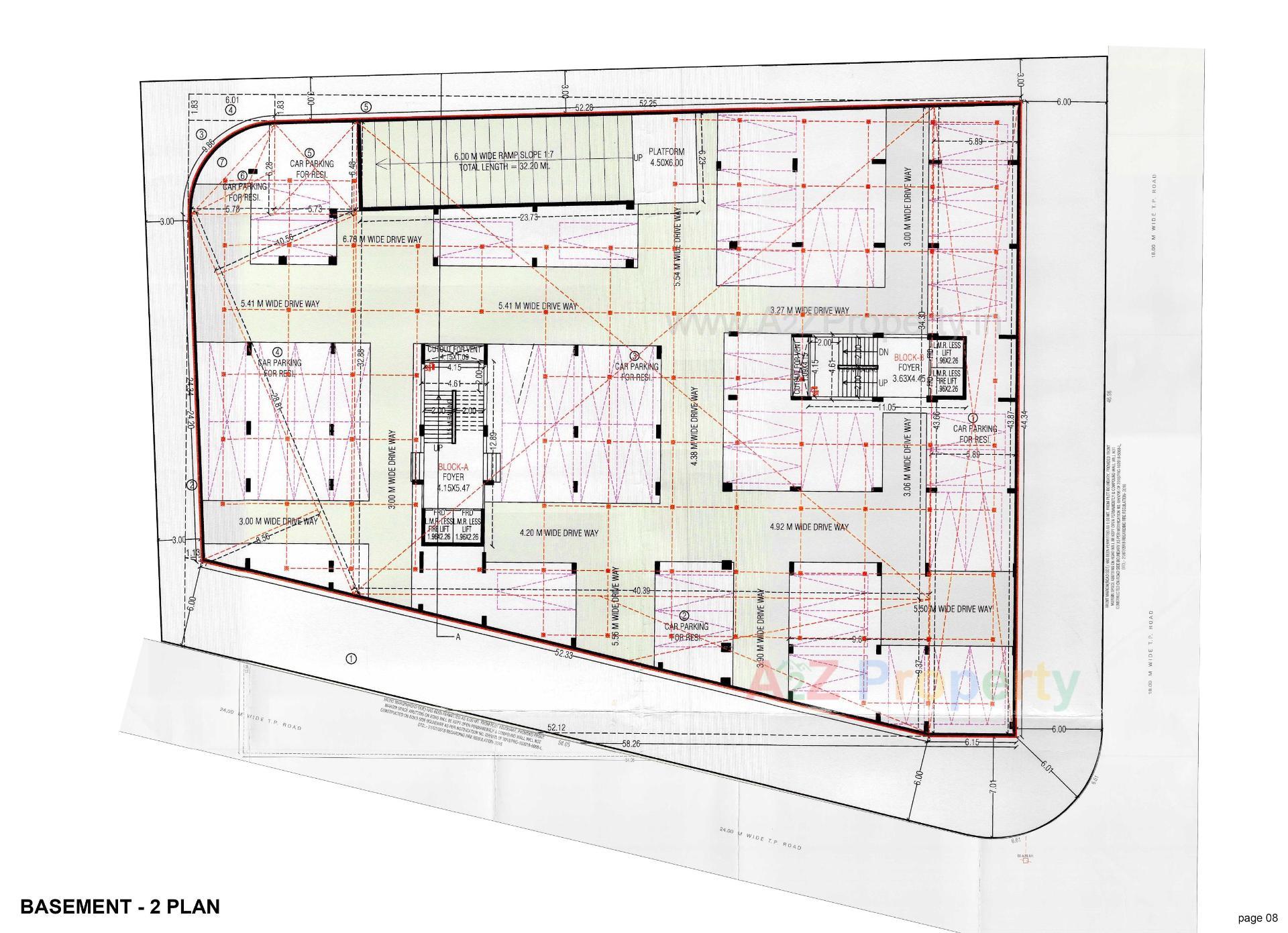
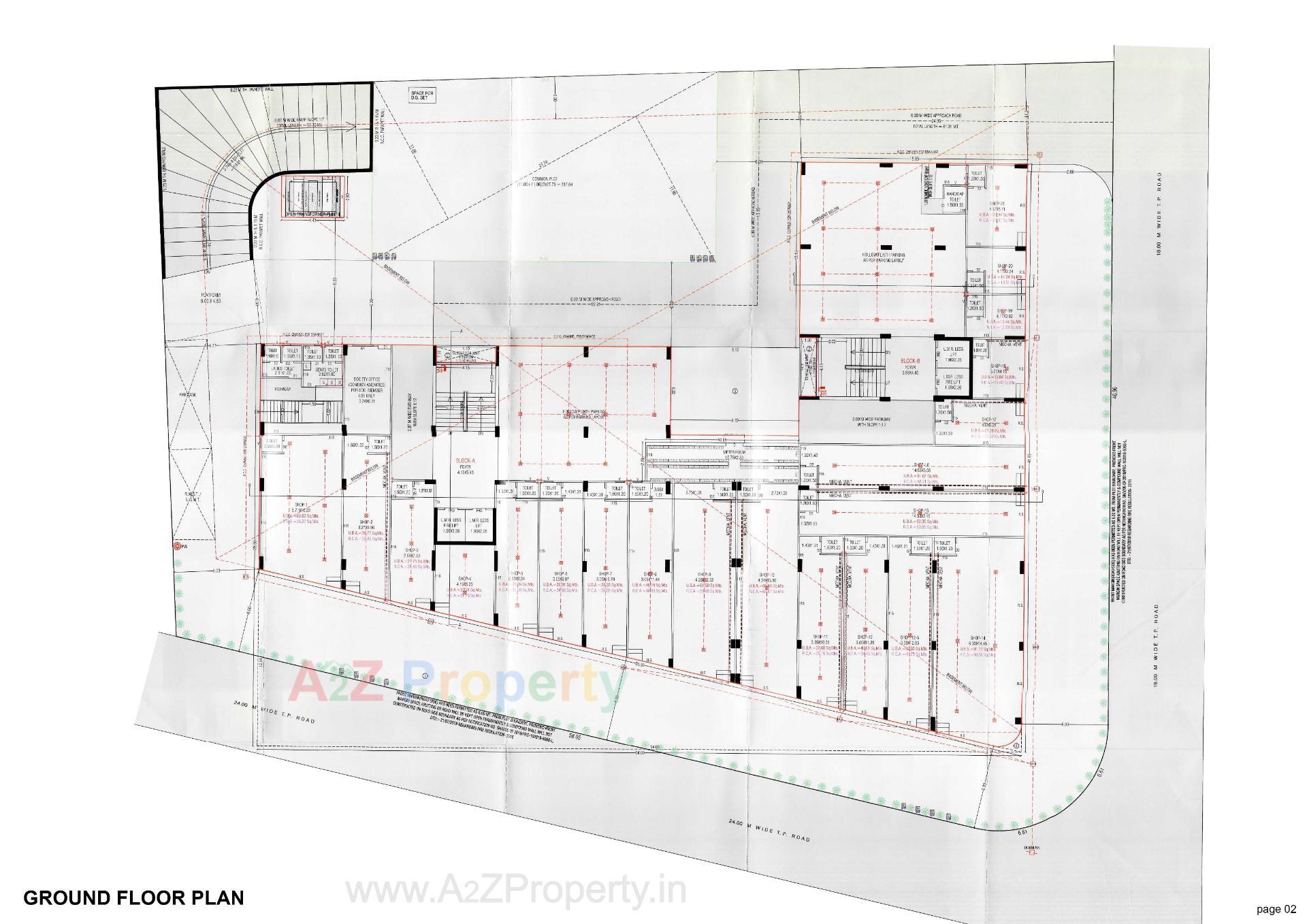
Layout Plan

E-Brochure

Map Location of Map Celebration

Keyplan

Keyplan

Project Details

Address

Map Celebration

Fp No .95, Nr. Murlidhar Party Plot,

Contact

+91 9099008998

Email

rera.mapcelebration@gmail.com

Share on
Promoters

Rera No

PR/GJ/AHMEDABAD/AHMEDABAD CITY/AUDA/MAA12142/100723

Start Date

2022-12-17

End Date

2027-03-31

Area of Project

3,158

District

Ahmedabad

State

Gujarat

Project Type

Mixed Development

Architect

SPLINE DESIGN(Devang Vaghela)

Structure

JIGARKUMAR GHANSHYAMBHAI SHAH

Disclaimer

The details displayed here are for informational purposes only. Information of real estate projects like details, floor area, location are taken from multiple sources on best effort basis. Nothing shall be deemed to constitute legal advice, marketing, offer, invitation, acquire by any entity. We advice you to visit the RERA website before taking any decision based on the contents displayed on this website.

Projects in sola

Projects in Ahmedabad