Chronicle of Happy Aadesh

Happy Aadesh rera registered project is located at Ghuma, Ahmedabad. at Ghuma, Ahmedabad. Happy Aadesh project is being developed by Shreemad Developers. Rera number of Happy Aadesh project is PR/GJ/AHMEDABAD/AHMEDABAD CITY/AUDA/MAA11832/230523. As per rera registration Happy Aadesh project is started on date 2022-10-18 and planned to complete on or before date 2026-12-31.
Brochure of Happy Aadesh project is available for download.

Project Summery of Happy Aadesh

Social Media
Contact

+91 9924502328

Rera No

PR/GJ/AHMEDABAD/AHMEDABAD CITY/AUDA/MAA11832/230523

Unit Details of Happy Aadesh

Type Carpet Area (sqft)
BLOCK A

3D Elevation

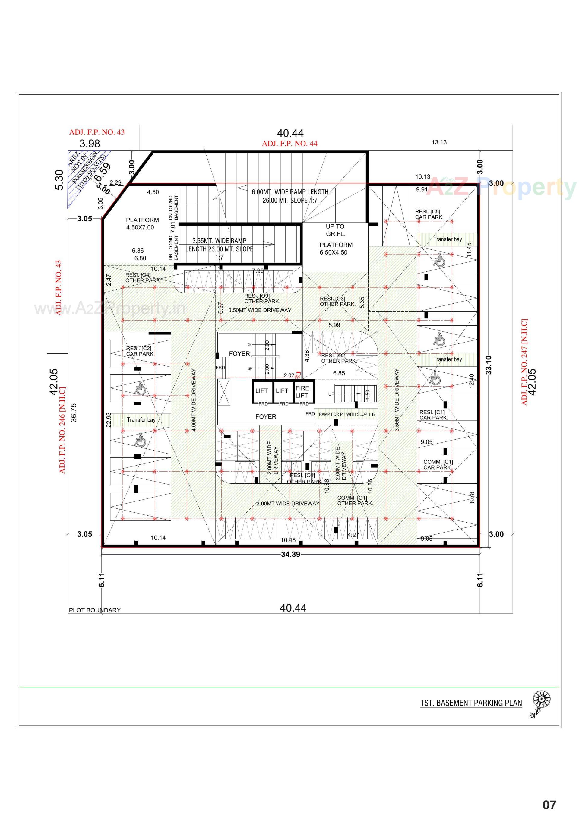
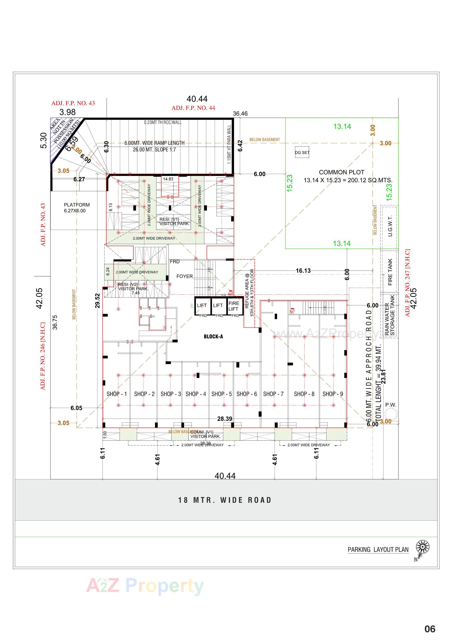
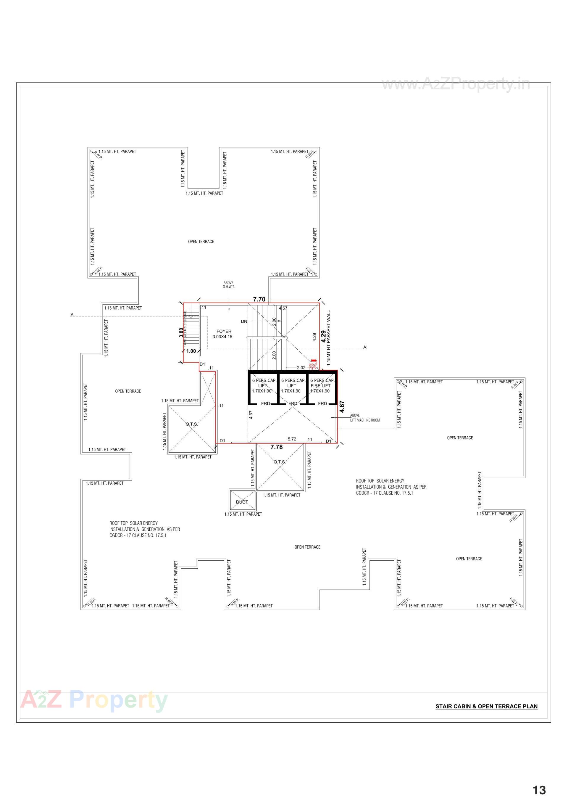
Layout Plan

E-Brochure

Map Location of Happy Aadesh

Project Details

Address

Happy Aadesh

F P No 41 Of T P S No 2 Ghuma Draft Sanction Revenue Block No 170 O P No 41 Moje Ghuma

Contact

+91 9924502328

Email

shreemaddevelopers042019@gmail.com

Share on
Promoters

Shreemad Developers

Rera No

PR/GJ/AHMEDABAD/AHMEDABAD CITY/AUDA/MAA11832/230523

Start Date

2022-10-18

End Date

2026-12-31

Area of Project

1,700

District

Ahmedabad

State

Gujarat

Project Type

Mixed Development

Architect

Jignesh Hemaendra Almoula

Structure

PATEL CHIRAGKUMAR BHAILALBHAI

Disclaimer

The details displayed here are for informational purposes only. Information of real estate projects like details, floor area, location are taken from multiple sources on best effort basis. Nothing shall be deemed to constitute legal advice, marketing, offer, invitation, acquire by any entity. We advice you to visit the RERA website before taking any decision based on the contents displayed on this website.

Projects in ghuma

Projects in Ahmedabad