Chronicle of Everest Empire

Everest Empire rera registered project is located at Sola, Ahmedabad. Bungalows & Flats at Sola, Ahmedabad. Everest Empire project is being developed by Everest Developers. Rera number of Everest Empire project is PR/GJ/AHMEDABAD/AHMEDABAD CITY/AUDA/RAA01648/160218. As per rera registration Everest Empire project is started on date 2015-05-20 and planned to complete on or before date 2018-03-31.
Everest Empire project is providing amenities like Water/Heat Proofing, Lift, Landscape Garden, Entrance Gate, Senior Citizen Sitting, Clubhouse. Brochure of Everest Empire project is available for download.

Project Summery of Everest Empire

Social Media
Contact

+91 9426501568, +91 9099028267

Rera No

PR/GJ/AHMEDABAD/AHMEDABAD CITY/AUDA/RAA01648/160218

Unit Details of Everest Empire

Type Carpet Area (sqft)
EVEREST EMPIRE 1326 - 2101

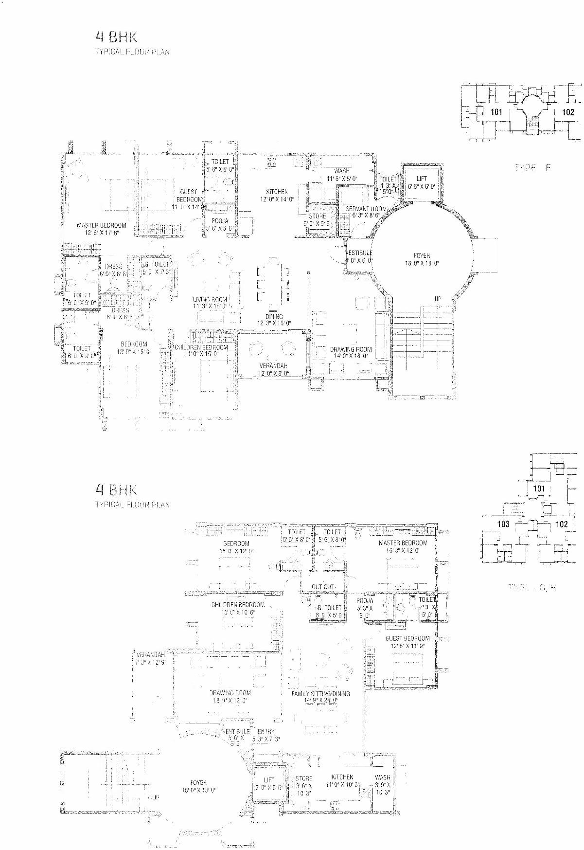
Project Layout

Project Layout

Layout Plan

Amenities of Everest Empire

* Actual amenities may vary with displayed information.

Lift

Entrance Gate

Water/Heat Proofing

Landscape Garden

Senior Citizen Sitting

Clubhouse

E-Brochure

Current Construction Photos

Map Location of Everest Empire

Keyplan

Keyplan

Project Details

Address

Everest Empire

Tp 41 Survey No 660 And 661 Paiki Of Fp 17, Sola

Contact

+91 9426501568, +91 9099028267

Email

advdhruti.trivedi@gmail.com

Share on
Promoters

Everest Developers

Rera No

PR/GJ/AHMEDABAD/AHMEDABAD CITY/AUDA/RAA01648/160218

Start Date

2015-05-20

End Date

2018-03-31

Area of Project

11,017

District

Ahmedabad

State

Gujarat

Project Type

Residential/Group Housing

Architect

kinal d soni

Structure

umang j patel

Disclaimer

The details displayed here are for informational purposes only. Information of real estate projects like details, floor area, location are taken from multiple sources on best effort basis. Nothing shall be deemed to constitute legal advice, marketing, offer, invitation, acquire by any entity. We advice you to visit the RERA website before taking any decision based on the contents displayed on this website.

Projects in sola

Projects in Ahmedabad