Chronicle of Earth Eleanor

Earth Eleanor rera registered project is located at Bopal, Ahmedabad. at Bopal, Ahmedabad. Earth Eleanor project is being developed by . Rera number of Earth Eleanor project is PR/GJ/AHMEDABAD/AHMEDABAD CITY/AUDA/RAA11945/120623. As per rera registration Earth Eleanor project is started on date 2023-03-01 and planned to complete on or before date 2027-03-31.
Brochure of Earth Eleanor project is available for download.

Project Summery of Earth Eleanor

Social Media
Contact

+91 9925033566

Rera No

PR/GJ/AHMEDABAD/AHMEDABAD CITY/AUDA/RAA11945/120623

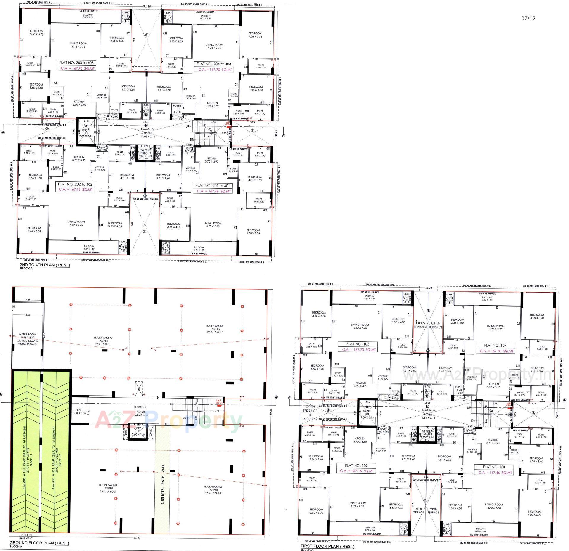
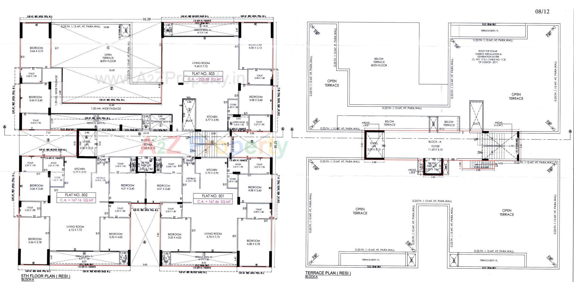
Unit Details of Earth Eleanor

Type Carpet Area (sqft)
BLOCK-A
BLOCK-B

3D Elevation

Layout Plan

E-Brochure

Map Location of Earth Eleanor

Keyplan

Keyplan

Project Details

Address

Earth Eleanor

Earth Eleanor, Opp. Bopal Police Station, Nr. Aaryan Gloria,

Contact

+91 9925033566

Email

eartheleanorrera2023@gmail.com

Share on
Promoters

Rera No

PR/GJ/AHMEDABAD/AHMEDABAD CITY/AUDA/RAA11945/120623

Start Date

2023-03-01

End Date

2027-03-31

Area of Project

3,096

District

Ahmedabad

State

Gujarat

Project Type

Residential/Group Housing

Architect

MAHESH N. DONGA

Structure

SANJEEV R. KAPASI

Disclaimer

The details displayed here are for informational purposes only. Information of real estate projects like details, floor area, location are taken from multiple sources on best effort basis. Nothing shall be deemed to constitute legal advice, marketing, offer, invitation, acquire by any entity. We advice you to visit the RERA website before taking any decision based on the contents displayed on this website.

Projects in bopal

Projects in Ahmedabad