Chronicle of Devasva

Devasva rera registered project is located at Vishalpur, Ahmedabad. at Vishalpur, Ahmedabad. Devasva project is being developed by Notion Infrastructure. Rera number of Devasva project is PR/GJ/AHMEDABAD/DASKROI/AUDA/MAA10626/A1M/190623. As per rera registration Devasva project is started on date 2022-08-01 and planned to complete on or before date 2026-12-31.
Brochure of Devasva project is available for download.

Project Summery of Devasva

Social Media
Contact

+91 9428804281

Rera No

PR/GJ/AHMEDABAD/DASKROI/AUDA/MAA10626/A1M/190623

Unit Details of Devasva

Type Carpet Area (sqft)
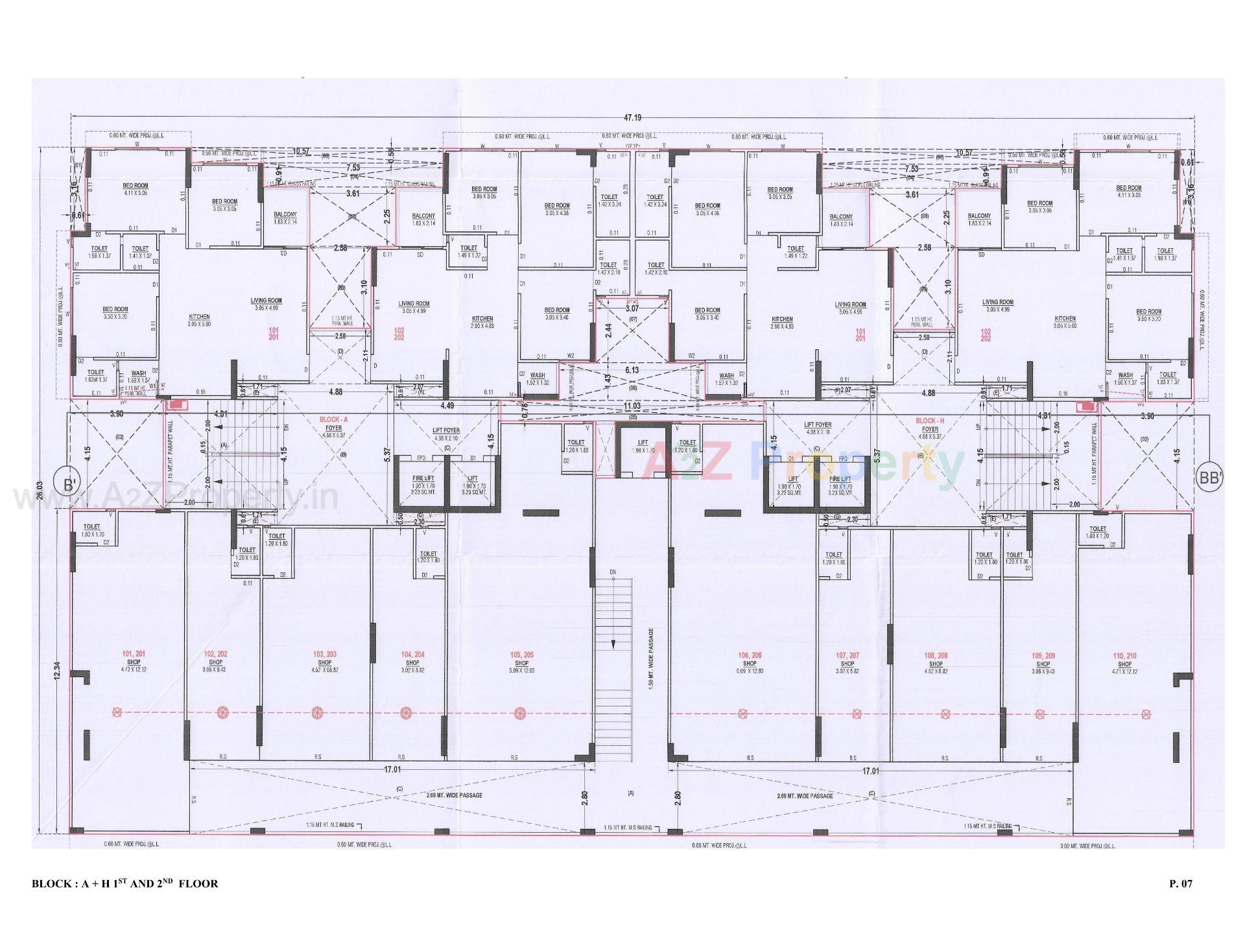
A+H
B+C
D+E
F+G

3D Elevation

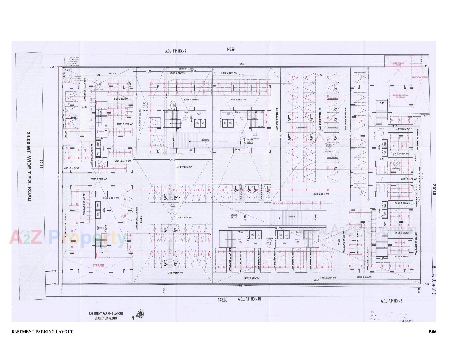
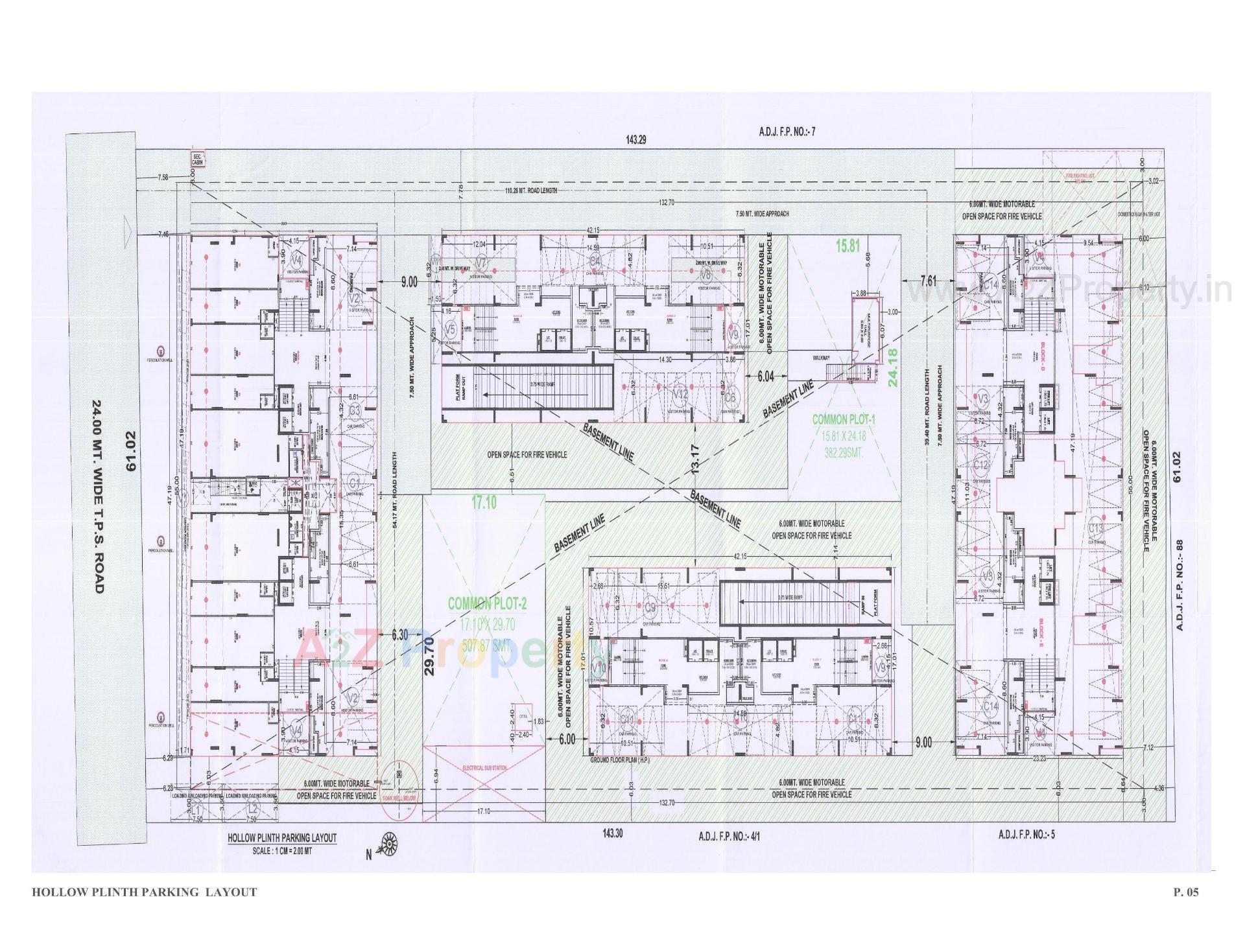
Layout Plan

E-Brochure

Map Location of Devasva

Keyplan

Keyplan

Project Details

Address

Devasva

F.p No 9 Visalpurnear Bhuvanbhanu Jain Derasar Bakrol Circle

Contact

+91 9428804281

Email

notioninfrastructure@gmail.com

Share on
Promoters

Notion Infrastructure

Rera No

PR/GJ/AHMEDABAD/DASKROI/AUDA/MAA10626/A1M/190623

Start Date

2022-08-01

End Date

2026-12-31

Area of Project

8,741

District

Ahmedabad

State

Gujarat

Project Type

Mixed Development

Disclaimer

The details displayed here are for informational purposes only. Information of real estate projects like details, floor area, location are taken from multiple sources on best effort basis. Nothing shall be deemed to constitute legal advice, marketing, offer, invitation, acquire by any entity. We advice you to visit the RERA website before taking any decision based on the contents displayed on this website.

Projects in vishalpur

Projects in Ahmedabad