Chronicle of Dev Aurum

Dev Aurum rera registered project is located at Vejalpur, Ahmedabad. Flats at Vejalpur, Ahmedabad. Dev Aurum project is being developed by Shridev Procon Limited. Rera number of Dev Aurum project is PR/GJ/AHMEDABAD/AHMEDABAD CITY/AUDA/RAA00574/EX1/200120. As per rera registration Dev Aurum project is started on date 2014-05-29 and planned to complete on or before date 2021-06-30.
Dev Aurum project is providing amenities like Street Light, Lift, Landscape Garden, 24x7 Water Supply. Brochure of Dev Aurum project is available for download.

Project Summery of Dev Aurum

Social Media
Rera No

PR/GJ/AHMEDABAD/AHMEDABAD CITY/AUDA/RAA00574/EX1/200120

Unit Details of Dev Aurum

Type Carpet Area (sqft)
TYPE B BLOCK D 716 - 1131

3D Elevation

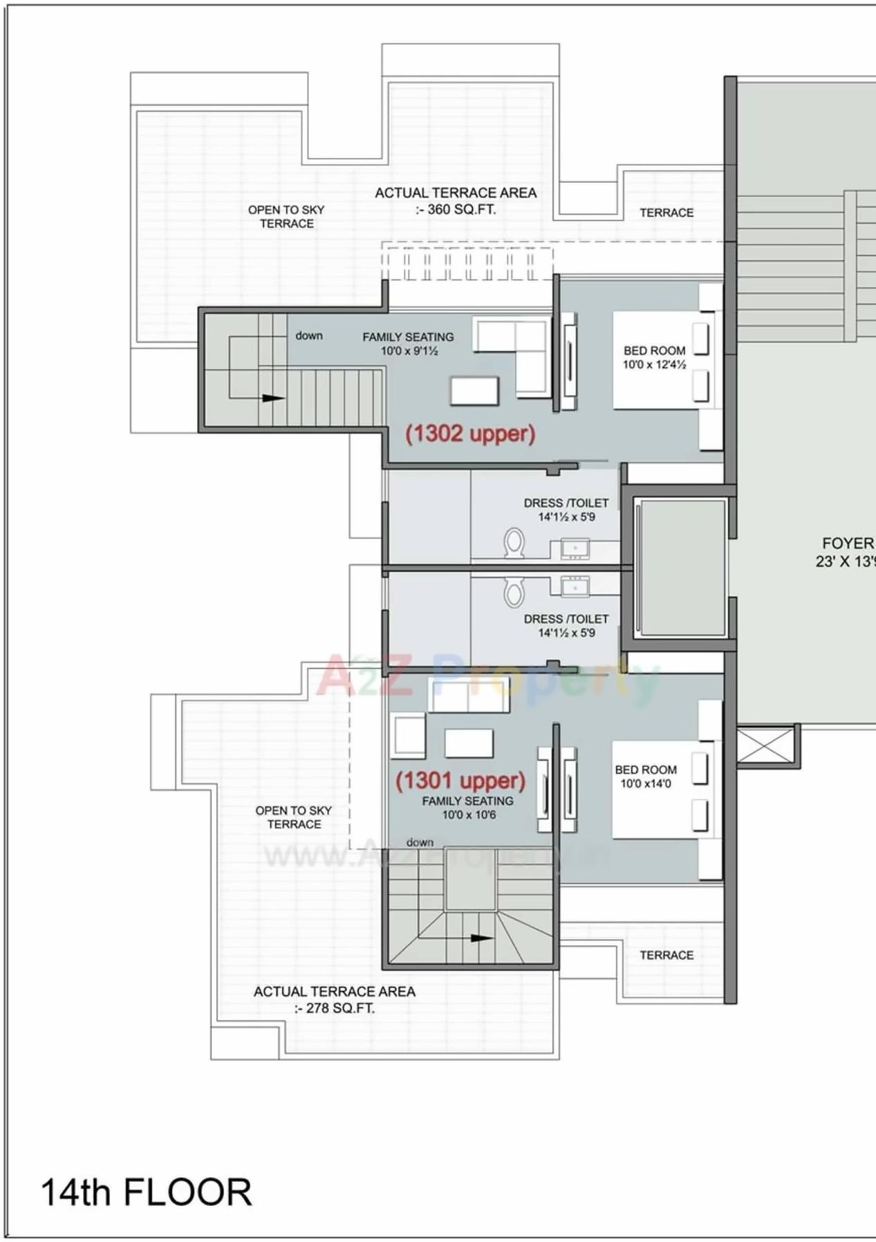
Layout Plan

Amenities of Dev Aurum

* Actual amenities may vary with displayed information.

Lift

Street Light

Landscape Garden

24x7 Water Supply

E-Brochure

Current Construction Photos

Map Location of Dev Aurum

Keyplan

Keyplan

Project Details

Address

Dev Aurum

Dev Aurum, Anand Nagar Cross Road, Anand Nagar, Ahmedabad - 380007

Email

devthakker9@gmail.com

Share on
Promoters

Shridev Procon Limited

Rera No

PR/GJ/AHMEDABAD/AHMEDABAD CITY/AUDA/RAA00574/EX1/200120

Start Date

2014-05-29

End Date

2021-06-30

Area of Project

14,144

District

Ahmedabad

State

Gujarat

Project Type

Residential/Group Housing

Disclaimer

The details displayed here are for informational purposes only. Information of real estate projects like details, floor area, location are taken from multiple sources on best effort basis. Nothing shall be deemed to constitute legal advice, marketing, offer, invitation, acquire by any entity. We advice you to visit the RERA website before taking any decision based on the contents displayed on this website.

Projects in vejalpur

Projects in Ahmedabad