Chronicle of Aum Arcade

Aum Arcade rera registered project is located at Nava-wadaj, Ahmedabad. at Nava-wadaj, Ahmedabad. Aum Arcade project is being developed by Aum Buildcon. Rera number of Aum Arcade project is PR/GJ/AHMEDABAD/AHMEDABAD CITY/AUDA/CAA09908/190322. As per rera registration Aum Arcade project is started on date 2022-01-17 and planned to complete on or before date 2024-03-31.
Brochure of Aum Arcade project is available for download.

Project Summery of Aum Arcade

Social Media
Rera No

PR/GJ/AHMEDABAD/AHMEDABAD CITY/AUDA/CAA09908/190322

Unit Details of Aum Arcade

Type Carpet Area (sqft)
1

3D Elevation

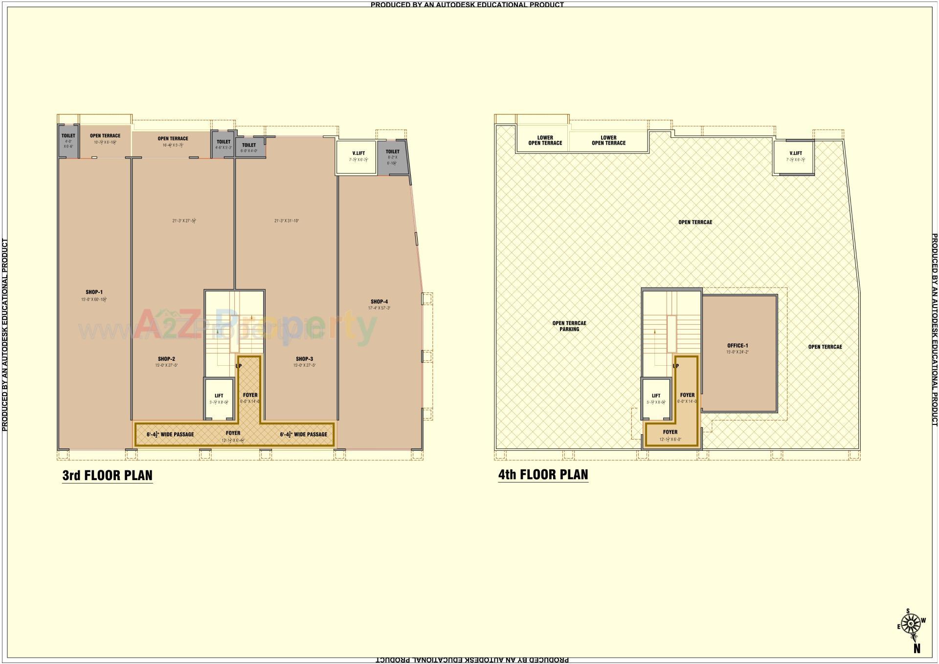
Layout Plan

E-Brochure

Map Location of Aum Arcade

Keyplan

Keyplan

Project Details

Address

Aum Arcade

Cts No. 73, Opp. Krishna Nagar Society Part-2, Nava Vadaj

Email

aum.buildcon.20@gmail.com

Share on
Promoters

Aum Buildcon

Rera No

PR/GJ/AHMEDABAD/AHMEDABAD CITY/AUDA/CAA09908/190322

Start Date

2022-01-17

End Date

2024-03-31

Area of Project

801.02

District

Ahmedabad

State

Gujarat

Project Type

Commercial

Architect

SHARVIN JAYESHKUMAR PATEL

Structure

DAHYALAL HARGOVANDAS PATEL

Disclaimer

The details displayed here are for informational purposes only. Information of real estate projects like details, floor area, location are taken from multiple sources on best effort basis. Nothing shall be deemed to constitute legal advice, marketing, offer, invitation, acquire by any entity. We advice you to visit the RERA website before taking any decision based on the contents displayed on this website.

Projects in nava-wadaj

Projects in Ahmedabad